No power to the fuel pump?

Tiny
MAMA KIN
  • MEMBER
  • 1991 FORD E-SERIES VAN
  • 7.5L
  • V8
  • 2WD
  • AUTOMATIC
  • 66,000 MILES
Just bought a mini whinnie. Test drive was fine. Giving it a go through I found a cracked pos battery term, when replacing it the starter solenoid cracked, so I replaced that. Changed wires, plugs, cap rotor. Went to start and nothing. It cranks over but now no start. I changed both relays ( pcr, fuel pump) also new fuel pump and ignition switch. I found no power to the br/ or wire at the pcr relay and now now power to the bk/ lg wire at the fuse box 20a I can't find any info on if the power to the fuse is from a relay, ign or elsewhere. Trying to trace the wire back with no luck

Any info is greatly appreciated

Thanks in advance
Saturday, July 15th, 2023 AT 3:32 PM

1 Reply

Tiny
KEN L
  • MASTER CERTIFIED MECHANIC
  • 55,301 POSTS
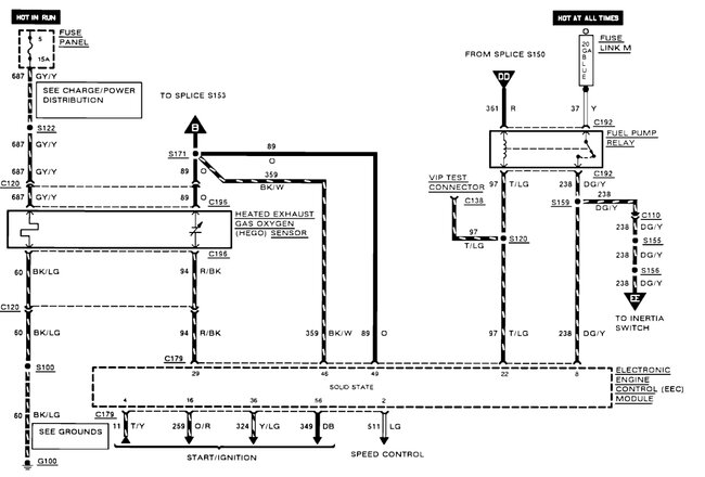
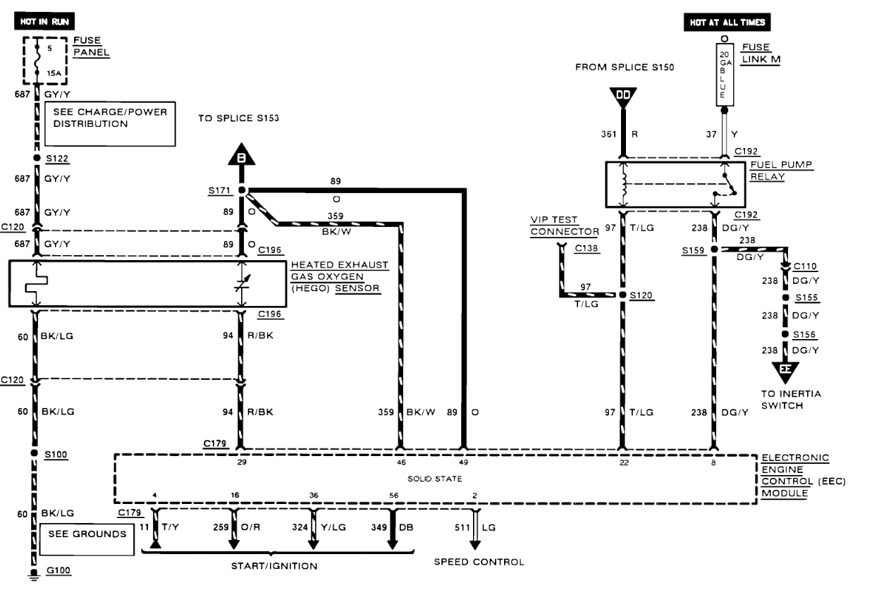
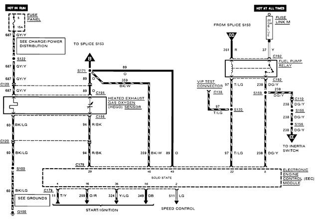
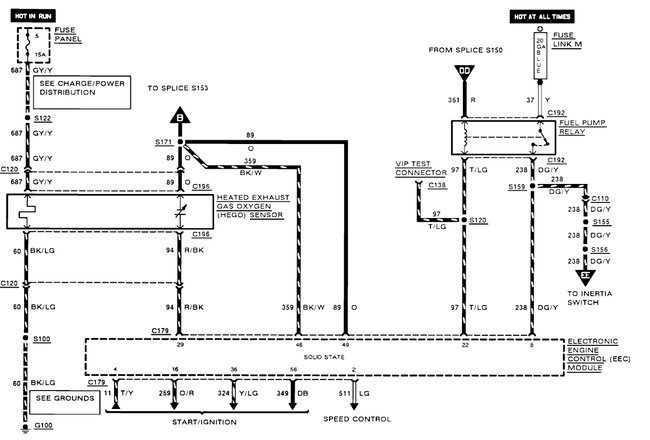
It looks like there is an inertia switch, Under right side of dash, on heater plenum. I would hit the reset on that to make sure it has not been tripped, also here is the fuel pump wiring diagrams so you can see how the system works. Did you check the fuel pump relay I would swap that out as well. Here is a guide to help you check for power and see where the power stops:

https://www.2carpros.com/articles/how-to-use-a-test-light-circuit-tester

Check out the images (below). Please let us know what happens.
Was this
answer
helpful?
Yes
No
Tuesday, July 18th, 2023 AT 12:09 PM

Please login or register to post a reply.