No fuel. I have checked the 15 amp fuse under the hood

Tiny
TIM ZOELLNER
  • MEMBER
  • 2004 MITSUBISHI LANCER
  • 2.4L
  • 4 CYL
  • FWD
  • AUTOMATIC
  • 220,000 MILES
The car died, no fuel. I have checked the 15 amp fuse under the hood, it is good. The 7.5 amp fuse under the dash is also good. I tested both the #1 and #2 fuel pump relays under dash-they are good. The pump runs fine with 12v applied to it via wire, but car still never fired when ran like that. The engine does fire up with starting fluid sprayed into breather, but only for a second or two. Now I tested the fuel pump harness that plugs directly into top of fuel pump and I am not getting any power with my test light. Ground used was fine so not that. Checked a half dozen times and no power to plug. All fuses checked and working fine it seems. I am just a back yard not very experienced, but I can follow directions and understand youtube videos. Any suggestions? I noticed someone with a similar problem on the OZ manuel model, but no answer.
Monday, June 13th, 2016 AT 6:01 PM

11 Replies

Tiny
CARADIODOC
  • MECHANIC
  • 34,490 POSTS
You must never have 12 volts to the fuel pump unless the engine is rotating, (cranking or running). That is a safety feature to stop the fuel pump in the event a fuel line is ruptured in a crash. You will have 12 volts to the pump when you turn on the ignition switch, but only for one or two seconds. Any testing must be done while cranking the engine or with the fuel pump relay bypassed. If you bypass the relay, you should be able to hear the pump run. If you have 12 volts to the pump but it is not running, bang on the bottom of the gas tank. The shock will often get a pump motor started. That failure is due to worn brushes. The pump may work again for days or weeks, but it is going to have to be replaced eventually.
Was this
answer
helpful?
Yes
No
Sunday, January 6th, 2019 AT 8:03 PM
Tiny
TIM ZOELLNER
  • MEMBER
  • 7 POSTS
Lol. I ran power straight back from the battery is what I mean, bypassing everything I got power to the fuel pump and tried to start and nothing. I plugged in regularly pump does not run. I know people that run toggle switches so I know it can be done. But in this case I could not if I wanted to, only because I am not even getting power to the harness. I tried the "old" tap the tank trick. I believe I have narrowed it down to not having power to my wiring harness that plugs into top of fuel pump, but I do not know why.
Was this
answer
helpful?
Yes
No
Sunday, January 6th, 2019 AT 8:03 PM
Tiny
CARADIODOC
  • MECHANIC
  • 34,490 POSTS
As I mentioned, if you are crawling underneath while the ignition switch is on, you had better not have 12 volts to the pump. People who run toggle switches are asking for a lawsuit. If the other guy runs a red light, causes a crash that ruptures the fuel line, the engine will stall due to lack of fuel pressure. With a stalled engine, there will be no signal pulses from the crankshaft position sensor and / or camshaft position sensor. Lack of those signals is what tells the engine computer to turn the fuel pump off. If the pump is wired to a toggle switch, it won't turn off and raw fuel will be pumped onto the ground creating a serious fire hazard. The other guy may have cause the crash, but a lawyer or insurance investigator will convince a jury the person who did that modification is responsible for his burns and other injuries.

When you test for 12 volts at the pump, use a test light, then watch for it to light up for only one or two seconds after you turn on the ignition switch. If you see that, the relay and wiring are okay, and the Engine Computer has control of the relay. At that point you need to be looking at why the computer is not turning the relay on again during cranking. That involves the cam and crank sensors. If you DO have 12 volts during cranking, the pump motor is bad or it has a bad ground.

The injectors are timed from the cam and crank sensors too, so even if the pump relay is bypassed to make it run, you will have fuel pressure, but no injector pulses.
Was this
answer
helpful?
Yes
No
+2
Sunday, January 6th, 2019 AT 8:03 PM
Tiny
TIM ZOELLNER
  • MEMBER
  • 7 POSTS
I personally only had power straight to the pump long enough to see if it would fire only. And for the guys who did the toggle switch whatever. That is on them. I was just saying its easily done and done for years, but enough about them. I have tested with the light and get 0 power to plug with ignition on and off. I opened oil cap and checked for movement of cam shaft and it moved when cranking. I have tested all fuses and relays in both under hood fuse box and inside car fuse box with a light tester and all light. Pump powers wired to battery only and does not when hooked up with harness. The car does not fire up on battery either, but the pump hums. So if its injector pulses what do I do? Check the timing? Crank sensor/cam sensor?
Was this
answer
helpful?
Yes
No
Sunday, January 6th, 2019 AT 8:03 PM
Tiny
TIM ZOELLNER
  • MEMBER
  • 7 POSTS
Just understood the injector pulse reply. I am still new at this obviously so forgive me. Lol. That is why I am here. I am trying to understand. So you are saying if that is the case my ECU my not be sending the signal to the relays even though the relays are good. They still are not getting the signal for some reason? Right?
Was this
answer
helpful?
Yes
No
Sunday, January 6th, 2019 AT 8:03 PM
Tiny
CARADIODOC
  • MECHANIC
  • 34,490 POSTS
Yep. The fastest way to verify everything else is okay is to bypass the relay, then listen if the pump is running. If it is, move on and forget that entire circuit. There are two ways to do that. When I work on a Chrysler product, (which use a lot of Mitsubishi parts), I unplug the relay, then pop in a jumper wire, typically a stretched-out paper clip. When I am working on a car I am not familiar with, and since time means money to my customers, the fastest way is to unplug the relay, pop its cover off, plug it back in that way, then squeeze the movable contact. You can keep it engaged with a small rubber band.

The relay connects two separate but related circuits. By bypassing / squeezing it, you can test the entire high-current circuit. If that is working, that leaves the low-current control side with the problem and that is controlled by the computer. Computers rarely fail to run relays properly so when it does not turn one on, it is because whatever tells it it is time to do that is not there. That is the cam and crank signals in this case.

You can check for diagnostic fault codes to lead you to the circuit with the problem, but first look for a mechanic who has a Chrysler DRB3 scanner. A lot of independent shops bought them because with an extra plug-in card, they will do emissions-related tests on all brands of vehicles, 1996 and newer. I have one because I have a lot of 1980's and 1990's Chrysler products. Under "Inputs and Outputs" it will list the two sensors with a "no" or "present" during cranking to tell you if those signals are arriving from those sensors. You should get a fault code too related to the missing signal, but if the battery was disconnected, the codes will have been erased. Often it is really hard to get them to set again from simply cranking the engine. They are more likely to set during coasting to a stop right after the sensor has failed.

I included some drawings of common relays from Chrysler products. If your car has one of these, you can use the paper clip, otherwise you are safest by squeezing the contact.
Was this
answer
helpful?
Yes
No
+2
Sunday, January 6th, 2019 AT 8:03 PM
Tiny
TIM ZOELLNER
  • MEMBER
  • 7 POSTS
I have unplugged the battery already so no codes will come up, and to add no check engine light was ever on. I know your not saying that I am just stating
and I can just assume since I know my relays are good. The reason I am not getting the signal would be faulty ECU, cam sensor, or crank sensor?
Was this
answer
helpful?
Yes
No
Sunday, January 6th, 2019 AT 8:03 PM
Tiny
CARADIODOC
  • MECHANIC
  • 34,490 POSTS
Not the ECU / Engine Computer. It is always possible, but they rarely fail.

At the moment I do not have access to a service manual, so you will have to look for me. Look for an automatic shutdown, (ASD) relay in the under-hood fuse box. If you have one, that supplies the current for the ignition coil, injectors, and fuel pump or pump relay. You can find the same 12 volt feed wire at the ignition coil or at any injector rather than having to run back to the fuel pump. If you can make the fuel pump run by bypassing a relay, we're done with that circuit. Now we have to determine if the Engine Computer is turning on the ASD relay. Look for the wire at the ignition coil or any injector that is the same color. Back-probe that wire to see if you get 12 volts for one second after turning on the ignition switch. If you do, you have the right wire. What is important is if that 12 volts comes back during cranking. If it does not, one of the sensor signals is missing.
Was this
answer
helpful?
Yes
No
+1
Sunday, January 6th, 2019 AT 8:03 PM
Tiny
TIM ZOELLNER
  • MEMBER
  • 7 POSTS
Ok so after having someone else in the back that knows what they are doing.. I do have power to fuel pump with wire ran from pos and neg of the battery to the fuel pump and it starts. Before I said it wouldn't start regardless. I was wrong it does start with straight power and turn of the ignition. My question is. Is there a fuel pump modular between the battery and the fuse block?
Was this
answer
helpful?
Yes
No
+2
Sunday, January 6th, 2019 AT 8:03 PM
Tiny
KEN L
  • MASTER CERTIFIED MECHANIC
  • 55,512 POSTS
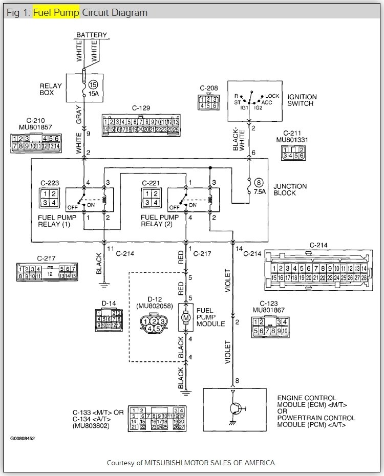
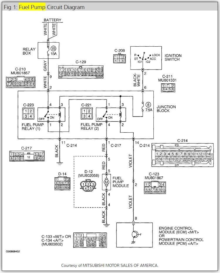
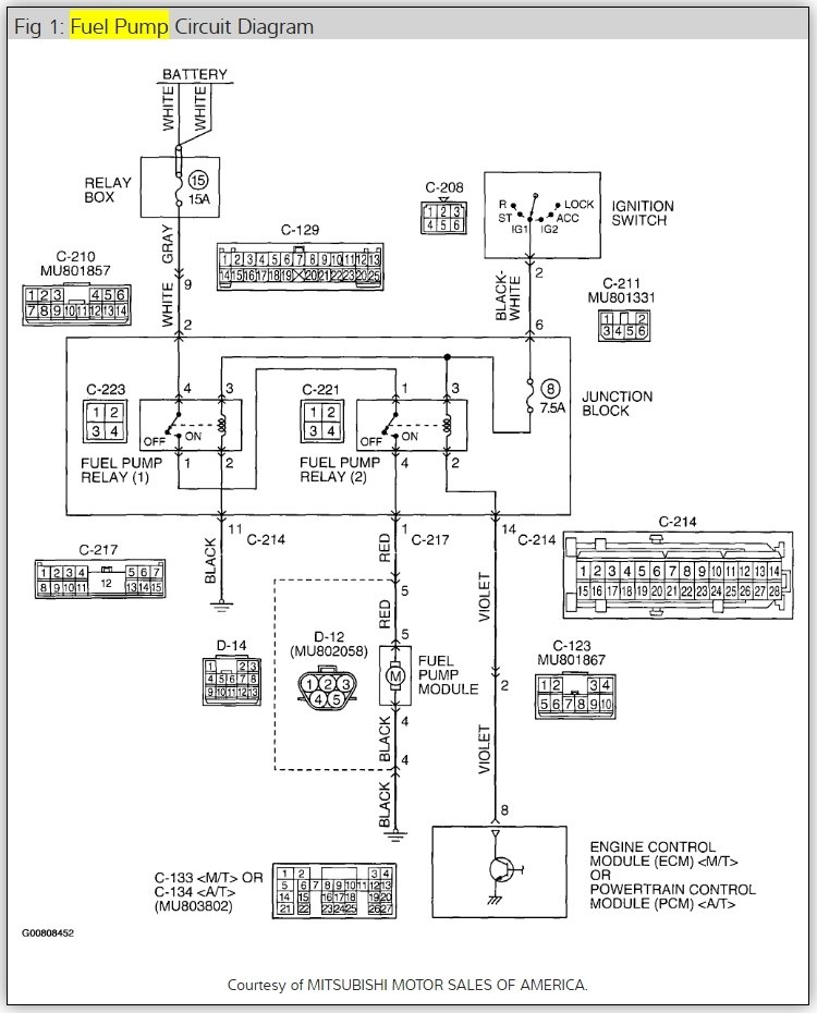
Hey,

I have this complete wiring diagram for the fuel pump for you. Please check the trigger wires and power sources.

Let us know what you find

Best, Ken
Was this
answer
helpful?
Yes
No
Sunday, January 6th, 2019 AT 8:03 PM
Tiny
CARADIODOC
  • MECHANIC
  • 34,490 POSTS
They gave it a double whammy. The first relay turns on when the ignition switch is on. The second one turns on when the ignition switch is on AND the Engine Computer turns that relay on. If either relay fails to turn off, the other one will handle that.

What I would do is remove relay number 2, then connect terminal #4 to terminal #1. The fuel pump should run by just turning on the ignition switch. If it does, there's one other test, but the definitive test is to stick a tiny piece of wire into terminal #4, reinstall the relay, turn on the ignition switch, then the pump should run when you ground that wire. If it does, the Engine Computer isn't turning it on during cranking. If the pump DOESN'T run, the circuit can be left like that for troubleshooting.
Was this
answer
helpful?
Yes
No
+3
Sunday, January 6th, 2019 AT 8:03 PM

Please login or register to post a reply.