Wednesday, December 22nd, 2010 AT 3:15 PM
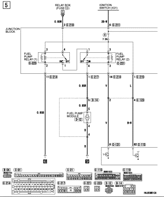
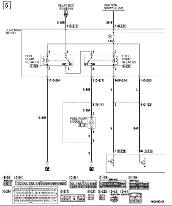
The car died, no fuel. I have checked the 15 amp fuse under the hood -it's good. The 7.5 amp fuse under the dash is also good. I tested both the #1 and #2 fuel pump relays under dash-they are good. The pump runs fine with 12v applied to it. The issue is this: When testing the relay sockets under the dash for voltage, I have 12v into #1 relay with key on- it completes the circuit and sends 12v to #2 relay. However I can not get the second relay to close as I do not have ground at the other side of the coil on the #2 relay. According to the diagram, ground comes from a transistor (violet wire) in the ECM for the second relay. My question is do I have a bad transistor in the ECM or does some other sensor or system need to send a signal to the ECM to allow the ground to be sent back to the #2 fuel pump relay? What else should I check?



