Where is the Circuit Opening relay located?

Tiny
DETERMINATOR
  • MEMBER
  • 1997 TOYOTA AVALON
  • 3.0L
  • 6 CYL
  • 2WD
  • AUTOMATIC
  • 160,000 MILES
The car cranks and starts, running for about 2 seconds before choking off. I have replaced the fuel pump; but the car continues to do the same thing. I know it's a fuel delivery issue because the car runs a little longer with starter fluid. My research tells me to check the fuel pump relay which is called Circuit Opening relay. I get conflicting info about where it is located exactly. My car is made to California emissions standards if that makes a difference. Is the relay immediately visible or do you have to dig past a bunch of wires?

Car listed above is an XLS model.
Friday, January 28th, 2022 AT 10:29 PM

11 Replies

Tiny
SQM
  • MECHANIC
  • 6,383 POSTS
Hello,

Do you hear the fuel pump when the key is turned to the on position?

The fuel pump relay (circuit opening relay) is located on the fuse panel on the passenger side footwell fuse panel (see diagram below).

Here is a helpful guide on how to test the relay:

https://www.2carpros.com/articles/how-to-check-an-electrical-relay-and-wiring-control-circuit

Please let me know if you have any questions.
Thank you.
Was this
answer
helpful?
Yes
No
+3
Saturday, January 29th, 2022 AT 9:18 AM
Tiny
DETERMINATOR
  • MEMBER
  • 6 POSTS
Hello Sean M,
Thanks for responding with your answer. I did hear the fuel pump working for a couple seconds after putting in a new pump. The car would start but cut off right away. When starter fluid was used the car ran about 5 seconds longer. Next, I loosened the bolt at the top of the filter to see if fuel would come out with the key switched on. Fuel only came out when I cranked it. I'm going to look for the relay where you said - passenger side kick panel. The last time I looked, there was a mass of wires hanging out there. Thanks for the diagrams and relay testing info. I'll let you know what I come up with.
Was this
answer
helpful?
Yes
No
+2
Saturday, January 29th, 2022 AT 10:52 PM
Tiny
SQM
  • MECHANIC
  • 6,383 POSTS
Since you are able to make it run longer with the starting fluid, the issue is likely not getting proper fuel. It is possible for the relay to cutout after a few seconds, due to having too much internal resistance.
If the relay checks out, you will have to test the fuel pressure to see if it is providing sufficient amount.

Let me know how it goes.
Was this
answer
helpful?
Yes
No
+2
Sunday, January 30th, 2022 AT 10:17 AM
Tiny
DETERMINATOR
  • MEMBER
  • 6 POSTS
Hey Sean M, how are you doing? To follow-up from the last time, I found a 5-pin relay believed to be the opening circuit relay where you said it was. Based on the tests that I learned to perform it's working properly. I think your suggestion about there being internal resistance has merit. I measured the voltage at the battery and then measured the voltage across the pump connector. There was 0.66 drop in voltage between the two. This measurement was taken with the switch on and the connector unattached. To the pump. There was a 0.10 drop on the negative side and a 0.56 drop on the positive side. It was recommended to test pump voltage under load, but the pump connector is not easily back probed. I don't see how to take this reading with the connector attached to the pump. Do you think I have enough information to conclude that I have to test each circuit element to find this resistance? I don't know how to trace the whole pump circuit. Would I use a continuity tester and a test light or multimeter. I'm afraid of shorting out the PCM or computer. What do you think?
Was this
answer
helpful?
Yes
No
+1
Friday, February 4th, 2022 AT 12:25 AM
Tiny
SQM
  • MECHANIC
  • 6,383 POSTS
If there is too much internal resistance on the relay it will get hot much faster. Which can cause it not to work. So might want to check and see if it gets hot after the key is on for a little while.
The voltage drop is not significant enough to point to a wiring issue.

So, since you have the new pump, you can hear the pump come on for few seconds, right?

Another possibility is if the pump is functional and the relay is good, then there could be a fuel flow issue at the injectors. Which could be due to a bad fuel pressure regulator.

This vehicle should have 44-50 PSI of fuel pressure with the key on and engine off.

https://www.2carpros.com/articles/how-to-check-fuel-system-pressure-and-regulator
Was this
answer
helpful?
Yes
No
+1
Friday, February 4th, 2022 AT 8:14 AM
Tiny
DETERMINATOR
  • MEMBER
  • 6 POSTS
Hey Sean M,

I'm realizing that I've been taking readings across the wrong terminals to the pump connector. This led me to believe the pump was getting proper voltage when it was not. I'm actually getting zero voltage across pin 4 and 5. So, this should explain no activity with the key on. As before, the car starts but cuts off immediately. How would you proceed from here? The fuses and relays check out. Since there is no voltage to the pump through the car, how would you apply voltage directly to check that the new pump does work? Would you tap into the connector wires or jump from the battery to the male contacts at the pump?
Was this
answer
helpful?
Yes
No
+1
Wednesday, February 9th, 2022 AT 11:09 PM
Tiny
SQM
  • MECHANIC
  • 6,383 POSTS
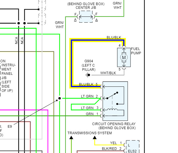
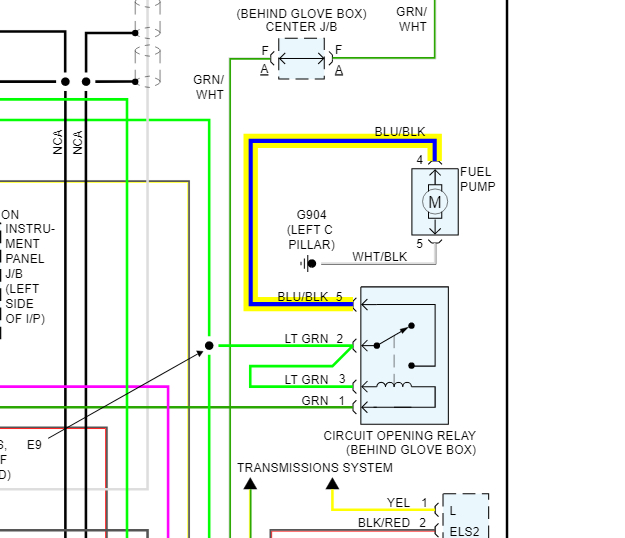
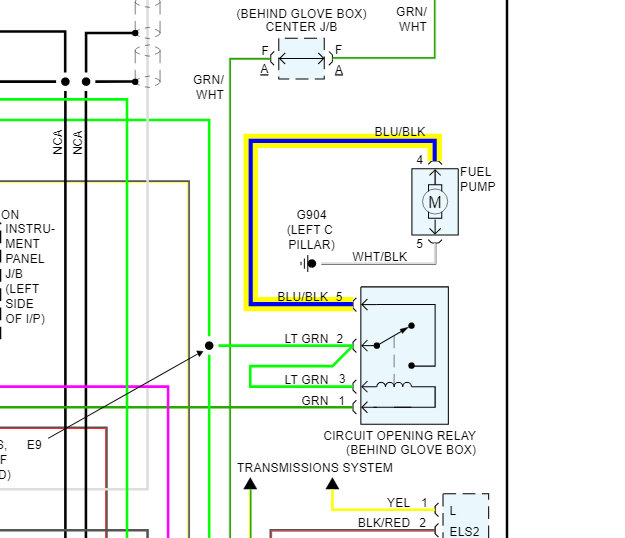
So, if you are not getting power and you have a known good pump, and relay is good and have power, then the issue should be the wiring to the pump. It could be power wire or a bad ground, which is on the left C pillar.
I have attached the wiring schematics below.
Was this
answer
helpful?
Yes
No
+2
Thursday, February 10th, 2022 AT 11:18 AM
Tiny
DETERMINATOR
  • MEMBER
  • 6 POSTS
Hey Sean M,

Just a quick summary, the car starts every time and cuts off immediately. Starter fluid helps it run longer. There is zero voltage across terminals 4 and 5 of the pump connector. I haven't found any problems with ground. But when I probed the connector to the open circuit relay one of the contacts was dead. The test light did not indicate red or green as with the others. My interpretation is open circuit in one of the wires supplying the 5-pin relay. I believe this could be the culprit. I haven't been able to get a clear diagram in enough detail to identify color and purpose of the wires going to the relay. One of the wires is always red for hot. Another wire turns from ground to hot when the switch is turned on. Could the dead wire be supplied by the ECU. How can it be checked. In which direction should I go.

Regards,
Patrick
Was this
answer
helpful?
Yes
No
+1
Saturday, February 19th, 2022 AT 11:04 PM
Tiny
SQM
  • MECHANIC
  • 6,383 POSTS
Hey Patrick,

So, are you getting correct power to the relay?
If you have power to the relay but not out of the relay to the pump connector, then the issue would be the wire between the relay and the pump.

Have you tried to provide direct 12V to the pump and see if that makes the engine run?
Was this
answer
helpful?
Yes
No
+1
Sunday, February 20th, 2022 AT 7:07 PM
Tiny
DETERMINATOR
  • MEMBER
  • 6 POSTS
Hey Sean M,

I'm reading the battery voltage at the constant power connection to the relay. For the one controlled by the on-switch, I read 11.75 voltage when battery reads 12.23 volts. The other three contacts read 0.0 to less than 2volts. When I applied direct power to the fuel pump, it did start running, but there was no pressure coming out from the filter to the fuel rail. The car did not start when jumping the pump and cranking the engine together.
Was this
answer
helpful?
Yes
No
+1
Thursday, February 24th, 2022 AT 4:00 PM
Tiny
SQM
  • MECHANIC
  • 6,383 POSTS
The voltage to the relay is within specifications, it is not unusual to have little loss at the relay.
But if you are not getting any power to the pump, then the issue is likely a broken wire between the relay and the pump.
Check the resistance on the connector on the pump, if it reads OL then there is an open in the wire.

So, with no pressure coming out of the rail or the filter, it could either mean a weak pump or a restriction in the line or the fuel pump strainer is clogged.
Was this
answer
helpful?
Yes
No
+3
Saturday, February 26th, 2022 AT 10:15 PM

Please login or register to post a reply.