HOME
ASK A QUESTION
REPAIR GUIDES
BECOME A MEMBER
LOG IN
Login with Facebook
OR
Remember me
NOT A MEMBER?
FORGOT PASSWORD?
CONTACT US
PRIVACY POLICY
TERMS AND CONDITIONS
☰
Home
Chevrolet
Caprice
Exterior Light
Running Light
Wiring
Tail light wiring?
TONY STARKS2
MEMBER
1986 CHEVROLET CAPRICE
1,222 MILES
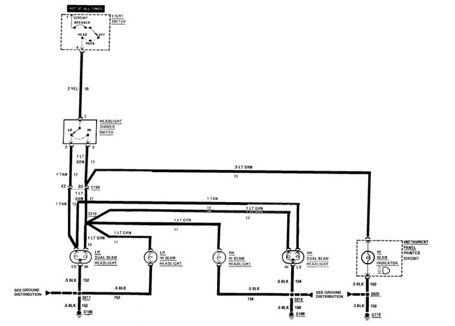
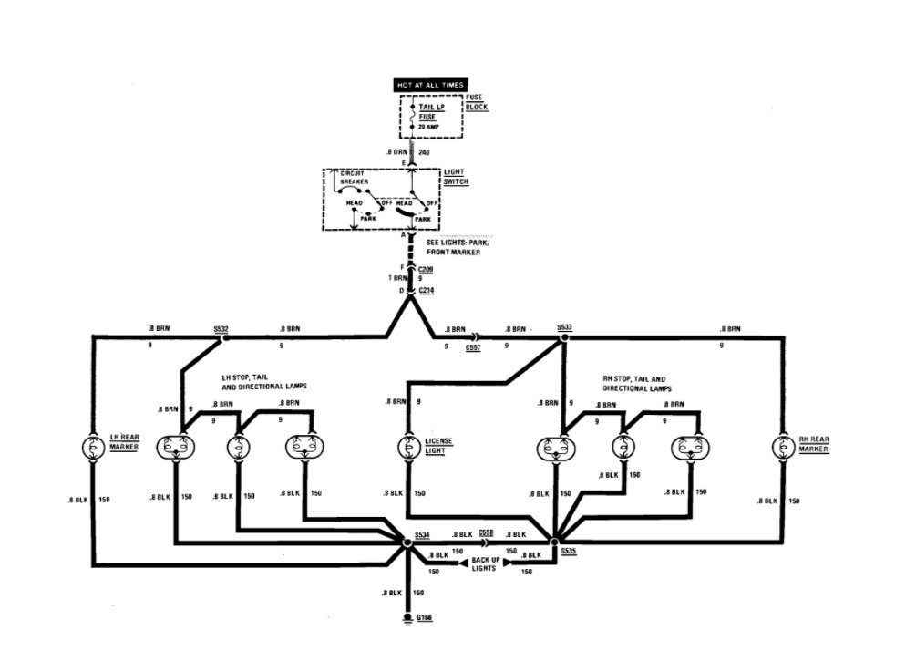
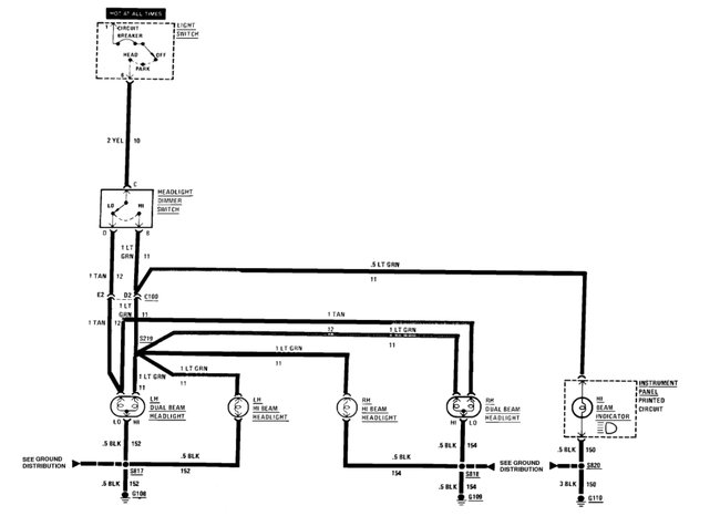
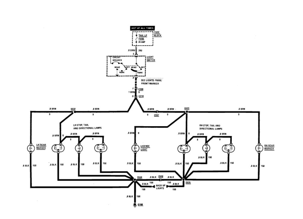
Are the head and tail lights connected by same wire?
Tuesday, January 12th, 2021 AT 6:23 PM
2 Replies
STEVE W.
MECHANIC
15,702 POSTS
Not on that car. The tail lights have a different power feed, the only part they share is the headlight switch itself.
Was this
answer
helpful?
Yes
No
Tuesday, January 12th, 2021 AT 9:54 PM
KEN L
MASTER CERTIFIED MECHANIC
55,535 POSTS
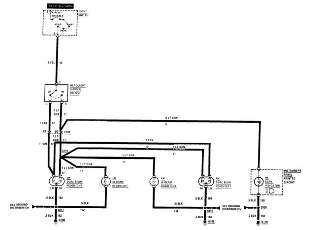
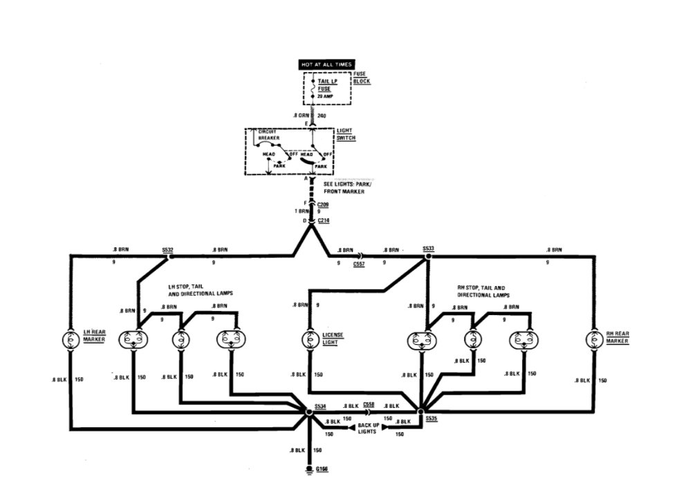
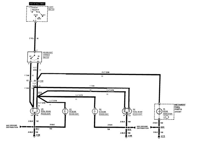
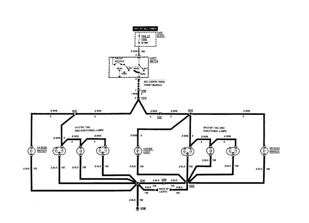
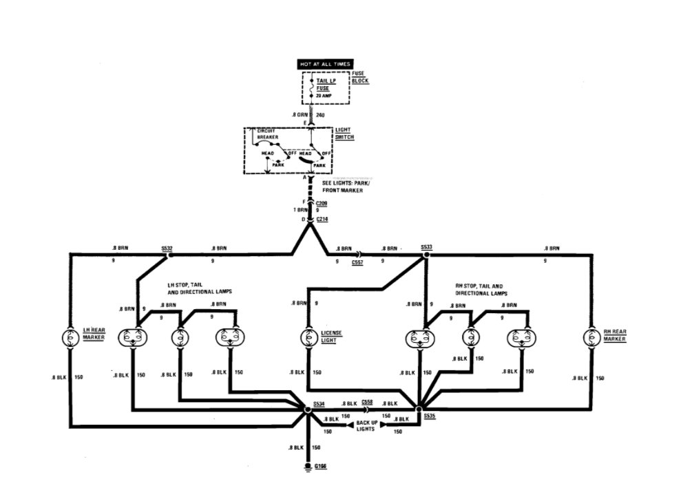
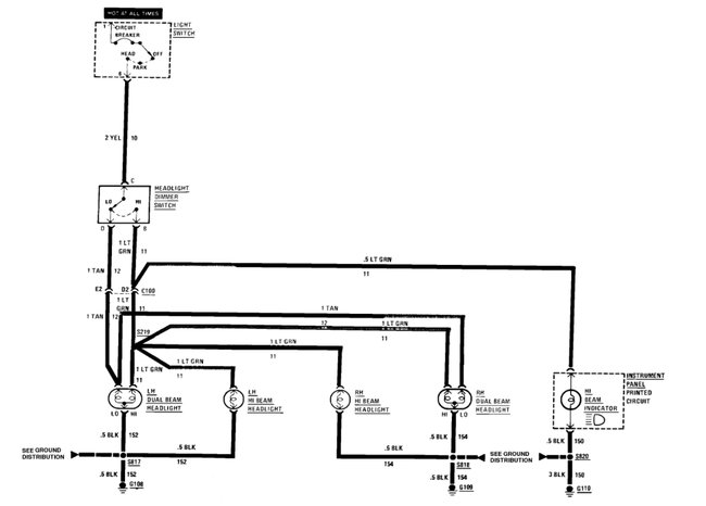
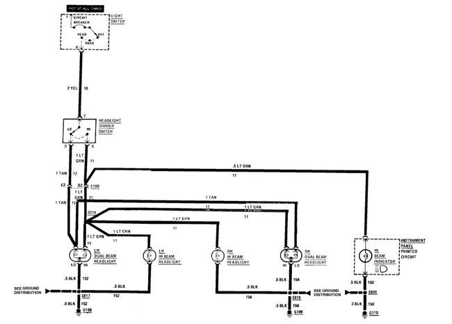
Here is a guide to help you check the wiring with the headlight and tail light wiring diagrams so you can see how the system works:
https://www.2carpros.com/articles/how-to-check-wiring
Check out the diagrams (below). Let us know what happens and please upload pictures or videos of the problem.
Images (Click to make bigger)
Was this
answer
helpful?
Yes
No
Wednesday, January 13th, 2021 AT 11:17 AM
Please
login
or
register
to post a reply.
Related Running Light Wiring Content
1998 Chevy Caprice Wiring
My Interior Lights Didn't Come On When I Opened The Car Door.I Have No Heat No Radio No Turn Signals And No Tail Lights. I Do Have Brake...
Asked by
bkennedy22
·
1 ANSWER
1998
CHEVROLET CAPRICE
1988 Chevy Caprice Brake Lights Wont Get Brighter...
My Brake Lights Come On When I Have The Cars Headlights On, And The Turn Signals Always Work, But When I Press The Brake Down, They Dont...
Asked by
alextrubek
·
8 ANSWERS
1988
CHEVROLET CAPRICE
Tail Light Failure
Recently, My Running Tail Lights Went Out, Hazards Work Fine As Well As My Turn Signals. As Well As My Brake Lights Went Out. I Do Not...
Asked by
Jasonl1990
·
1 ANSWER
1990
CHEVROLET CAPRICE
Why Dnt My Headlights On My 1993 Chevy Caprice Dnt...
My Park Lights And Every Other Lights Come Except My Headlights
Asked by
keemMarley
·
2 ANSWERS
1993
CHEVROLET CAPRICE
1985 Chevy Caprice
Not Sure What Is Going On But Just Noticed Having An Issue With My Brake Lights. The Brake Lights Will Work Fine But There Are Times When...
Asked by
jgarciawb503
·
2 ANSWERS
1985
CHEVROLET CAPRICE
VIEW MORE
Ask a Car Question. It's Free!
Turn Signals Blink Fast
Headlight Dim or Dull
Have a Dim Headlight? - Try Replacing This!