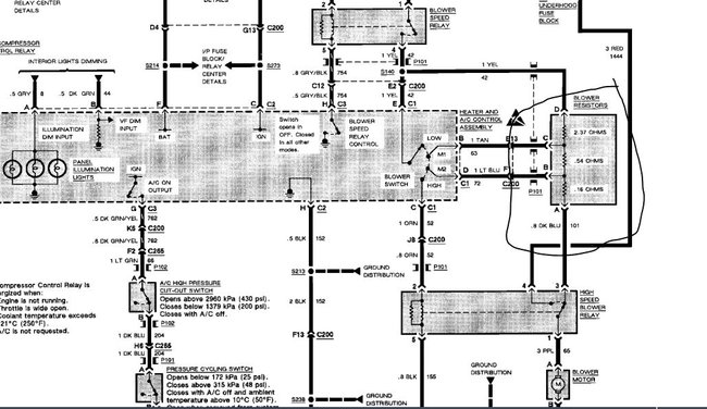
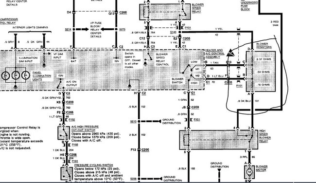
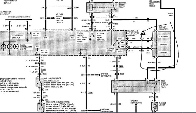
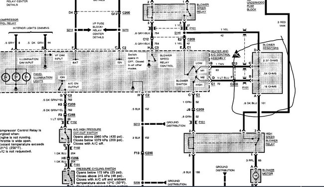
Tuesday, November 12th, 2019 AT 1:16 PM
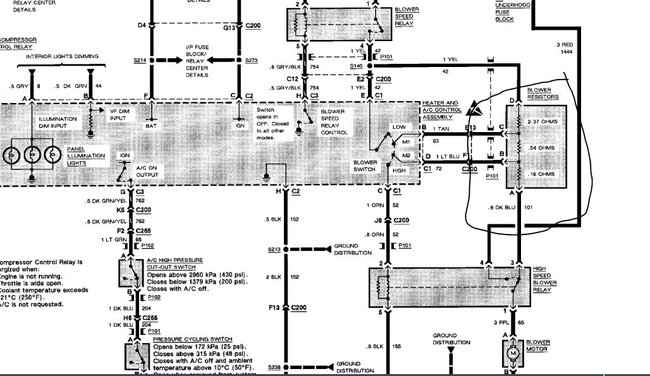
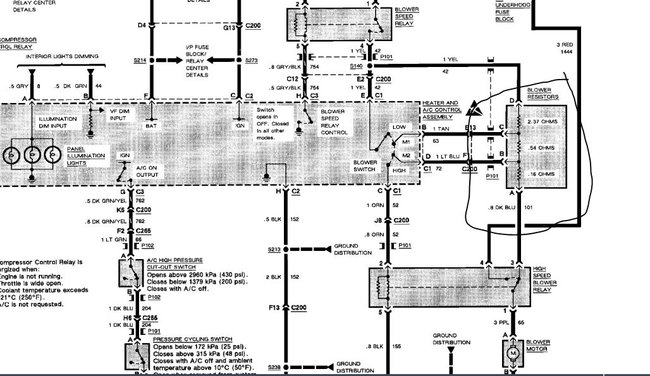
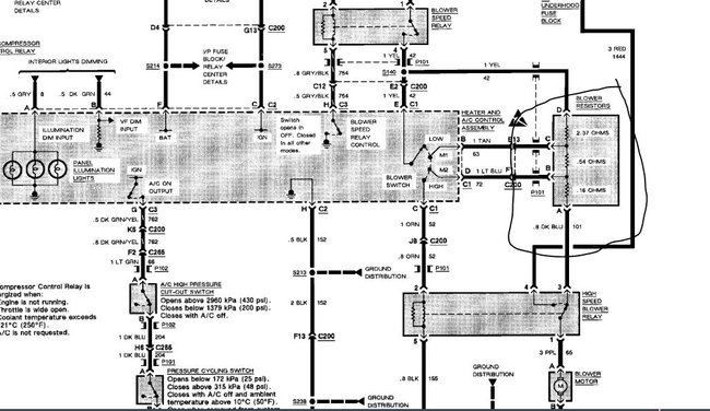
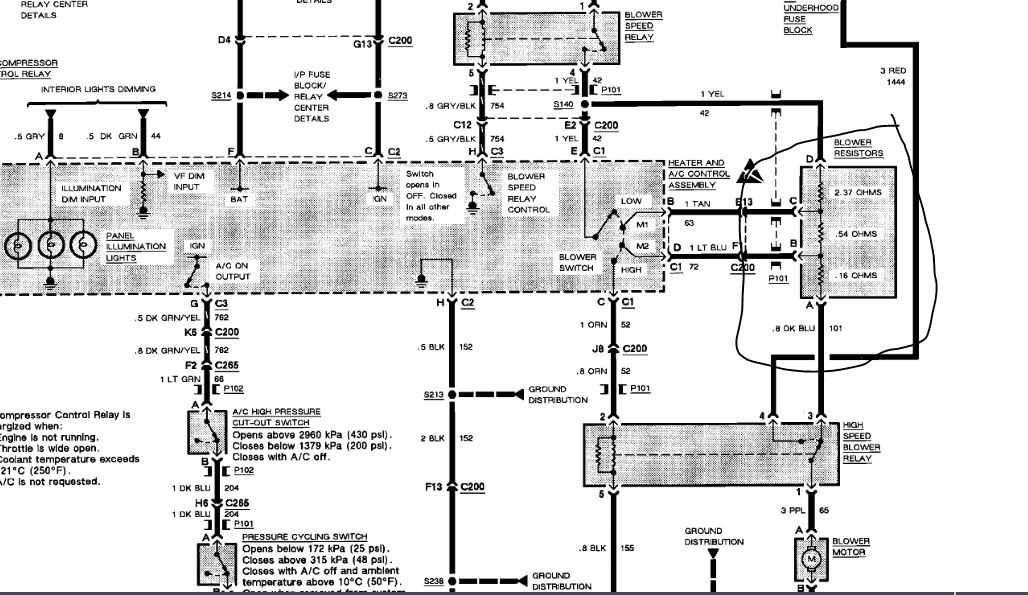
Took my car to a Goodyear service, but same problem. Next took my car to a Buick service center was took my e center because the fan stopped blowing (heat, defrost, vent) they replaced the fan control head was bad. So I had the control head replaced and still have the problem - fan will not blow? If is not the fan or control head where do I go from?





