Ground wire for fuel pump relay 2?

Tiny
SEMME03
  • MEMBER
  • 2003 MITSUBISHI ECLIPSE
  • 2.4L
  • 4 CYL
  • 2WD
  • MANUAL
  • 214,000 MILES
I've gone through diagrams and see the ground for fuel pump relay 2 and people say it goes to ECU or PCM. I'm currently testing for ground and receive no ground for fuel pump relay 2. Where does it get its ground from and why would there be no ground?
Thursday, February 2nd, 2023 AT 2:00 PM

20 Replies

Tiny
AL514
  • MECHANIC
  • 5,593 POSTS
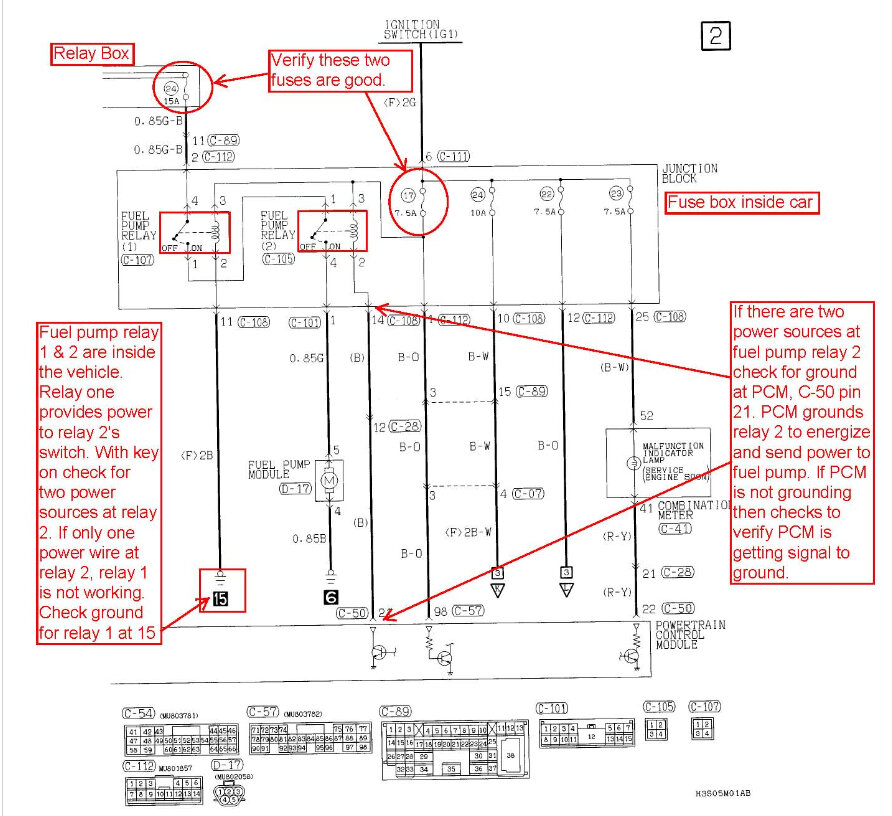
Hello, the ground does go through the ECM, the OEM diagrams are showing a transistor inside the ECM that closes that ground connection. So, either you have a wiring issue from the relay to the ECM, it's missing an ECM ground, and I will post the diagrams, or the transistor driver inside the ECM burned out. A wiring issue to the ECM is the most likely problem, so checking the wiring from the relay to the ECM would be my first test.
There are the connector C 108 at the Junction Block, also C 28 a connector in between the ECM and the junction block, and then the ECM connector itself.
The C28 connector looks like it's in a pretty difficult place, somewhere in the lower center console. So, checking the circuit from the relay to the ECM connector for an open circuit to begin with will be easier. I'll find the ECM pinout.
Was this
answer
helpful?
Yes
No
+1
Thursday, February 2nd, 2023 AT 2:29 PM
Tiny
SEMME03
  • MEMBER
  • 11 POSTS
I have that picture and was wondering what is the transistor for. Like is there a reason it won't give ground due to safety in the computer? If not, I'll continue to follow the trail of that wire and determine whether there is a break in the wire or something to do with ECM. Thank you for your reply.
Was this
answer
helpful?
Yes
No
-1
Thursday, February 2nd, 2023 AT 2:43 PM
Tiny
AL514
  • MECHANIC
  • 5,593 POSTS
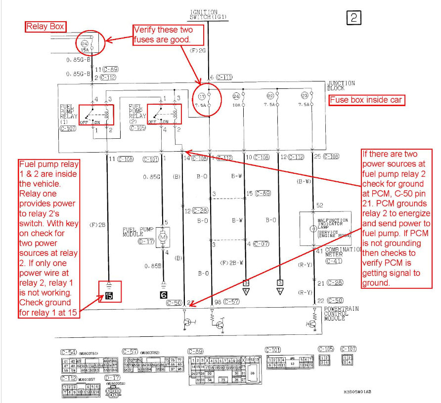
The transistor is what the ECM uses to turn that ground connections off or on. It's a 3 pin component, think of it like a switch, when the ECM sends a low voltage signal to the Base of the transistor, it turns the transistor on and completes the Ground through the other 2 pins. The 1st diagram is one I threw together to show how a NPN transistor works, the rest are the connections in between the relay and ECM and each connectors pinout. Just note that when you go to check the ECM connector to see if that ECM pin is making ground for the relay, you need to use an led test light, that ECM driver is not made for high current, if the transistor isn't bad and you use and incandescent test light to check that ECM ground you could burn it out. That Fuel pump relay probably only pulls 150 to 200ma maybe. So, anything more than that and the ECM will be junk. Using an LED test light is the only safe way to check that ECM driver. If you don't find any connection issues to the ECM, check the relays resistance, a shorted relay on its control side will burn out a driver like that. Relays are usually around 75 ohms.
Was this
answer
helpful?
Yes
No
Thursday, February 2nd, 2023 AT 3:11 PM
Tiny
SEMME03
  • MEMBER
  • 11 POSTS
Just to make sure I'm not going to fry anything, but I can check the continuity of that wire with a multimeter right?
Was this
answer
helpful?
Yes
No
Thursday, February 2nd, 2023 AT 3:24 PM
Tiny
AL514
  • MECHANIC
  • 5,593 POSTS
As long as the key is off you should be okay, I assume you're back probing the ECM connector. You just don't want to draw current through the ECM to ground, so if you had the test light hooked up to battery positive and were checking that ECM pin to see if it was grounding, which would be pulling current through the ECM driver. LED test lights only pull about 20ma. But a regular test light can pull too much. When you were getting no ground, were you cranking the engine, because that relay is going to give a 2 second prime with key On, and then wait for the cranking to reenergize that circuit. It's kind of a bad design putting 2 fuel pump relays in there. Not sure why they need to do that. Also are you getting a crank signal from the Tach? Or do you have a scan tool where you can look for an rpm signal?
Was this
answer
helpful?
Yes
No
Friday, February 3rd, 2023 AT 11:50 AM
Tiny
SEMME03
  • MEMBER
  • 11 POSTS
So, I have scan tool with live data and made sure I had rpm read out and that was good. At first it wasn't due to the previous mechanic that put the sensor on backwards. I replaced it with a new one because the customer already bought it she wanted the new one in even though I had read out from the old one when I flipped it. But now I have no power going to the fuel pump. I checked for ground when I switched the key to on and also while cranking. Never heard or felt the fuel pump prime and never received ground for relay 2.
Was this
answer
helpful?
Yes
No
Friday, February 3rd, 2023 AT 1:36 PM
Tiny
SEMME03
  • MEMBER
  • 11 POSTS
I also wasn't sure if it ever had power going to it in the first place. The car is stuck at a fast-food restaurant and this mechanic threw parts at it. New fuel pump, new coils, new spark plugs, new CPS, and he had fuses and relays not in the right spots. It's really hard working on it when someone that doesn't know what to look for is also working on it. Guy had no multimeter or scan tool to check anything.
Was this
answer
helpful?
Yes
No
Friday, February 3rd, 2023 AT 1:41 PM
Tiny
AL514
  • MECHANIC
  • 5,593 POSTS
I know you're not hearing the pump, I'm just curious how are you checking for ground on the number 2 relay, are you using a test light to battery positive?
Oh goodness. One of those situations huh. So you're not sure what he may have done.
Was this
answer
helpful?
Yes
No
Friday, February 3rd, 2023 AT 1:42 PM
Tiny
SEMME03
  • MEMBER
  • 11 POSTS
I used a multimeter to check continuity.
Was this
answer
helpful?
Yes
No
Friday, February 3rd, 2023 AT 1:45 PM
Tiny
AL514
  • MECHANIC
  • 5,593 POSTS
Okay, so you're checking from the relay to battery negative and aren't getting any ground at any point. And that original issue was no fuel pump operation when you got to it? The only reason I get super careful when it comes to ECM drivers, is some drivers have protection inside the ECM and some don't. And looking at these OEM diagrams I don't see any kind of resistor like I do on an ECM power feed. And even a multimeter puts out voltage to check resistance in a circuit. My main meter I use for continuity check puts out a very low voltage because it's a self-ranging meter but my other meter which is more basic puts out 2.4volts when doing a regular continuity check. I hope he didn't try jumping power on the fuel pump relays. Seeing you're the 2nd guy onto this, now it's difficult to say if he caused more damage. Did you bench test the relays just to see if they had continuity on the load side when powered up? Because if you don't have any ground at the ECM at this point, then doing powers and ground checks on the ECM is next. Sorry for the long post.
Was this
answer
helpful?
Yes
No
Friday, February 3rd, 2023 AT 2:06 PM
Tiny
SEMME03
  • MEMBER
  • 11 POSTS
Yes, relay was bench tested and I own a self-ranging multi meter that I used for checking continuity to ground. But I have not checked the continuity of that wire running through dash. Waiting for the car to be towed home.
Was this
answer
helpful?
Yes
No
Friday, February 3rd, 2023 AT 2:15 PM
Tiny
AL514
  • MECHANIC
  • 5,593 POSTS
Oh okay, you don't even have the vehicle yet. I gotcha, I'm going through the ECM powers and grounds right now but will also try to find a better diagram of that connector in the center of the dash. I've seen a lot of electrical problems with these cars, did he give you any additional information on it?
Was this
answer
helpful?
Yes
No
Friday, February 3rd, 2023 AT 2:35 PM
Tiny
SEMME03
  • MEMBER
  • 11 POSTS
I do mobile mechanic work and as soon as I found out that I had no ground at all I asked if she could have It towed to her place so I could it in the garage rather than out in the freezing cold. The physical work in the cold is fine but electric, no can do. And no, I have no other information besides the lady said she heard a pop behind the dash the day it went down.
Was this
answer
helpful?
Yes
No
Friday, February 3rd, 2023 AT 2:41 PM
Tiny
AL514
  • MECHANIC
  • 5,593 POSTS
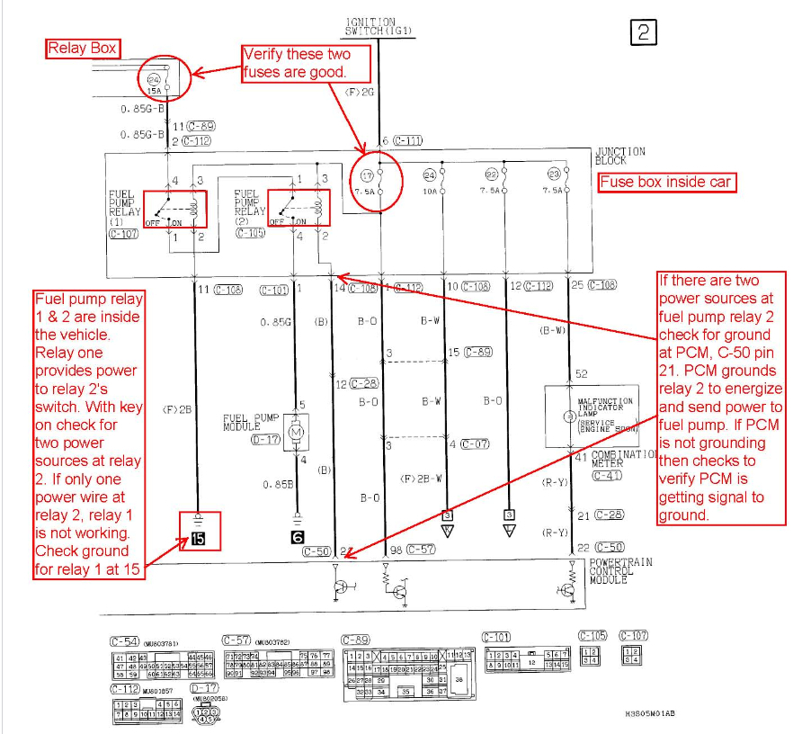
Yeah, I do mobile diagnostics too, got to love it. Were there any codes stored? This C28 connector looks like it's below the HVAC controls, it has wiring for the cluster and control harness combination. So that's not very helpful.
Also, a 16pin dlc plus another data connector that's C30 pins 21 to 32, I don't know what this other data connector is for. Also found this through all data community, looks like there is supposed to be an empty space between the 2 fuel pump relays. This 3rd diagram will be helpful too.
Was this
answer
helpful?
Yes
No
Friday, February 3rd, 2023 AT 2:56 PM
Tiny
SEMME03
  • MEMBER
  • 11 POSTS
These diagrams make me feel better knowing what I'm doing is correct. This whole thing getting ground from PCM for a 2nd relay is dumb thank you for all your help with these diagrams I'll be sure to post back what I find when it makes it back to the owner's home. I'll be a lot warmer to and will be sure to take pictures of what I find.
Was this
answer
helpful?
Yes
No
Friday, February 3rd, 2023 AT 3:28 PM
Tiny
AL514
  • MECHANIC
  • 5,593 POSTS
One other quick test you can do is that pin at the ECM, pin 22 with key on should read 12-volts until the engine is cranked over and the relay is pulled to ground. So, Key on 12-volts, engine running less than 1 volt. 12-volts will travel through the relay to the ECM connector until the ECM grounds it. This will verify your powers through that hidden connector without having to deal with it. Looks like a black wire.
Was this
answer
helpful?
Yes
No
Friday, February 3rd, 2023 AT 3:34 PM
Tiny
SEMME03
  • MEMBER
  • 11 POSTS
I have power to the signal wire with key on.
Was this
answer
helpful?
Yes
No
Friday, February 3rd, 2023 AT 3:44 PM
Tiny
AL514
  • MECHANIC
  • 5,593 POSTS
At the ECM? And the voltage doesn't drop off when cranking? If not, we need to figure out if there's any inputs missing to the ECM. I'd think it would just be a crank signal, but there might be an ignition feed missing since he had the fuses out. That's something that will need to be verified. I haven't gone through all the power feeds yet to the ECM, it's a bit slow with these OEM diagrams.
Was this
answer
helpful?
Yes
No
Friday, February 3rd, 2023 AT 4:11 PM
Tiny
SEMME03
  • MEMBER
  • 11 POSTS
No at the relay.
Was this
answer
helpful?
Yes
No
Friday, February 3rd, 2023 AT 4:21 PM
Tiny
AL514
  • MECHANIC
  • 5,593 POSTS
With the relay in, you should read 12v on pin 22 of the ECM. The wire that gets grounded. It will read voltage until it's pulled to ground by the computer. Same with a fuel injector, or any other solenoid. The control wire will read the voltage coming through the relay until the relay is energized. Once you start to crank the engine over, that voltage should drop to 0v.
Was this
answer
helpful?
Yes
No
Friday, February 3rd, 2023 AT 5:23 PM

Please login or register to post a reply.