Where to purchase 25A circuit breaker

Tiny
GEORGE KOLASA
  • MEMBER
  • 2000 FORD MUSTANG
  • V6
  • AUTOMATIC
  • 80,400 MILES
Where can I purchase a 25A circuit Breaker for the car listed above convertible. Dealer does not have one to sell.
Friday, July 10th, 2020 AT 1:10 PM

5 Replies

Tiny
ASEMASTER6371
  • MECHANIC
  • 52,796 POSTS
Good afternoon,

Any parts store should sell this for you.

Can you post a picture of the style of fuse you need?

Why are you adding a 25 amp breaker?

Roy
Was this
answer
helpful?
Yes
No
Friday, July 10th, 2020 AT 2:53 PM
Tiny
GEORGE KOLASA
  • MEMBER
  • 3 POSTS
Roy,

Replacing the 25A CB on the car listed above that is a convertible. Description for the location in the power distribution box.
Was this
answer
helpful?
Yes
No
Friday, July 10th, 2020 AT 3:49 PM
Tiny
ASEMASTER6371
  • MECHANIC
  • 52,796 POSTS
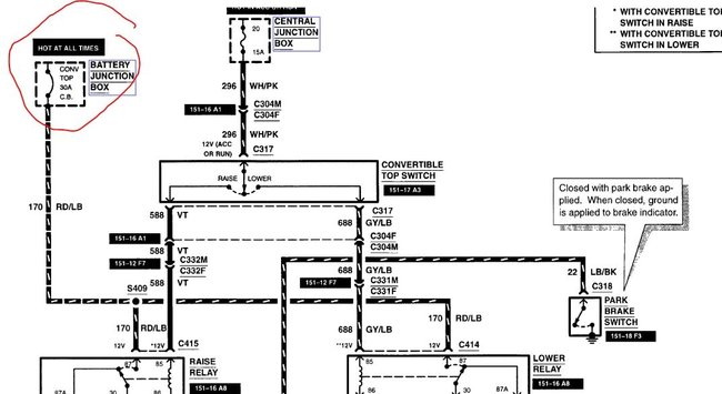
Okay, I attached the fuse box diagram and locations.

I also attached the wiring diagram for you. It takes a 30 amp circuit breaker for the system, not a 25.

https://www.2carpros.com/articles/how-to-check-a-car-fuse

How do you know it needs breaker replaced if you do not know where the breaker is located? I have to ask this.

https://www.2carpros.com/articles/how-to-check-wiring

What is the issue?

Roy
Was this
answer
helpful?
Yes
No
+1
Friday, July 10th, 2020 AT 4:08 PM
Tiny
GEORGE KOLASA
  • MEMBER
  • 3 POSTS
Thanks for the information, Roy
Problem: 2000 Mustang convertible. Dropping the convertible top--no problem. Bringing the convertible top back up--problem. Goes up struggling about 1/4 the way and stops.
Thought I would replace the fuses and circuit breaker first. Otherwise, I assume it might be the motor taking the convertible top down and backup.
The cook states CD25A in the power distribution box for the convertible top. Hard time finding that CD25A. Would CS20A or CD30A be used as a replacement? Thanks for your help.
Was this
answer
helpful?
Yes
No
Saturday, July 11th, 2020 AT 3:37 PM
Tiny
ASEMASTER6371
  • MECHANIC
  • 52,796 POSTS
Okay, if you looked a the list for the fuse box, you will see the breaker for the top is 30 amp, not 25. So 30 is what you need but it is not the issue. If it was, the top would not function at all.

I think the issue is hydraulic. You are either low in fluid or the lift cylinders may be bad.

Roy

1. Remove the hydraulic system from the vehicle. Refer to Convertible Top Motor.

ImageOpen In New TabZoom/Print

2. Remove the fill plug at the end of the hydraulic pump.

ImageOpen In New TabZoom/Print

3. Fill the pump with Mercon(R) Multi-Purpose Automatic Transmission Fluid XT-2-QDX or equivalent to the bottom of the fill hole and install the fill plug.
4. Connect a 12-volt power source to the motor connector and operate the motor until the cylinders are fully extended. Reverse the 12-volt connection to fully retract the cylinders. Repeat this procedure three times.

NOTE: Some noise squeal may be noticed due to the air in the system.

ImageOpen In New TabZoom/Print

5. Remove the fill plug and check the fluid level. Fill the pump with MERCON(R) Multi-Purpose Automatic Transmission Fluid XT-2-QDX or equivalent to the bottom of the fill hole.

ImageOpen In New TabZoom/Print

6. Install a fill plug.
7. Install the hydraulic system in the vehicle. Refer to Convertible Top Motor.
Was this
answer
helpful?
Yes
No
+1
Saturday, July 11th, 2020 AT 4:30 PM

Please login or register to post a reply.