Running lights do not work?

Tiny
ROBERT A MEYER
  • MEMBER
  • 2008 FORD F-150
  • V8
  • 4WD
  • AUTOMATIC
  • 10,200 MILES
We have pulled several trailers over the last year and a half with no problems. Now the running lights do not work. The turn signals and brake lights work fine. Where do I start looking for the problem?
Saturday, September 25th, 2010 AT 9:46 AM

29 Replies

Tiny
KHLOW2008
  • MECHANIC
  • 41,814 POSTS
Hi Robert ,

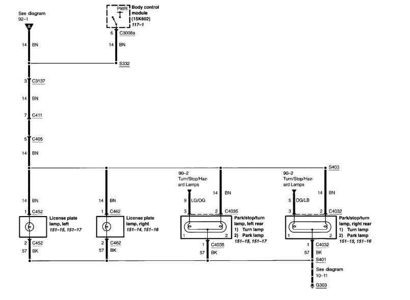
It sounds like it could be the headlight switch but to be sure lets check the fuses and run down this guide to get started.

https://www.2carpros.com/articles/no-tail-lights-exterior-running-lights-tail-lights-out

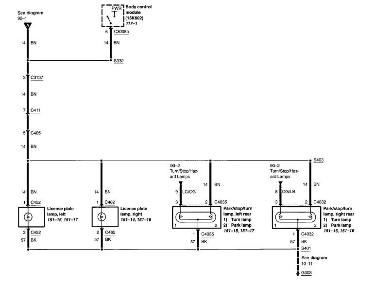
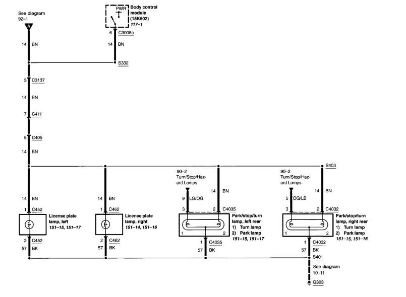
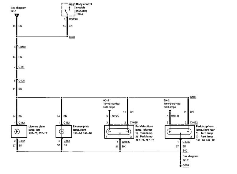
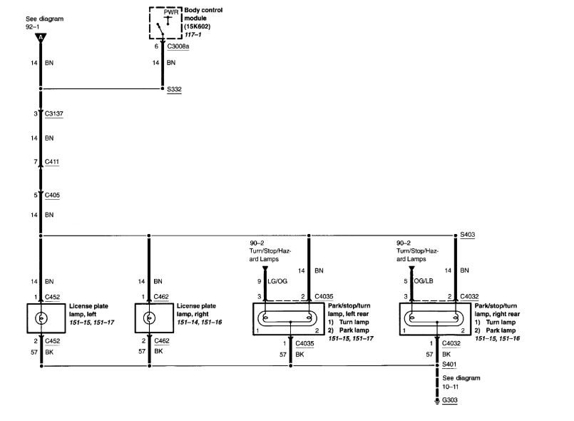
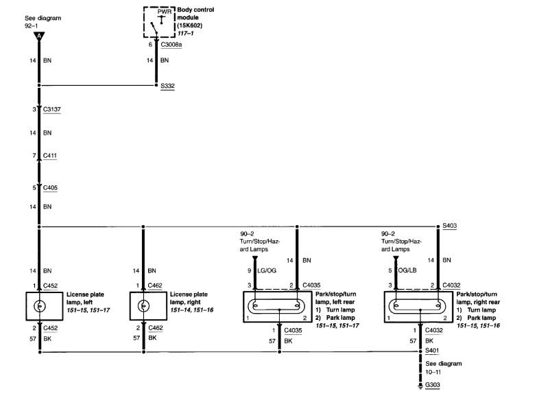
Here are the running light wiring diagrams so you can see how the system works. Check out the diagrams (Below). Please run this test and get back to us.

Was this
answer
helpful?
Yes
No
+1
Saturday, September 25th, 2010 AT 11:30 AM
Tiny
ROBERT A MEYER
  • MEMBER
  • 2 POSTS
Yes, it was fuse #6 fixed it, thanks for your help and the guidance.
Was this
answer
helpful?
Yes
No
Monday, September 27th, 2010 AT 8:19 AM
Tiny
KHLOW2008
  • MECHANIC
  • 41,814 POSTS
Nice work, we are here to help, please use 2CarPros anytime.
Was this
answer
helpful?
Yes
No
Monday, September 27th, 2010 AT 2:47 PM
Tiny
OFARRENM
  • MEMBER
  • 1 POST
  • 2004 FORD F-150
  • 5.4L
  • V8
  • 4WD
  • AUTOMATIC
  • 120,000 MILES
When I turn on my headlights, my taillights do not come on. All other lights work as they should. My turn signals to the front and rear work, my hazard lights work, my back up lights work, and my dash lights work. When I turn on the daytime running lights(one click to left from off position), my taillights work, but I have no dash lights. I have checked the switch, fuses, relays. I have changed both bulbs to the rear. I am suspecting a possible bad ground somewhere but have no idea where to locate the grounds. Any help would be appreciated.
Thank you.
Was this
answer
helpful?
Yes
No
Tuesday, July 28th, 2020 AT 12:15 PM (Merged)
Tiny
ASEMASTER6371
  • MECHANIC
  • 52,796 POSTS
Good morning.

The rear tail lights are controlled by the BCM. It looks for a command from the headlight switch to the BCM. Once that is sent it will turn on the rear lights.

You need a scan tool that can read live data from the BCM. You need to verify a signal is being sent to the BCM from the headlight switch and that the BCM is seeing it and sending commands to the rear lights.

Roy
Was this
answer
helpful?
Yes
No
Tuesday, July 28th, 2020 AT 12:15 PM (Merged)
Tiny
HOTROD FORD
  • MEMBER
  • 1 POST
  • 2002 FORD F-150
  • V8
  • 4WD
  • AUTOMATIC
  • 148,000 MILES
Have no tail lights, dash lights
Was this
answer
helpful?
Yes
No
+1
Tuesday, July 28th, 2020 AT 12:15 PM (Merged)
Tiny
JACOBANDNICKOLAS
  • MECHANIC
  • 110,194 POSTS
Both are powered through the headlight switch. Have you checked that?
Was this
answer
helpful?
Yes
No
+1
Tuesday, July 28th, 2020 AT 12:15 PM (Merged)
Tiny
DUTCHLADY
  • MEMBER
  • 4 POSTS
  • 2001 FORD F-150
Tail lights have stopped working. All fuses and lamps have been checked. Electrical circuits have been tested and are checking out fine. Light switch has been pulled and tested. Where do I go from here? It seems as if everything is in working order, but no tail lights.
Was this
answer
helpful?
Yes
No
+1
Tuesday, July 28th, 2020 AT 12:15 PM (Merged)
Tiny
JDL
  • MECHANIC
  • 16,098 POSTS
It sounds like the parking light relay is not working but to be sure are two guides and the tail light wiring diagrams to see where you are losing power.

https://www.2carpros.com/articles/how-to-use-a-test-light-circuit-tester

and

https://www.2carpros.com/articles/how-to-check-an-electrical-relay-and-wiring-control-circuit

Check out the diagrams (Below). Please let us know what you find.

Cheers
Was this
answer
helpful?
Yes
No
Tuesday, July 28th, 2020 AT 12:15 PM (Merged)
Tiny
DRCRANKNWRENCH
  • MECHANIC
  • 3,380 POSTS
Have you tested the sockets themselves?
Even if they test hot, they cand still get worn out to where they don.T make good contact with the bulb?
Do you have 1157 or 3157 bulba? Reason being the 1157 more prone to fail in regards to not making goood contact with the bulb. Reason being that the bottom plate has a spring behind it that can get weak over time and the contacts themselves can wear down.
The newer 3157, push in straight style, can stiil have the same issues, but less likley.
So, if the sockets are hot when you test them, they might still need replacement. If there is corrosion, you can try WD-40 and let it soak over night and then clean it out. Also, the eraser end of a pencil is good to clean off contacts even if they do not appear corroded as there is a type of corrosion, I forget what it is called, that is hard to see but will create resistance and the eraser will get rid of it.

One last thought, if you happen to be using an LED as an upgrade, sometimes they will have issues and end up being dimmer or not work because a diode does not work well with high amp changes. They usually need a box that handles this problem. They will not dim, blink or get brighter without it.

I hope this helps.
Let me know if you need anything else and I will keep an eye on this post and respond ASAP.
Was this
answer
helpful?
Yes
No
+2
Tuesday, July 28th, 2020 AT 12:15 PM (Merged)
Tiny
DUTCHLADY
  • MEMBER
  • 4 POSTS
Okay here are the answers to the questions.

Voltage tester was used. No the license plate lights do no work. All electrical circuits are complete.

Lights are NOT automatic.

Sockets were tested. Bulbs are 3157.

Everything done so far shows the lights should work. AARGH. It is so frustrating.
Was this
answer
helpful?
Yes
No
+1
Tuesday, July 28th, 2020 AT 12:15 PM (Merged)
Tiny
JDL
  • MECHANIC
  • 16,098 POSTS
Do you have voltage at the brown wire, headlamp switch turned on?
Was this
answer
helpful?
Yes
No
Tuesday, July 28th, 2020 AT 12:15 PM (Merged)
Tiny
DUTCHLADY
  • MEMBER
  • 4 POSTS
Yes there is voltage at the switch. Switch was taken out and tested.
Was this
answer
helpful?
Yes
No
+1
Tuesday, July 28th, 2020 AT 12:15 PM (Merged)
Tiny
JDL
  • MECHANIC
  • 16,098 POSTS
I'm talking about at the rear lites, not the switch?
Was this
answer
helpful?
Yes
No
+1
Tuesday, July 28th, 2020 AT 12:15 PM (Merged)
Tiny
DUTCHLADY
  • MEMBER
  • 4 POSTS
It was the relay thanks for he guides and helping me I love this stie all for free god bless you guys.
Was this
answer
helpful?
Yes
No
Tuesday, July 28th, 2020 AT 12:15 PM (Merged)
Tiny
JDL
  • MECHANIC
  • 16,098 POSTS
Glad you could get it fixed, that kind of problem can be tough. Please use 2CarPros anytime we are here to help

Cheers
Was this
answer
helpful?
Yes
No
+1
Tuesday, July 28th, 2020 AT 12:15 PM (Merged)
Tiny
JULIORAMIREZ
  • MEMBER
  • 1 POST
I've checked the fuses every in my truck four door 2001 f150 my brake lights work but now my automatic ones. I think I might have to rewire them. Do you have any idea what it could be?
Was this
answer
helpful?
Yes
No
+1
Tuesday, July 28th, 2020 AT 12:15 PM (Merged)
Tiny
NOHJ
  • MEMBER
  • 2 POSTS
I found multifunction switch connector ot have an issue. The wires had come out of the connector. This was one problem. Replaced the connector. Now have stop and turn signal lights. Had problem with reverse lights. Connector near spare tire had issue. Wired around the connector now have reverse lights.
Was this
answer
helpful?
Yes
No
+1
Tuesday, July 28th, 2020 AT 12:15 PM (Merged)
Tiny
KEN L
  • MASTER CERTIFIED MECHANIC
  • 55,459 POSTS
Great addition to this thread! Please feel free to help out whenever you are on the site :)

Cheers, Ken
Was this
answer
helpful?
Yes
No
+1
Tuesday, July 28th, 2020 AT 12:15 PM (Merged)
Tiny
NOHJ
  • MEMBER
  • 2 POSTS
Now I have problem with tail light. I have front amber running lights. Do not have tail light. Talked to auto electrician. He said, "The power distribution box in right side engine compartment has possible failure. Find the tail light wire in distribution box. Put battery volts to the wire. If the tail light lights up then that is the problem.". He told me the distribution box is made up of several layers of connections. The connectors between the layers fail. The fuse test will always show volts. I would like to know correct wire color is for my 2000 F-150 xlt 4.2l. I think it is brown white tracer.
Was this
answer
helpful?
Yes
No
Tuesday, July 28th, 2020 AT 12:15 PM (Merged)

Please login or register to post a reply.