4X4 is not kicking in?

Tiny
CLOVER2
  • MEMBER
  • 1998 FORD EXPEDITION
  • V8
  • 4WD
  • AUTOMATIC
  • 234,000 MILES
What can I check to ingage the 4x4. The automatic switch indicates it is in. But does not ingage.

Thanks
Saturday, December 20th, 2008 AT 9:41 AM

1 Reply

Tiny
SQM
  • MECHANIC
  • 6,383 POSTS
Hello,

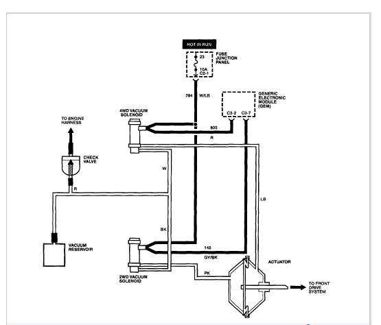
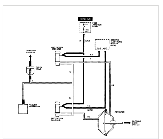
It sounds like you could have an issue with the transfer case actuator, or the shift motor.
Either of these being faulty can prevent the vehicle going in to four wheel drive.

The actuator is a vacuum controlled part and the shift motor is electrical controlled.
Check the vacuum line that goes to the transfer case. Make sure it does not have any crack or break.
Also check the connectors for the shift motor. You could have corrosion build up, which can prevent it from engaging 4x4. Even though your switch indicator shows its connected it will not actually connect.

https://youtu.be/jywt228y8UM

I have attached diagrams for your reference.

Please let me know of any questions.

Thank you.
Was this
answer
helpful?
Yes
No
Tuesday, August 24th, 2021 AT 8:59 AM

Please login or register to post a reply.