Thursday, July 22nd, 2010 AT 9:18 AM
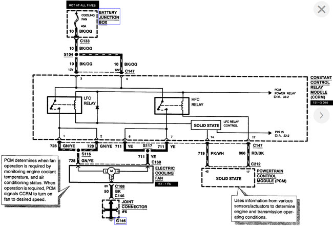
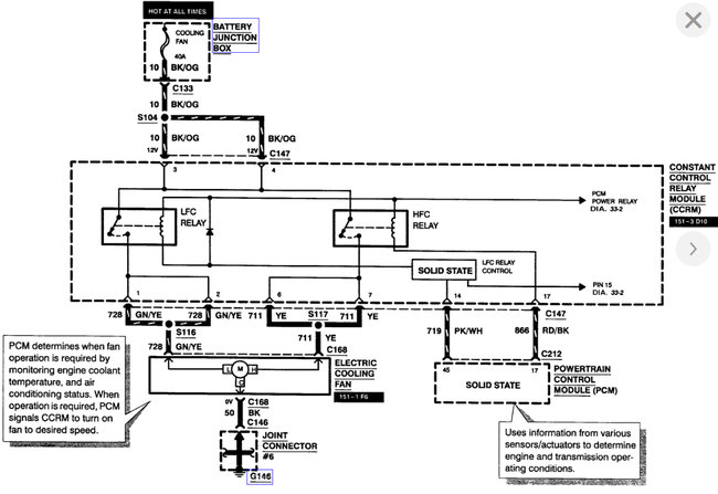
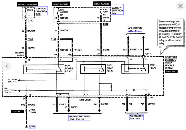
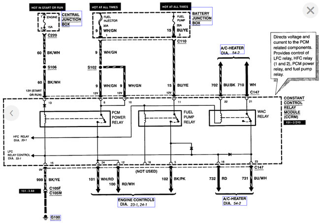
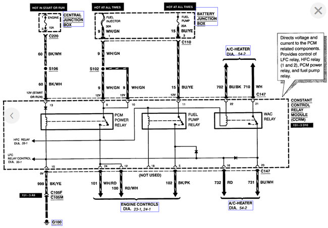
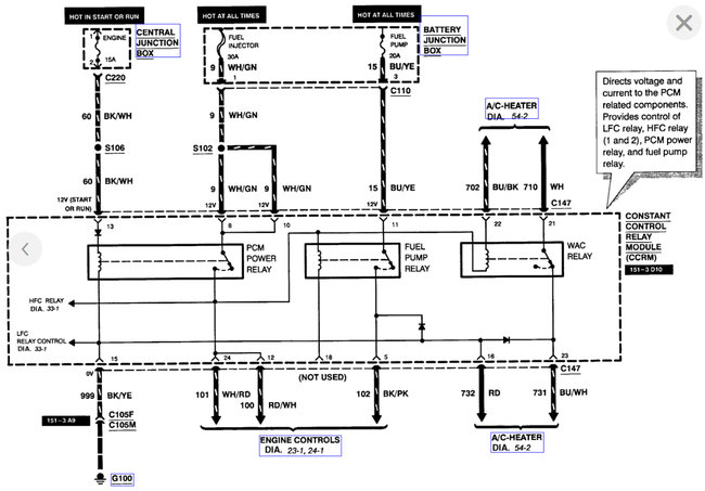
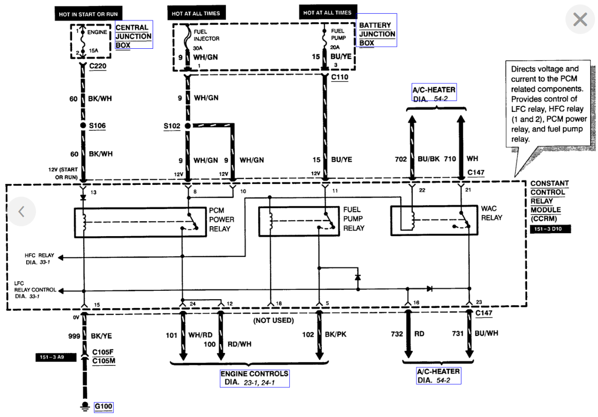
So recently my A/C stopped working. I had read on some forums that the CCRM was often the cause of this problem in these cars. Sure enough I removed the CCRM tested it and found out that that was the problem. While being careless and not paying attention I bumped my probes which were connected to the CCRM to the battery terminal (The CCRM was connected to the car at this time). Then the car would not start. I knew I had to replace the CCRM anyways so I just went and got one and replaced it. The problem is my car still will not start and when the key is in the run position the cooling fan runs constantly regardless of whether I have it turned on. Someone had told me that by shorting that CCRM I could have surged and burnt up the fuel pump. Please help with engine diagnostic and cooling fan problem







