Saturday, October 1st, 2016 AT 2:00 AM
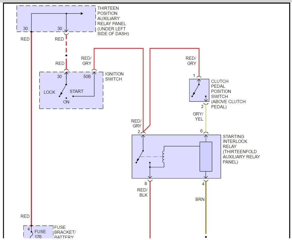
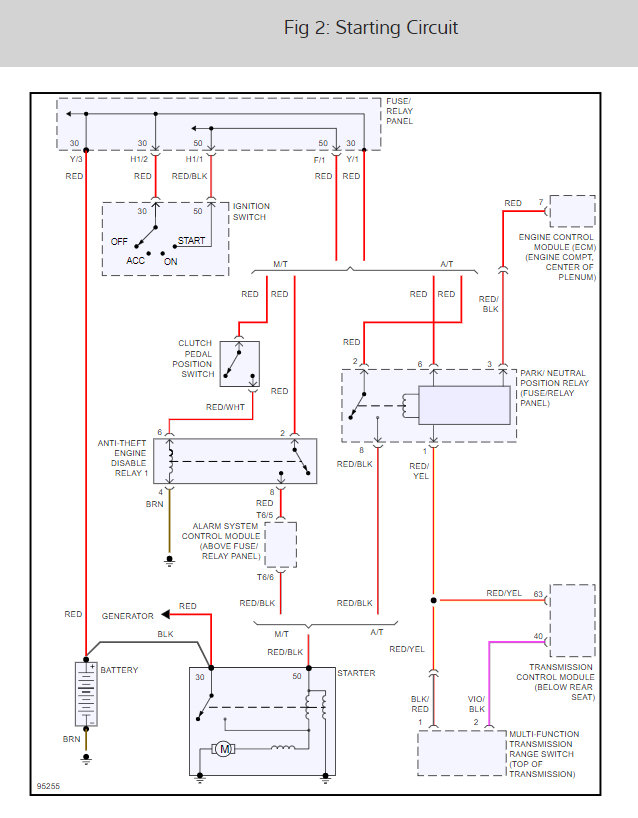
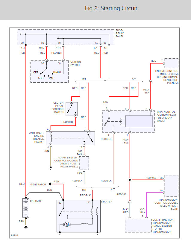
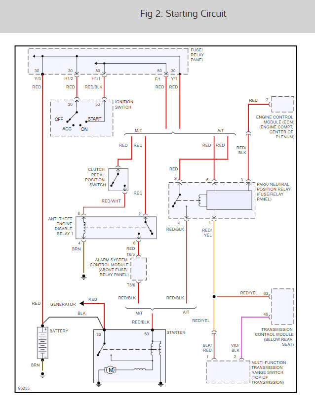
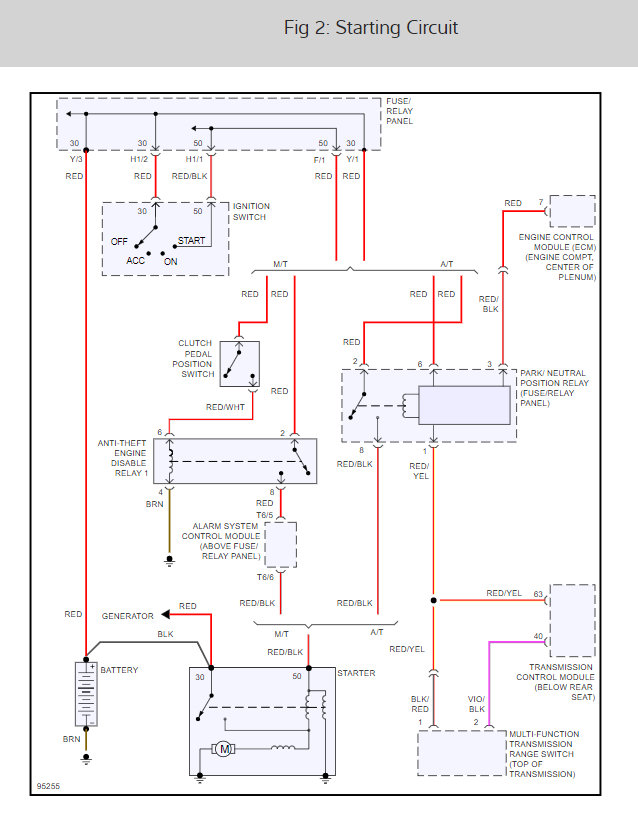
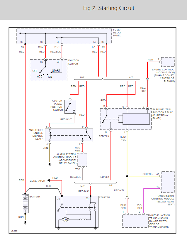
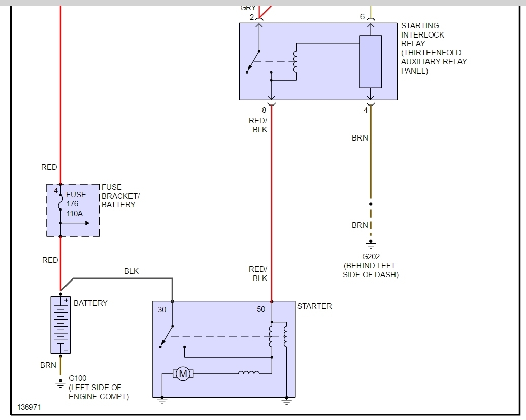
Engine starts fine when cold but after a journey, it wont crank or start until the engine cools right down. When turning the ignition the radio and fans come on, but it does not turn over and no lights come on the ignition (except time and mileage). Have had battery, starter motor and alternator all checked and they are fine. Also ran a diagnostics check which did not show up any problems. Can anyone help please? Thanks!





