Will not start after battery cable that goes to the fuse box touched another piece of metal

Tiny
DLKS77
  • MEMBER
  • 1997 PONTIAC GRAND PRIX
  • 3.8L
  • 6 CYL
  • 2WD
  • AUTOMATIC
  • 144,000 MILES
The battery cable that goes to the fuse box accidentally touched another piece of metal and I saw a spark. After this the car is trying to turn over and won’t start. I noticed the fuel pump does not make a prime noise. I replaced the fuel pump fuse, rely, wires from the fuel pump that connect to the gas tank and fuel pump. And no prime noise. I replaced the fuse box and no priming. Is it possible the battery cable got fried? If the battery cable was replaced would that get the car going? I do get electric on everything else like windows and locks. I really your help.
Friday, April 17th, 2020 AT 8:39 PM

3 Replies

Tiny
ASEMASTER6371
  • MECHANIC
  • 52,796 POSTS
Good morning,

When you turn the key to the on position, does the check engine light come on?

Can you communicate with the ECM? There is a good chance that the voltage surge from the short damaged the ECM.

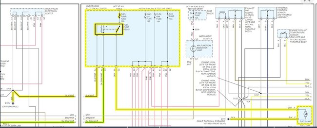
I attached a wiring diagram of the 2 powers required for the ECM. Check them for a test light or voltmeter.

https://www.2carpros.com/articles/how-to-check-wiring

Roy
Was this
answer
helpful?
Yes
No
Saturday, April 18th, 2020 AT 5:28 AM
Tiny
DLKS77
  • MEMBER
  • 4 POSTS
The check engine is on. I tested it and get P1406. Would a dirty/fried EGR valve not prime the fuel pump? I also had another ECM and it also recognized the car. It provided the same code. I noticed the fuel rail pressure sensor did not shoot out any gas when I took the cover off and pressed on the inside pin. Would an old/fried pressure sensor stop it from priming? Would a probe clip be needed to test the ECM wires with the multi meter? I thank you very much.
Was this
answer
helpful?
Yes
No
Monday, April 20th, 2020 AT 2:51 PM
Tiny
ASEMASTER6371
  • MECHANIC
  • 52,796 POSTS
Okay, good.

The 1406 is for the EGR valve. It has no connection to the fuel pump.

Toy may have a bad fuel pump. You need to do a pressure test to see what pressure the pump is sending.

https://www.2carpros.com/articles/how-to-replace-an-electric-fuel-pump

I attached a wiring diagram for you of the system. You will need a test light or voltmeter to do some testing.

https://www.2carpros.com/articles/how-to-check-wiring

https://www.2carpros.com/articles/how-to-check-an-electrical-relay-and-wiring-control-circuit

Roy

Circuit Description

The PCM monitors the EGR valve pintle position input to ensure that the valve responds properly to commands from the PCM and to detect a malfunction if the pintle position sensor and control circuits are open or shorted. if the PCM detects a pintle position signal voltage outside the normal range of the pintle position sensor, or a signal voltage that is not within a tolerance considered acceptable for proper EGR system operation, the PCM will set DTC P1406.

Conditions for Setting the DTC

Ignition 1 voltage is greater than 10 volts.

EGR Feedback is less than 0.14 volt at any time.

OR

VIN 1 - EGR Feedback is 0.4 volt greater or less than the EGR Closed Valve Pintle Position when the Desired EGR Position is commanded to 0%.

VIN K - EGR Feedback is 0.2 volt greater or less than the EGR Closed Valve Pintle Position when the Desired EGR Position is commanded to 0%.

OR

Actual EGR Position is 30% greater or less than the Desired EGR Position.

Any of the above conditions are present for longer than 20 seconds.

Action Taken When the DTC Sets

The PCM will illuminate the Malfunction Indicator Lamp (MIL) during the second consecutive trip in which the diagnostic test has been run and failed.

The PCM will store conditions which were present when the DTC set as Freeze Frame and Fail Records data.

Conditions for Clearing the MIL/DTC

The PCM will turn the MIL OFF during the third consecutive trip in which the diagnostic has been run and passed.

The history DTC will clear after 40 consecutive warm-up cycles have occurred without a malfunction.

The DTC can be cleared by using the scan tool Clear Info function or by disconnecting the PCM battery feed.

Diagnostic Aids

Check for the following conditions:

Open EGR ignition filter circuit.
An open in the EGR ignition filter circuit will cause EGR Position Error to vary erratically while the EGR valve is operating. With the ignition ON, a test light should illuminate when connected between ground and the EGR ignition filter circuit at the PCM connector. If not, locate and repair the open in the EGR ignition filter circuit.

Excessive deposits on EGR valve pintle or seat.
Remove the EGR valve and check for deposits that may interfere with the EGR valve pintle extending completely or cause the pintle to stick.

Poor connection or damaged harness. Inspect the wiring harness for damage. If the harness appears to be OK, observe the Actual EGR position display on the scan tool while moving connectors and wiring harnesses related to the EGR valve. A change in the display will indicate the location of the malfunction.

Reviewing the Fail Records vehicle mileage since the diagnostic test last failed may help determine how often the condition that caused the DTC to be set.

Test Description

Number(s) below refer to the step number(s) on the Diagnostic Table:

2. Verifies that the malfunction is present.

4. The PCM contains a recirculation diode which filters the EGR ignition feed for the EGR valve. The recirculation diode is connected to the ignition filter (EGR ignition feed) circuit. If the ignition filter circuit is open, EGR actual position may be erratic when compared to EGR desired position. An open in the EGR ignition filter circuit will cause DTC P1406 to be set after an extended period of time.

5. If DTC P1406 will only set under certain conditions, the malfunction may be intermittent; refer to DTC P1406 Diagnostic Aids. If an intermittent wiring problem is not present, check for a poor connection at the PCM or the EGR valve. If the connections are OK and DTC P1406 continues to set, replace the EGR valve. Refer to EGR Valve.

32. This vehicle is equipped with a PCM which utilizes an Electrically Erasable Programmable Read Only Memory (EEPROM). When the PCM is being replaced, the new PCM must be programmed.

Was this
answer
helpful?
Yes
No
Monday, April 20th, 2020 AT 3:50 PM

Please login or register to post a reply.