The front finish panel that controls the A/C radio etc, has not power to the A/C?

Tiny
JANEKPL22
  • MEMBER
  • 2016 FORD EXPLORER
  • 3.5L
  • V6
  • TURBO
  • 4WD
  • AUTOMATIC
  • 88,000 MILES
The front finish panel that controls the A/C radio and the likes has no power to the Portion that controls the A/C.
Friday, August 11th, 2023 AT 11:03 AM

1 Reply

Tiny
KEN L
  • MASTER CERTIFIED MECHANIC
  • 55,535 POSTS
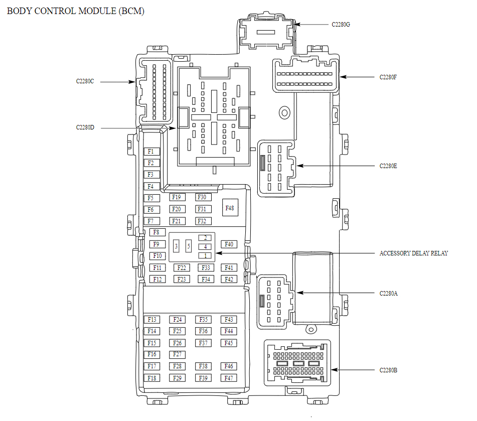
The first thing we need to do is check the fuses, here is a guide that can help and the fuse panel locations:

https://www.2carpros.com/articles/how-to-check-a-car-fuse

If the fuses are okay it sounds like the BCM when out but to be sure let's do a CAN scan, you can get a CAN scanner (Controller Area Network) which will work on most cars from Amazon.

Here is a video to show you how:

https://youtu.be/u-4syLc-ifQ

Here is how to change the BCM out in case you need it, you can get a preprogrammed unit by searching Google or Ebay. Check out the images (below). Please let us know what happens.
Was this
answer
helpful?
Yes
No
Saturday, August 12th, 2023 AT 10:21 AM

Please login or register to post a reply.