Diagnosing wrong electrical wiring?

Tiny
MAMIRORO SMITH
  • MEMBER
  • 2002 FORD FOCUS
  • 2.0L
  • 4 CYL
  • 2WD
  • AUTOMATIC
  • 100,000 MILES
Good day, A mechanic tried to resolve a battery draining problem but all I could see now. It seems he has created more problems because I see different wires join together and the fan relay is laid outside BJB. I can see a green/red wire exposed it is not connected to a connector. The green/red wire is joined to a blue and a black wire. I don't know if he is right, and I am wrong.
Friday, December 23rd, 2022 AT 12:00 PM

18 Replies

Tiny
JACOBANDNICKOLAS
  • MECHANIC
  • 110,194 POSTS
Hi,

That doesn't sound right. Is it possible for you to send a few pictures so I can see what was done? I have wiring schematics to review, but I don't even know what circuit to start with.

Also, I need to know the 8th digit of your vehicle's VIN number. There were two different 2.0L engines used. I want to make sure I'm looking at the correct one.

One last thing. If you have a test lamp or multimeter, check the wire that isn't connected to anything and see if there is power to it.

Let me know.

Joe
Was this
answer
helpful?
Yes
No
Friday, December 23rd, 2022 AT 5:10 PM
Tiny
MAMIRORO SMITH
  • MEMBER
  • 83 POSTS
Good morning, the 8th digit is P. I think the problem of the car started when the horn stopped working. I told the mechanic to replace it. I think the one that came with the car is one, but he replaced it with two. He used one power wire for the two horns and cut off the black wire (ground). The next mechanic who tried to resolve that issue is the one that made this connection. The green/red wire goes into the yellow relay. He joined a black/green wire from the 14k733 harness to green/red wire from the relay. It is the green/red wire that is not attached to any connector. It is left exposed. The image of how the BJB looks like now is added. No further tests have been done by any other mechanic as I try to gain some knowledge first. Thanks
Was this
answer
helpful?
Yes
No
Saturday, December 24th, 2022 AT 12:04 AM
Tiny
MAMIRORO SMITH
  • MEMBER
  • 83 POSTS
This is the wire from the harness 14k733 and connector. The other one is the wires and connectors to the fans. I can see a wire missing or is this how it supposed to be? Thanks
Was this
answer
helpful?
Yes
No
Saturday, December 24th, 2022 AT 12:27 AM
Tiny
JACOBANDNICKOLAS
  • MECHANIC
  • 110,194 POSTS
Hi,

I'm not sure where to start. This couldn't be a more simple circuit but nothing is matching up with my schematic which is based on your VIN code.

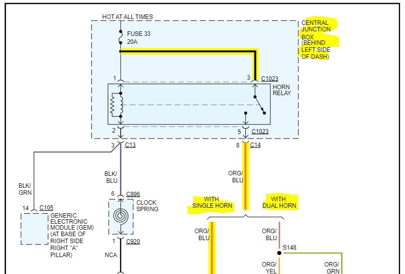
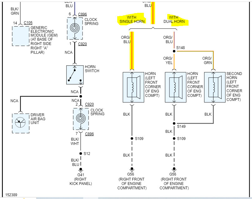
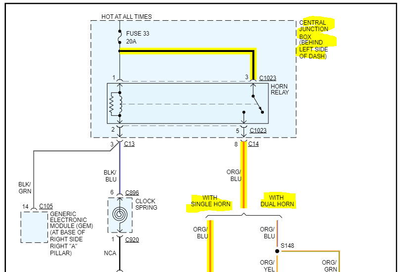
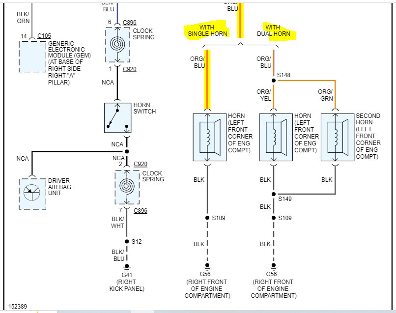
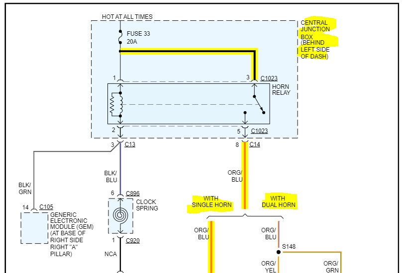
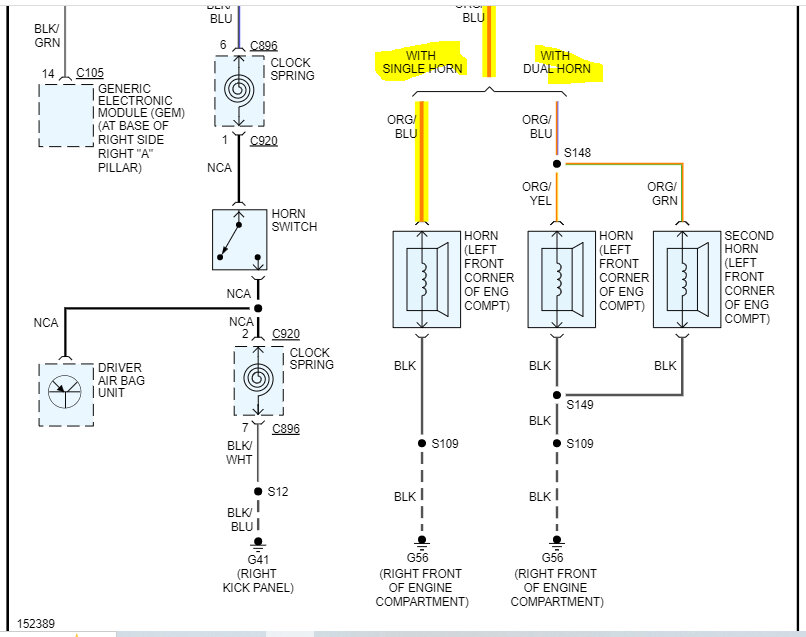
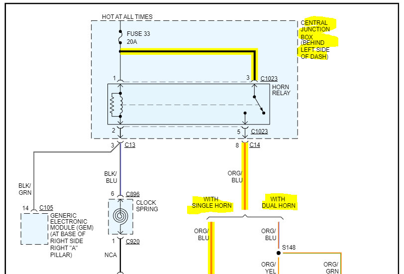
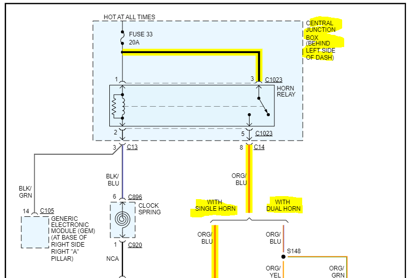
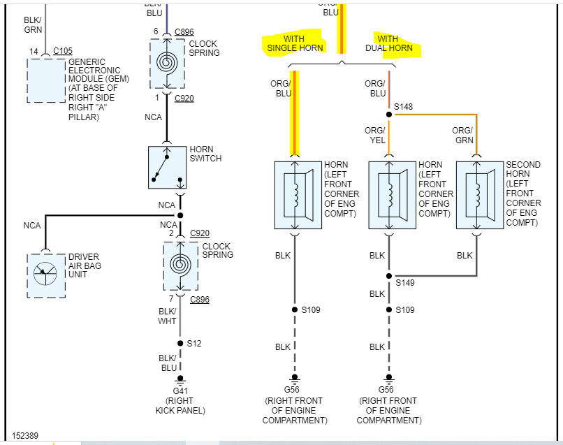
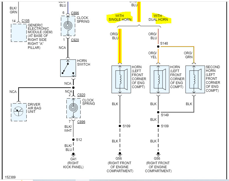
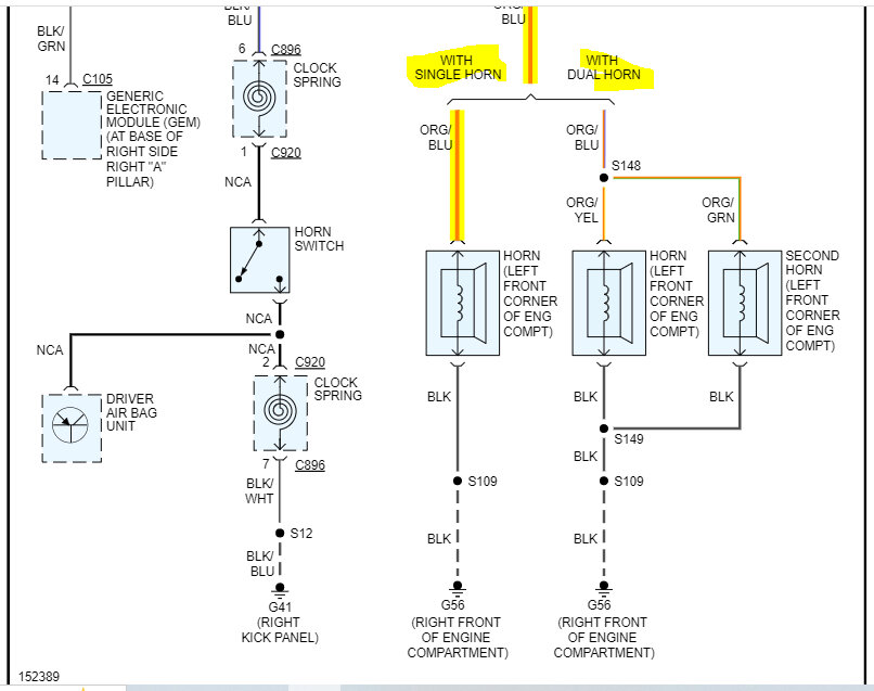
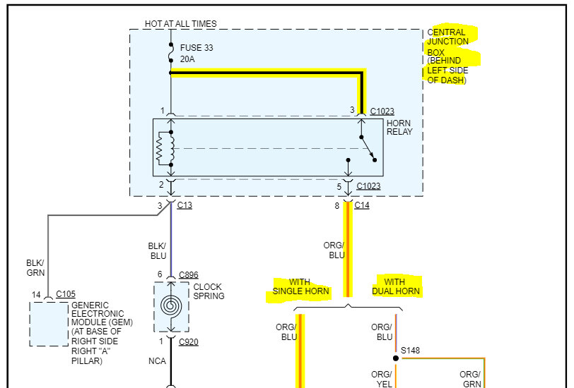
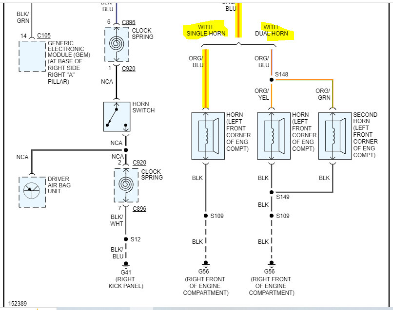
We need to confirm a few things. First, the vehicle may have come with one horn or two. However, the power supply stays the same. The only difference is with two horns, there is a splice from the power supply which branches to two horns.

I attached the schematic below for you as a reference.

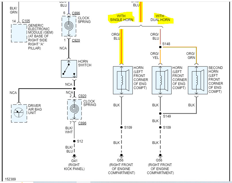
From the horn relay, the power supply should be via an orange wire with a blue tracer. If you have only one horn, power from that wire goes directly to the horn. At the horn connector, there is a black wire that should run to ground at the right front of the engine compartment.

If you have two horns, power is still provided via the orange wire with a blue tracer. However, there is a splice into an orange wire with a yellow tracer. The orange/yellow wires go to the two horns. Again, the black wires splice together and go to ground.

The reason I'm confused is you didn't mention any of the wire colors I mentioned. If you were to clean the wires, can you tell if what I mentioned is present? I'm not sure why, but if appears different wiring was spliced in place of the original wiring and then insulated with electrical tape. When you join wires together, they need to be soldered and heat shrink needs to be placed over the connection for insulation. You can't twist them together and tape them. The connection will eventually fail.

Let me know about the wire colors, and hang in there. We can get it working. I could walk you through doing it and you will do a 100 times better job. It would just require a few tools, a solder gun, and heat shrink. Also, if you have a test light, see if there is power to any of the wires at the horns when a helper presses the horn button.

Take care and if I don't hear from you, have a great Christmas.

Joe

See pics below.
Was this
answer
helpful?
Yes
No
+1
Saturday, December 24th, 2022 AT 12:35 PM
Tiny
MAMIRORO SMITH
  • MEMBER
  • 83 POSTS
Greetings. I am very happy about the response. This is the VIN 1fafp33p32w318992. The color of the wire to the horn is a match, dirt blurred the image. I can't obtain a clearer view at the moment. I can also affirm it is one horn that came with the car, but he replaced it with two, maybe that was what was available then. He created that splice to share power to both. The physics I can't figure out is that, will this not lead to excess power consumption. Another responsible factor is the ground wire he severed. When I checked the factory wiring diagrams which I bought recently, the horn, fan and headlamps share the same ground G56. That was what raised my suspicions as this connection is the possible cause of the power draining of the battery. The whole scenario actually panned out this way. The power steering pressure switch was leaking the fluid away. We couldn't find an immediate replacement. They blasted it to seal it off. This led to the quick damage of the power steering as the pulley is shattered into pieces. The mechanic was paid to replace it. He replaced only the pulley. In no distant time, the pulley started leaking fluid onto the alternator. The alternator indicator was showing in the instrument panel. I woke one morning to meet a dead battery. The battery was replaced with a new one. Then the oil pressure light started showing on the instrument panel too. Both the alternator and oil pump were replaced. After that the two indicators continue to flicker. Then the headlamps went off. Then the radiator fan stopped working. It is at this point the second mechanic made those relays connections. I just discovered another relay that is also laid outside BJB. I attached the image. I have difficulty translating the schematic to real life interpretation. I strongly believe the problem lies with the ground G56 and these relays wiring. The main concern is how can these relays wiring be restored to optimum functioning. Thanks very much for the assistance and support. Every contribution is well appreciated. Thanks, and merry Christmas to you.
Was this
answer
helpful?
Yes
No
Saturday, December 24th, 2022 AT 3:03 PM
Tiny
JACOBANDNICKOLAS
  • MECHANIC
  • 110,194 POSTS
Hi,

Looking at the pic, it is difficult to determine what has been done. Also, the idea of the G52 causing issues with other components wouldn't be due to the removal of the ground from the horn. G52 simply indicates a location. There will likely be more than one ground wire present.

If I had the vehicle in my shop, the first thing I would do is remove everything that has been done to date. Starting from the relay out (orange/blue wire), I would run a new wire from there. If you want only one horn, the new wire would run directly to the horn, Then, I would likely add a new ground wire to complete the circuit. If I wanted two horns to work, you simply need to use a jumper wire to connect both. The power supply wire won't change, so there shouldn't be a concern. It appears the same gauge wire was used for both systems.

Not being there makes it difficult for me. I hope you understand. I know how it should work, but I truly don't know what has been done. I see wires, tape, wire colors that shouldn't be there, and so on.

Let me know if you have additional questions or if I can help in any way.

Take care,

Joe
Was this
answer
helpful?
Yes
No
Saturday, December 24th, 2022 AT 5:03 PM
Tiny
MAMIRORO SMITH
  • MEMBER
  • 83 POSTS
Good day, further observation revealed the purple relay has this part number V23134-K55-Ã 370. I assumed it to be the power hold relay. Orange and yellow wire entered its 4 and 5 pin. The red wire that entered is cut off. I think the fan motor relay is the yellow with part number V23134-B52-x127. Orange, yellow, green and brown wire entered its 1, 2, 3and 5 pin. There's a component with 1, 2, 3, 4, 5, 6, 7 pin. Green/red, green/black and black wire entered its 4, 6, and 7 pin. The mechanic connect it between harness 14k733 and the fan relay. I just want to know what supposed to be connected to these relays and which component has this 1, 2, 3, 4, 5, 6 and 7 pin but only three pins are active. The mechanic joined the yellow relay to another black relay through wire. I also do not know which relay is that. Thanks for all you do.
Was this
answer
helpful?
Yes
No
Tuesday, December 27th, 2022 AT 5:25 AM
Tiny
JACOBANDNICKOLAS
  • MECHANIC
  • 110,194 POSTS
Hi,

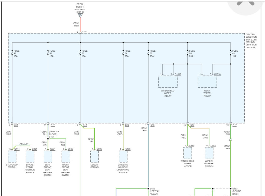
I'm not sure what all you need, but I attached the entire power distribution wiring schematic. It contains fuses, relays, and circuits.

Here is a link you may find helpful:

https://www.2carpros.com/articles/how-to-check-wiring

Let me know if this helps.

Joe
Was this
answer
helpful?
Yes
No
Tuesday, December 27th, 2022 AT 5:16 PM
Tiny
MAMIRORO SMITH
  • MEMBER
  • 83 POSTS
Good day, the engine has been set in its compartment. I figured the wire into the ignition coil capacitor is dislodged. They try to crank the engine. The crankshaft is rotating but no fire to the spark plug. What's the possible cause? In case it is the capacitor, will putting the wire into the hole make it work. How can we test if the capacitor is still in good condition? He also tests the fuse with ohmmeter, there is no light in fuse 1 and 2. I don't know if I am giving good meaning to it if it was conducted in engine switch off or ignition. Thanks very much. Do have a great day!
Was this
answer
helpful?
Yes
No
Friday, December 30th, 2022 AT 11:27 AM
Tiny
JACOBANDNICKOLAS
  • MECHANIC
  • 110,194 POSTS
Hi,

If there is no power to fuses 1 and 2, that can be an issue. However, I am more interested in knowing what you are referring to related to the wire to the capacitor. Is it a green wire with a red tracer? What hole are you referring to? Has the wire been pulled from where it belongs? I ask because that wire is spliced into the coil power supply. Power is direct from the ignition switch.

If you are not getting power to fuse 1, that is powered by the ignition relay. For the relay to actuate, power comes directly from the green wire with a yellow tracer at the ignition switch. Power to the switch is from fuse 8 in the under-hood fuse box. Is that fuse good? Does it have power? See pic 3.

Let me know.

Joe

See pics below.
Was this
answer
helpful?
Yes
No
Friday, December 30th, 2022 AT 10:58 PM
Tiny
MAMIRORO SMITH
  • MEMBER
  • 83 POSTS
Greetings,

According to the mechanic, he inserted the wire (green with blue tracer) into the capacitor f6cf 18801 aa before carrying out the test. He ruled the capacitor out. He also said the fuse are fine. He is insinuating that the transmission range sensor or the crankshaft position sensor could be faulty. He further said the PCM is not receiving signal. My reservation is that what could possibly make these sensors not to work again because the reason I parked the car was the last mechanic did wrong timing. This resulted in a clattering noise coming from the engine. I found out about that, which has just been corrected now with the repairs of the valves. I parked the car in limp mode operation system. Where I parked the car, water rising into the engine when rain falls but after these whole period, when the ignition is turned on, the various indicator lights tuns on the instrument panel. My major concern was to repair the cylinder head and conduct a parasitic draw test or find out what is causing the components to malfunction. After the valve repairs, he is pointing at sensor now, I
was thinking he will be troubleshooting in circuit. Retrospectively, when I woke up to meet a dead battery, the mechanic opened the under-hood fuse box and did some disconnection. The car has a small switch security, which he removed in order to drive the car out that day. From that day, I have to join the switch wires in order for me to switch on the car. I can't remember the fuse he touched. Looking out for possible sources of the problem. He said he wants to get the sensor, I gave him go ahead. My curiosity is still in doubt. I don't know his stance. Every contribution is welcome.
Was this
answer
helpful?
Yes
No
Saturday, December 31st, 2022 AT 7:56 AM
Tiny
JACOBANDNICKOLAS
  • MECHANIC
  • 110,194 POSTS
Hi,

I'm not sure which sensor he is getting. If it is the crankshaft position sensor, that can be tested.

If he has a live data scan tool, he could check for an RPM signal while cranking.

Happy New Year.

Joe
Was this
answer
helpful?
Yes
No
Saturday, December 31st, 2022 AT 3:42 PM
Tiny
MAMIRORO SMITH
  • MEMBER
  • 83 POSTS
Good day, it has been pleasant discussing with you. I changed the hands handling the car just discovered that, it is the timing that is causing the resistance to start. In order to set the timing, do they need to set the TDC without the drive belt? With the engine already in the compartment, you remove the drive belt and set piston 1, 3, 4 and 2. Then install the drive belt. If that is the case, how do you set the ninth teeth to align with the CPS or from what I watched on YouTube, by mere turning the crankshaft, the crankshaft and the cam will align automatically. Does it matter to put the gear in neutral. Does the procedure involves the flywheel. Thanks for your contributions.
Was this
answer
helpful?
Yes
No
Tuesday, January 3rd, 2023 AT 12:32 PM
Tiny
JACOBANDNICKOLAS
  • MECHANIC
  • 110,194 POSTS
Hi,

I would be happy to help with that question, but I need to know if this engine is a single overhead cam or a dual overhead cam engine.

Timing is done differently on both.

Let me know.

Joe
Was this
answer
helpful?
Yes
No
Tuesday, January 3rd, 2023 AT 8:22 PM
Tiny
MAMIRORO SMITH
  • MEMBER
  • 83 POSTS
Thanks for the being there. It is single overhead cam.
Was this
answer
helpful?
Yes
No
Tuesday, January 3rd, 2023 AT 9:10 PM
Tiny
MAMIRORO SMITH
  • MEMBER
  • 83 POSTS
Good morning, after turning the crankshaft, the cam marker is pointing downward instead of the tiny hole in the cylinder head. Assuming every other work that has been done is wrong. How do we start the timing process all over. Can I get a video for this? Thank you very much.
Was this
answer
helpful?
Yes
No
Wednesday, January 4th, 2023 AT 1:40 AM
Tiny
JACOBANDNICKOLAS
  • MECHANIC
  • 110,194 POSTS
Hi,

I'm sorry, but I don't have a video. However, I did attach the directions specific to this vehicle below.

Note that the directions are for the removal and installation of the belt. Proper timing is explained as well.

Let me know if this helps or if you have other questions.

Take care,

Joe

See pics below.
Was this
answer
helpful?
Yes
No
Wednesday, January 4th, 2023 AT 7:12 PM
Tiny
MAMIRORO SMITH
  • MEMBER
  • 83 POSTS
Good day and happy Sunday to you, I have been absent for a while to attend to some other personal issues. At the peak of the job on my car, I am considering the key as the reason th why the car is not starting. I misplaced both keys that came with the car. I ordered a pair on Amazon that has already been cut without a chip. I gave it to a mechanic who programmed it. He brought out the steering column in order to cut it to mechanically match it. After the job, the key couldn't lock the driver's door which was used as standard for the other doors. When I turn on the ignition, the radio lights display and wipers are working. I assumed it was the timing, so I ignored till the timing is corrected. Now, could it be that the PATS is not well programmed and the last mechanic is right that the PCM is not receiving signal. Thanks for your help.
Was this
answer
helpful?
Yes
No
Sunday, February 12th, 2023 AT 9:27 AM

Please login or register to post a reply.