Climate control and odometer center display not working

Tiny
THEROEFAMILY
  • MEMBER
  • 1985 CADILLAC SEVILLE
  • 4.1L
  • V8
  • 2WD
  • 87,133 MILES
I am not sure how or why but the entire upper display is out. I disconnected the battery put it back on still nothing. The A/C is working cause when I undo the battery and put it back on the next time it is started the air is on but It will not turn off. I am completely lost at this point.
Wednesday, July 15th, 2020 AT 9:05 AM

1 Reply

Tiny
ASEMASTER6371
  • MECHANIC
  • 52,796 POSTS
Good afternoon,

This could be one of a couple things.

The Programmer for the A/C is what sends signals to the display unit.

The display it self could also be the issue if it has no power to light up the displays.

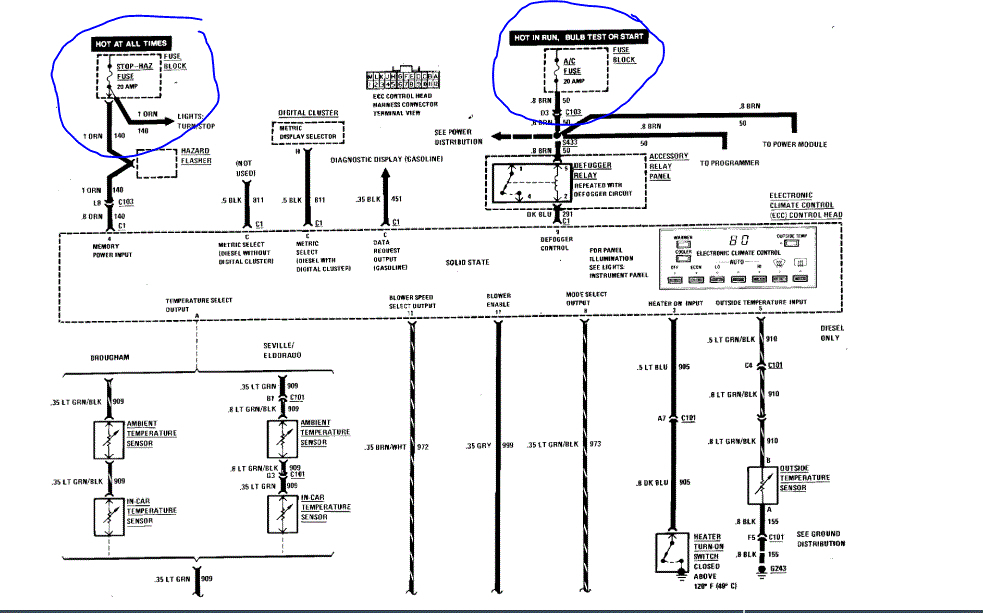
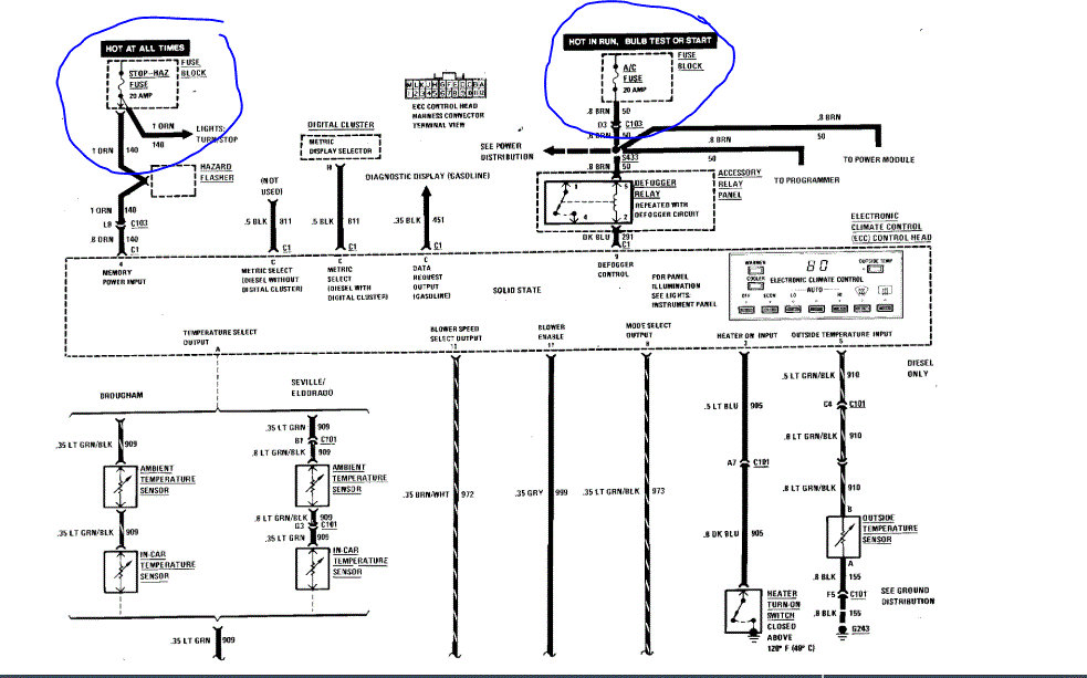
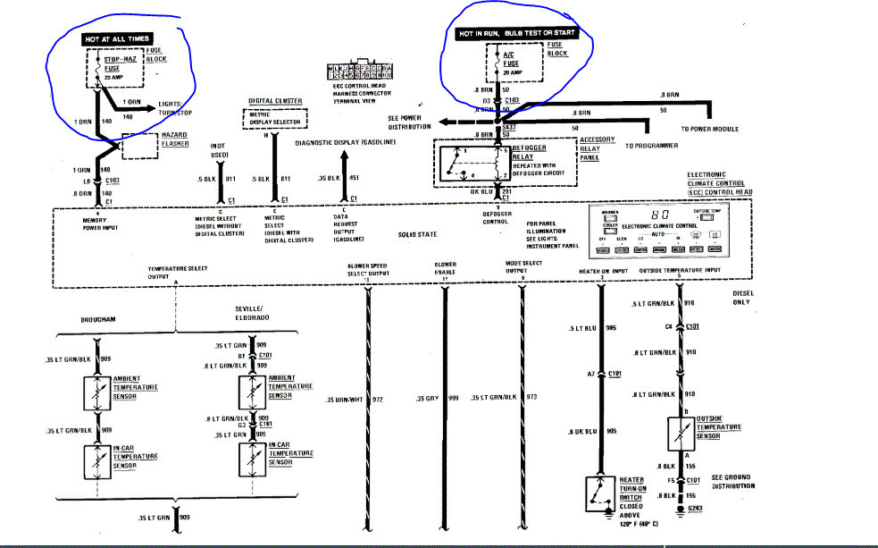
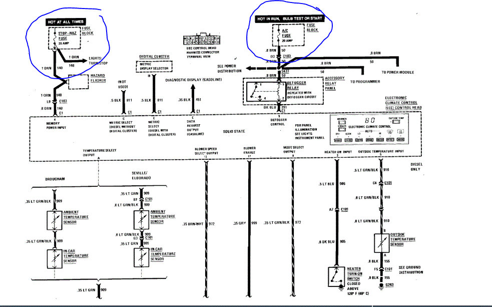
I attached wiring diagrams for you. You need to test the fuses for power first.

https://www.2carpros.com/articles/how-to-check-wiring

https://www.2carpros.com/articles/how-to-check-a-car-fuse

I posted a TSB on this issue below about the programmer or power module.

Roy

BROUGHAM, 1985 ELDORADO, SEVILLE

1. Disconnect battery ground cable.
2. Remove six position weather pack connector, black ground wire, tan wire to blower motor and the screws.
3. Remove power module from evaporator case, being careful not to touch heat sink.
4. Reverse procedure to install.

Bulletin No. T 87-130
File in Group 1
Number 38
Corp. Ref. No 711206
Date July '87
SUBJECT: POWER MODULE REPLACEMENT CHECK

MODELS AFFECTED: 1980-1987 ELDORADOS AND SEVILLES 1981-1987 RWD DE VILLES AND BROUGHAMS 1985-1987 DE VILLES AND FLEETWOODS

Some vehicles may experience one of the following conditions:

Compressor clutch operates in off and/or econ setting
Compressor clutch does not operate
Compressor clutch cycles rapidly
Blower motor does not operate
Blower motor operates in off setting or with key off. NOTE: Low blower operation in the off setting is normal on 1980 Eldorados and Sevilles equipped with ECC
Power module fails repeatedly

The above conditions may be caused by an inoperative power module. Before replacing the power module for the conditions listed above, the blower motor and compressor clutch circuits should be checked using the procedures given below to determine if either may have contributed to the power module failure.

1980-85 Eldorados and Sevilles, 1981-87 RWD De Villes and Broughams

The following procedure should be used before replacing the power module to check the blower motor and compressor clutch circuits on the cars listed above.

To check the compressor clutch and circuit:

1. Disconnect the power module 6-way connector.

2. Jumper 12 volts to circuit 204 (pin C on 1980-81 E and K cars, pin A on all other cars) through a 5 amp in-line fuse. If the fuse does not blow within two minutes, the compressor clutch did not cause the power module failure (proceed to "Check the blower motor circuit").

3. If the 5 amp fuse blows, remove the compressor clutch coil connector and check the clutch diode using the diode check setting on a DVOM. If the diode checks bad, replace the diode.

4. Check voltage to ground and resistance to ground on circuit 204 with the power module and compressor clutch coil disconnected and the ignition in the run position using a DVOM. A voltage reading over .1 volt indicates there is a short to voltage on circuit 204, which should be repaired. If a short to ground is found on circuit 204, this should be repaired. If circuit 204 checks ok, replace the compressor clutch coil.

To check the blower motor circuit:

1. Disconnect the single wire connector (blower motor control circuit 918) from the power module. Select 60 AUTO ECC setting.
2. Connect an ammeter with greater than 25 amp capacity between the single wire connector and ground. This will turn the blower on full and give a blower motor draw reading. If an ammeter with 25 amp capacity is unavailable, substitute a 20 amp inline fuse for the ammeter and use heavy gage jumpers from circuit 918 to the in-line fuse and from the in-line fuse to ground.

3. If an ammeter is used:
The amp draw after one minute (steady-state blower motor draw) should not exceed 20 amps. If blower motor draw exceeds this parameter, it should be replaced. If an in-line fuse is used:
The 20 amp fuse should not blow after five minutes of blower operation. If the fuse blows at any time during the five minute test period, replace the blower motor.

After completing all diagnosis, replace the power module.

1985-87 De Villes and Fleetwoods and 1986-87 Eldorados and Sevilles

The following procedures should be used before replacing the power module to check the blower motor and compressor clutch circuits on the cars listed above.

To check the compressor clutch and circuit:

1. Disconnect the power module 2-way connector.

2. Jumper circuit 204 (pin A of the power module 2-way connector) to ground through a 5 amp in-line fuse. If the fuse does not blow within two minutes, the compressor clutch did not cause the power module failure (proceed to "Check the blower motor circuit").

3. If the 5 amp fuse blows, remove the compressor clutch coil connector and check the clutch diode using the diode check setting on a DVOM. If the diode checks bad, replace the diode.

4. Check voltage to ground and resistance to ground on circuit 204 with the power module and compressor clutch coil disconnected and the ignition in the run position using a DVOM. A voltage reading over .1 volt indicates there is a short to voltage on circuit 204 which should be repaired. If a short to ground is found on circuit 204, this should be repaired. If circuit 204 checks ok, replace the compressor clutch coil.

To check the blower motor circuit:

1. Disconnect 4-way power module connector. Select 60 AUTO ECC setting.

2. Connect an ammeter with greater than 25 amp capacity between the blower feed terminal pin A and a 12 volt source. This will turn the blower on full and give a blower motor draw reading. If an ammeter with 25 amp capacity is unavailable, substitute a 20 amp in-line for the ammeter and use heavy gage jumpers from circuit 65 to the in-line fuse and from the in-line fuse to a 12 volt source.

3. If an ammeter is used:
The amp draw after one minute (steady-state blower motor draw) should not exceed 20 amps. If blower motor draw exceeds this parameter, it should be replaced. If an in-line fuse is used:
The 20 amp fuse should not blow after five minutes of blower operation. If the fuse blows at any time during the five minute test period, replace the blower motor.

After completing all diagnosis, replace the power module.
Note: When checking the blower motor draw if a 25 amp ammeter is not available, a 20 amp fuse may be substituted for the ammeter. The substitution of a 20 amp fuse is preferable to the use of an ammeter with a 100 amp or greater full scale reading. If a 20 amp fuse is substituted for an ammeter in the blower motor draw test, a blown fuse would indicate failure of the test.
Was this
answer
helpful?
Yes
No
Wednesday, July 15th, 2020 AT 10:20 AM

Please login or register to post a reply.