Center dash radio wiring

Tiny
DKLEIN95
  • MEMBER
  • 2003 FORD EXPLORER
  • 1.4L
  • 4 CYL
  • 4WD
  • AUTOMATIC
  • 150,000 MILES
Trying to install aftermarket deck and I cannot find anything to tell me what wires are what coming from the truck. Please help
Friday, May 18th, 2018 AT 2:28 AM

1 Reply

Tiny
CARADIODOC
  • MECHANIC
  • 34,491 POSTS
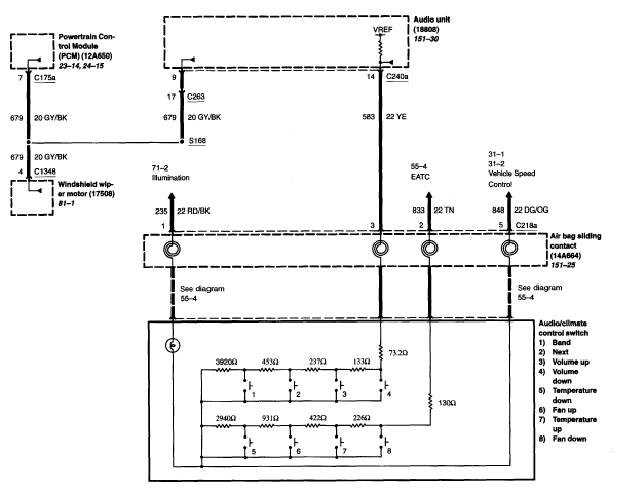
There are multiple versions of original equipment radios, but this will get you started. The first diagram is for the powers and ground. The white/yellow wire has twelve volts all the time. That is the memory twelve volt feed for the station presets and clock. My nifty yellow arrow is pointing to that one. The gray/yellow wire is the switched twelve volts coming from the ignition switch. My gray arrow is pointing to that one. There are three ground wires needed for the original radio, (black arrows), but you only need one of those for your new radio. My choice would be for the black/orange wire because there are fewer splices in it, but the others will work just fine too.

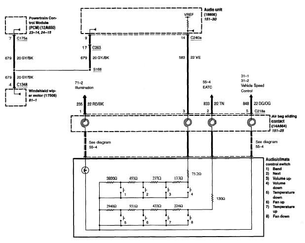
The second diagram shows the basic four speakers with the wire colors listed. If you do not know what the designations stand for, I can interpret them. For example, the left front speaker wires are orange/light green and light blue/white. In your vehicle, the wires do not change color between the radio's plugs and the speakers like they do on some models. That means if you want to take the time, you can remove a speaker to look at the colors of the wires, and you will find the same colors in the dash on the radio's plugs.

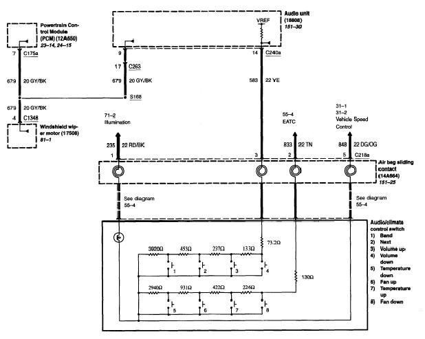
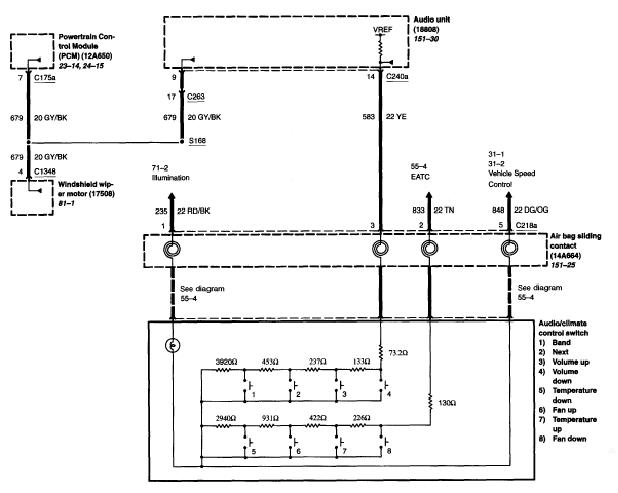
I included the last two diagrams for reference only. The third one shows the steering wheel controls. Those will only work with the original radio as its circuitry is designed to accept the signals from that assembly. There are some aftermarket converters to make the controls work with some radio models, but that is not an area I have ever gotten into.

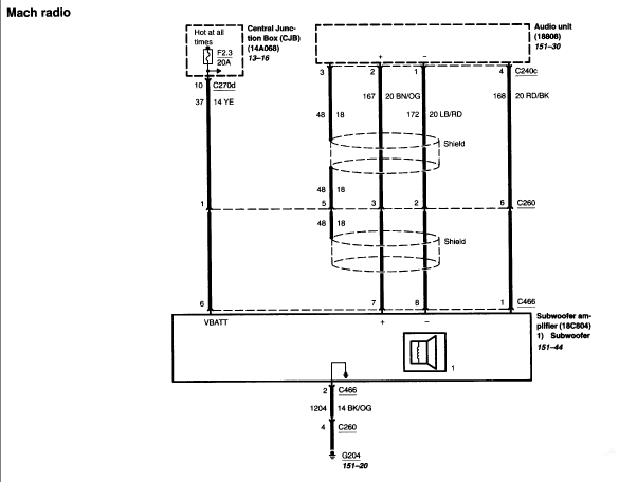
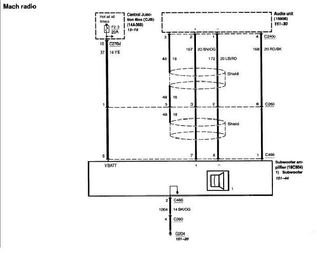
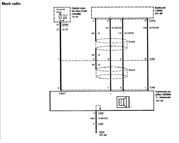
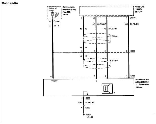
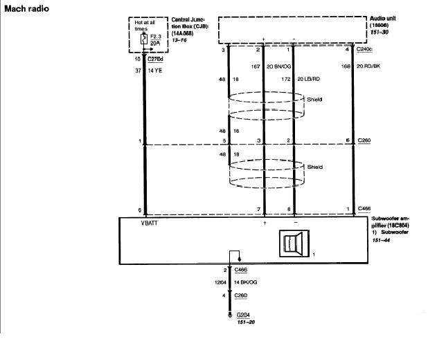
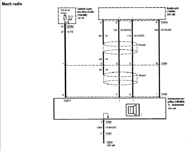
The last diagram shows the optional sub woofer. That also works with the original radio.
Was this
answer
helpful?
Yes
No
Friday, May 18th, 2018 AT 2:31 PM

Please login or register to post a reply.