relay and fuse box location

1987 CADILLAC DEVILLE
201,569 MILES • V8 • FWD • AUTOMATIC
Avatar
KLMYRIC
  • MEMBER
  • 1 POST
how can i tell if my fuel pump is gone bad or if i have a relay problem, where is the relay box located?
Jan 25, 2010 at 10:55 AM
Advertisement
Repair Safety Notice: This information is for general instructional purposes only. Vehicle repair can be dangerous. Verify all information, follow manufacturer service procedures, use proper tools and safety equipment, and consult a qualified repair shop when needed.
Avatar
KASEKENNY
  • AUTOMOTIVE REPAIR CONTRIBUTOR
  • 18,907 POSTS
This could be a relay issue but the best way to check is find out if the fuel pump has power or just remove the relay and jump it to see if the pump comes on.

Here are a couple guides that will show more info on how to do this:

https://www.2carpros.com/articles/how-to-check-an-electrical-relay-and-wiring-control-circuit

https://www.2carpros.com/articles/how-to-check-a-car-fuse

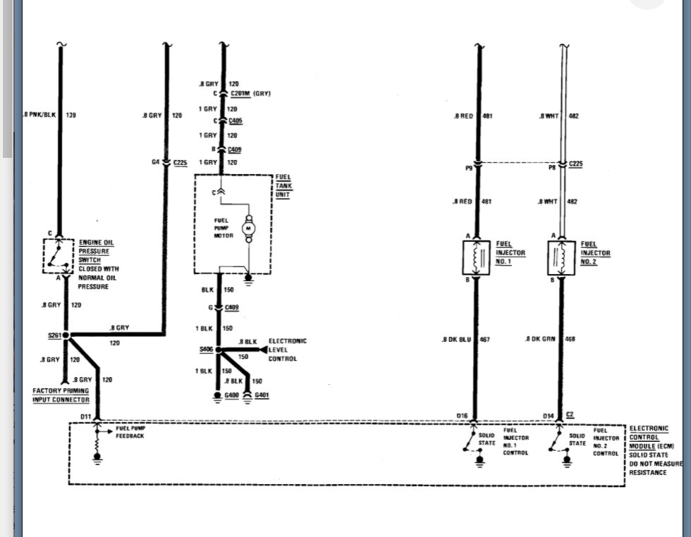
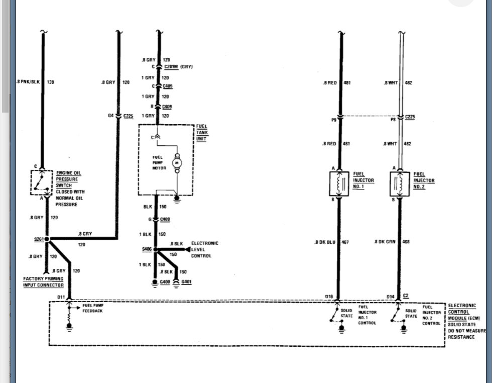
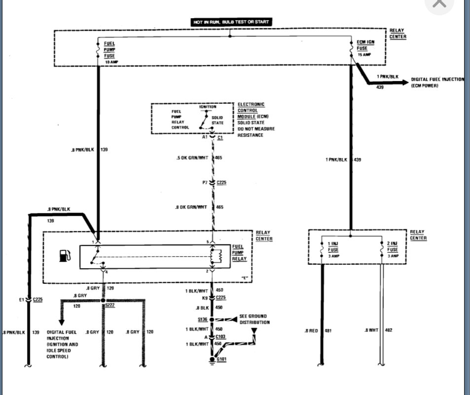
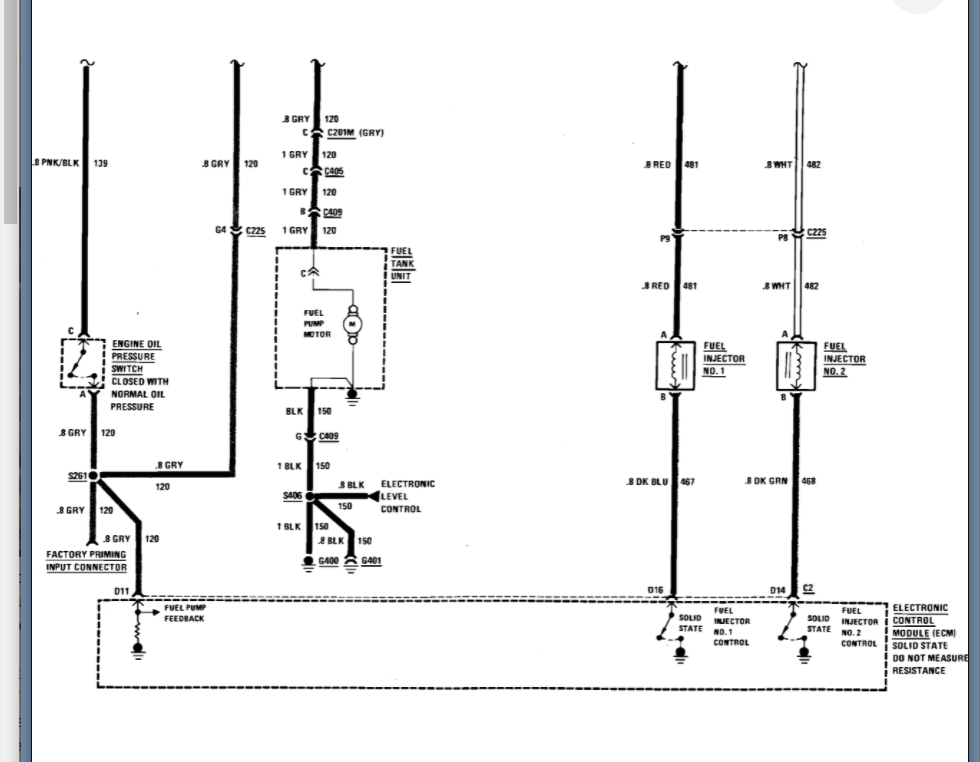
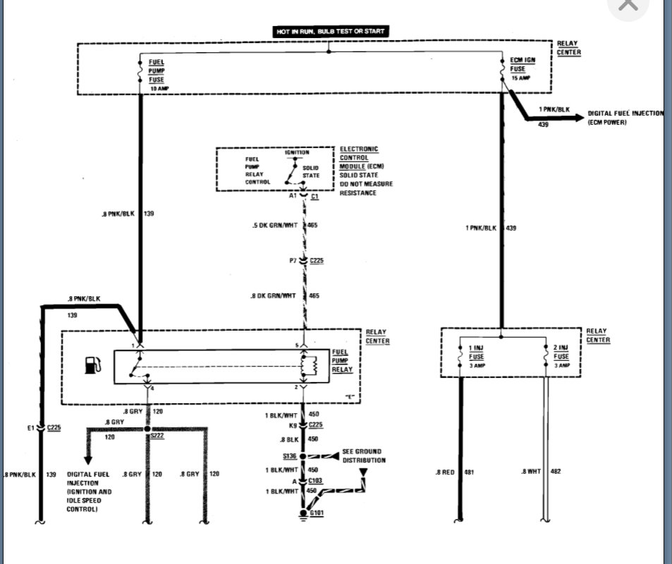
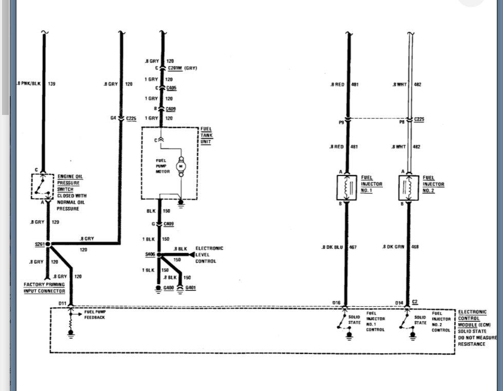
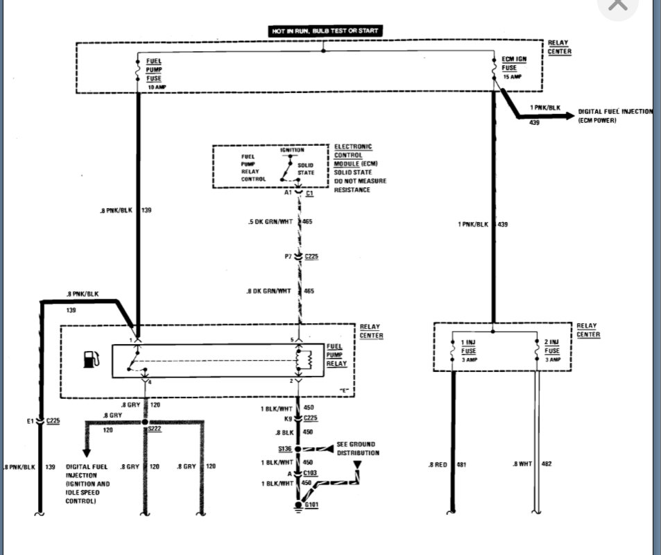
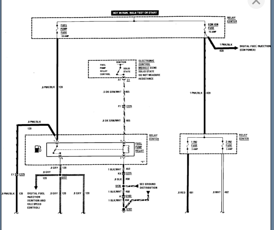
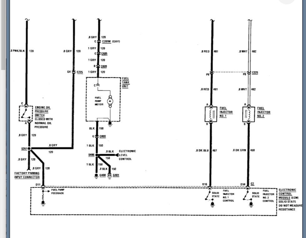
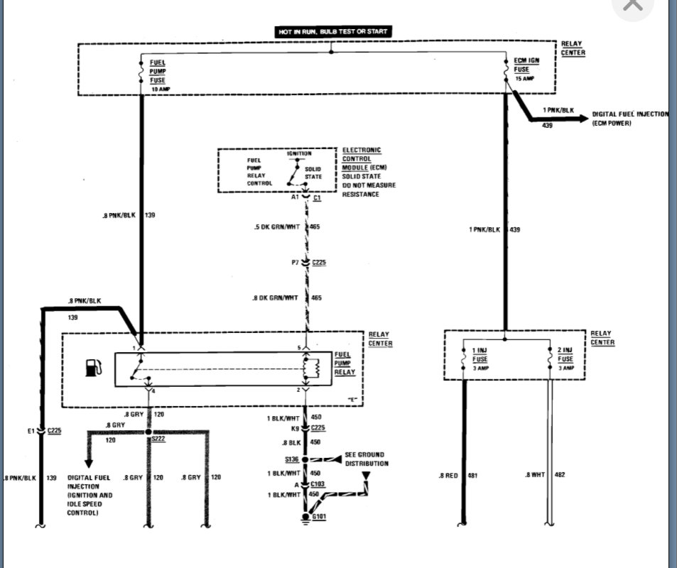
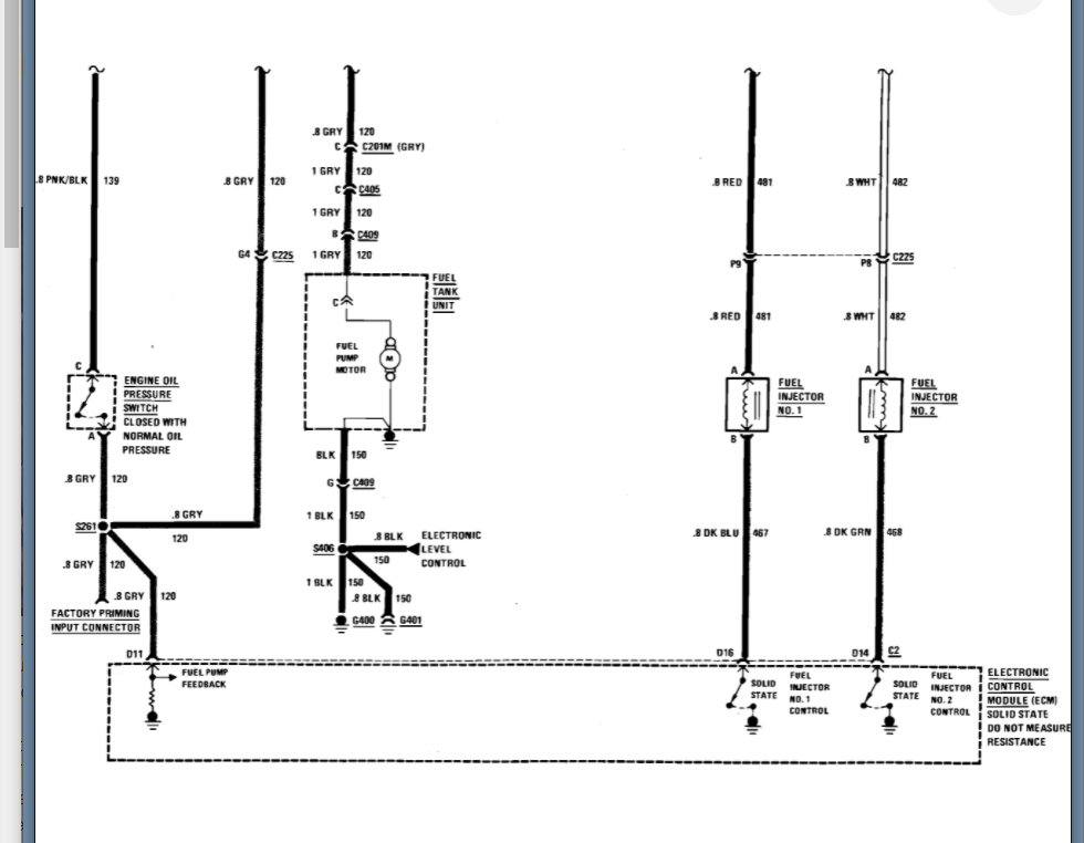
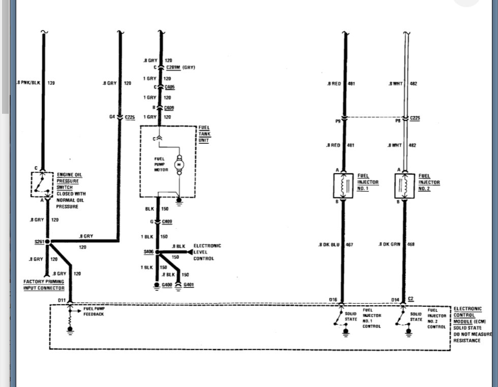
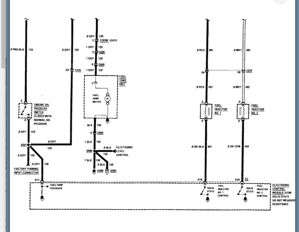
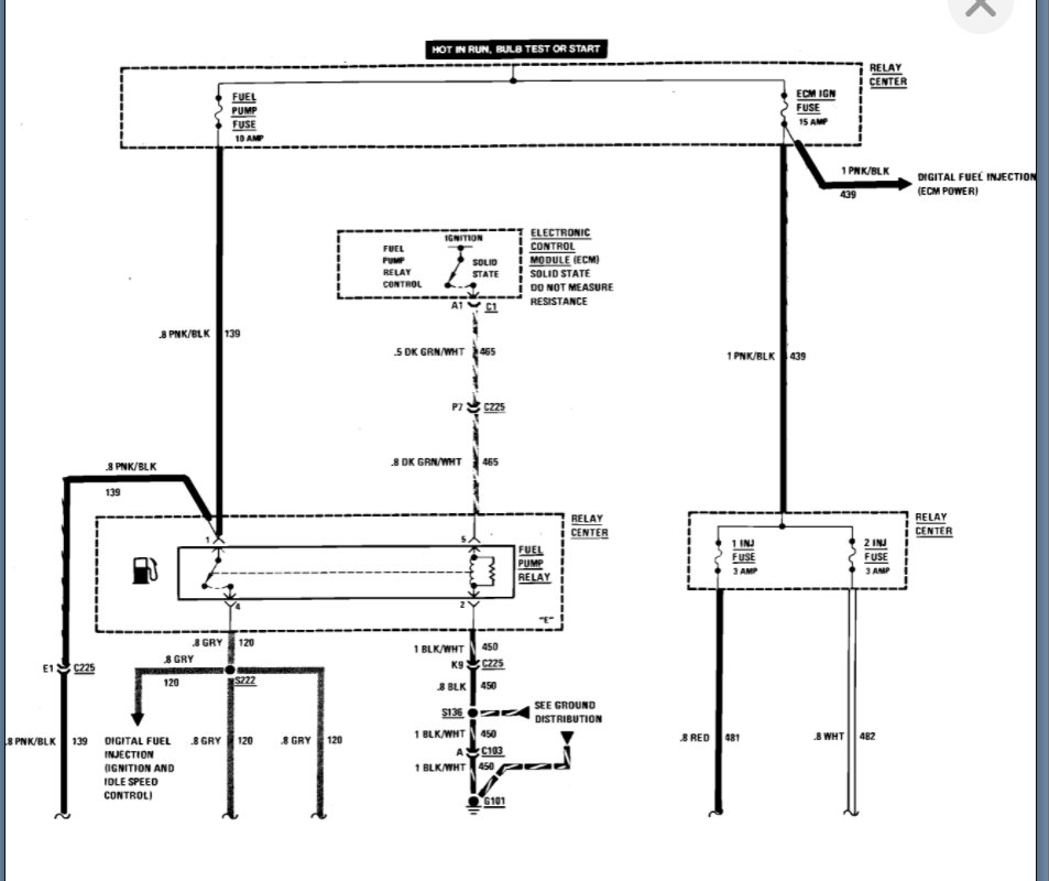
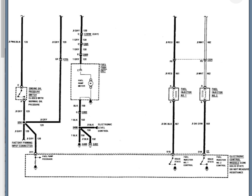
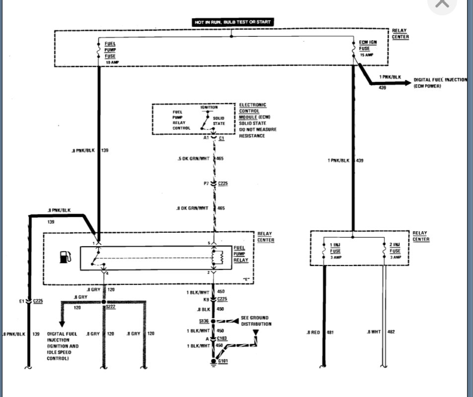
Below is the info from the manual on the location of the relay and fuses. Plus the wiring diagrams that will give more detail on this.

Please let us know if you have other questions. Thanks
Jul 21, 2021 at 5:11 PM
Avatar
DANNY L
  • AUTOMOTIVE REPAIR CONTRIBUTOR
  • 5,648 POSTS
Hello, I'm Danny.

If The relay turns out to not be the problem here are instructions on how to replace the in-tank electric fuel pump which is mounted inside the fuel tank. Here is a tutorial showing how to replace an in-tank electric fuel pump:

https://www.2carpros.com/articles/how-to-replace-an-electric-fuel-pump

I've attached picture steps below on how to remove and replace both the fuel tank and fuel pump on your car. Hope this helps and thanks for using 2CarPros.
Jul 22, 2021 at 6:56 PM
Advertisement