Alternator not charging the battery properly?

Tiny
CHRISTIANDAVIS333
  • MEMBER
  • 1994 CHEVROLET ASTRO
  • 4.3L
  • 6 CYL
  • 2WD
  • AUTOMATIC
  • 200,000 MILES
It's a brand-new alternator and a brand-new battery that were bought together at the same time he alternator isn't charging the battery backup properly when you cut the headlights on or blinker it pulls power and you're getting just barely over the battery reading off of the alternator.
Tuesday, December 12th, 2023 AT 6:10 PM

1 Reply

Tiny
CANNON1349
  • MECHANIC
  • 908 POSTS
Hello, and thanks for your question!

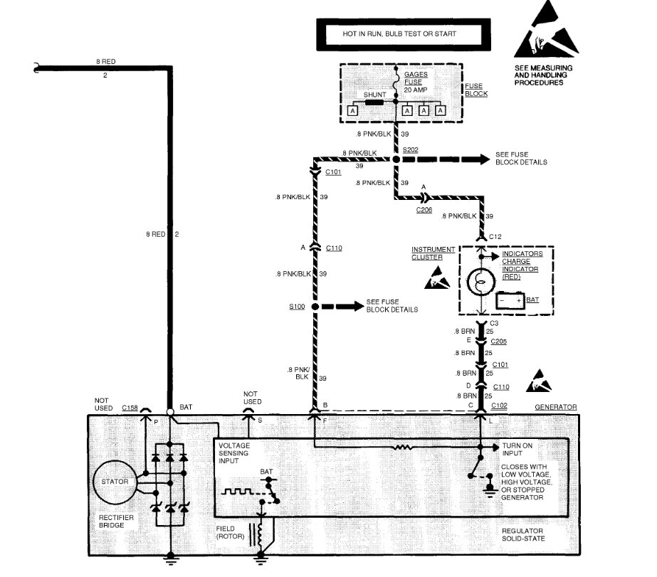
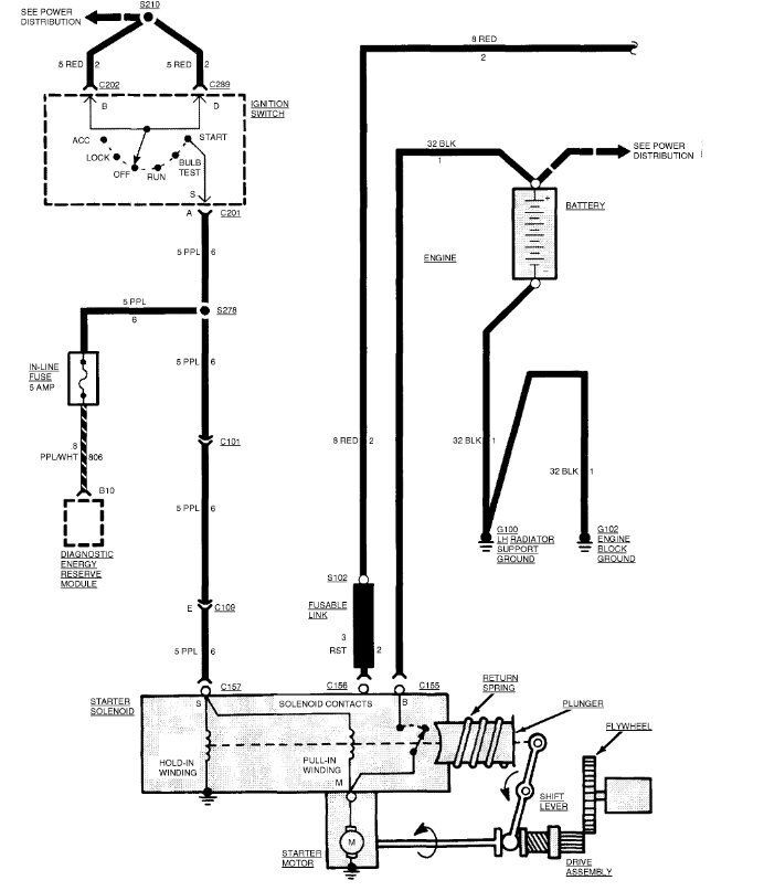
Does the red battery light come on the dash? I ask because there is a circuit just for this mechanism by itself and could also be a clue. In the meantime, you may need to charge the battery prior to 12.6 volts and start the vehicle and read the voltage at the battery, it should be at least 14 volts.

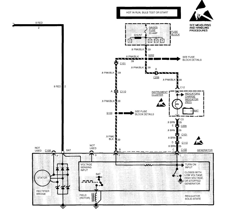
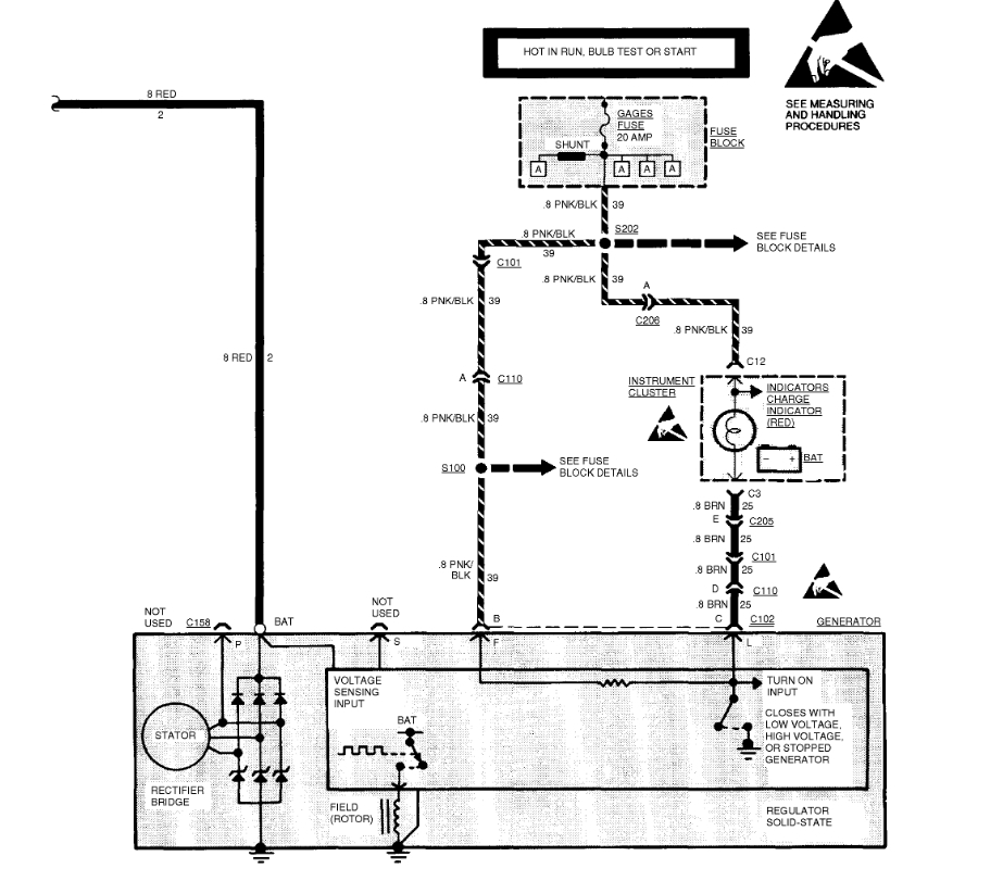
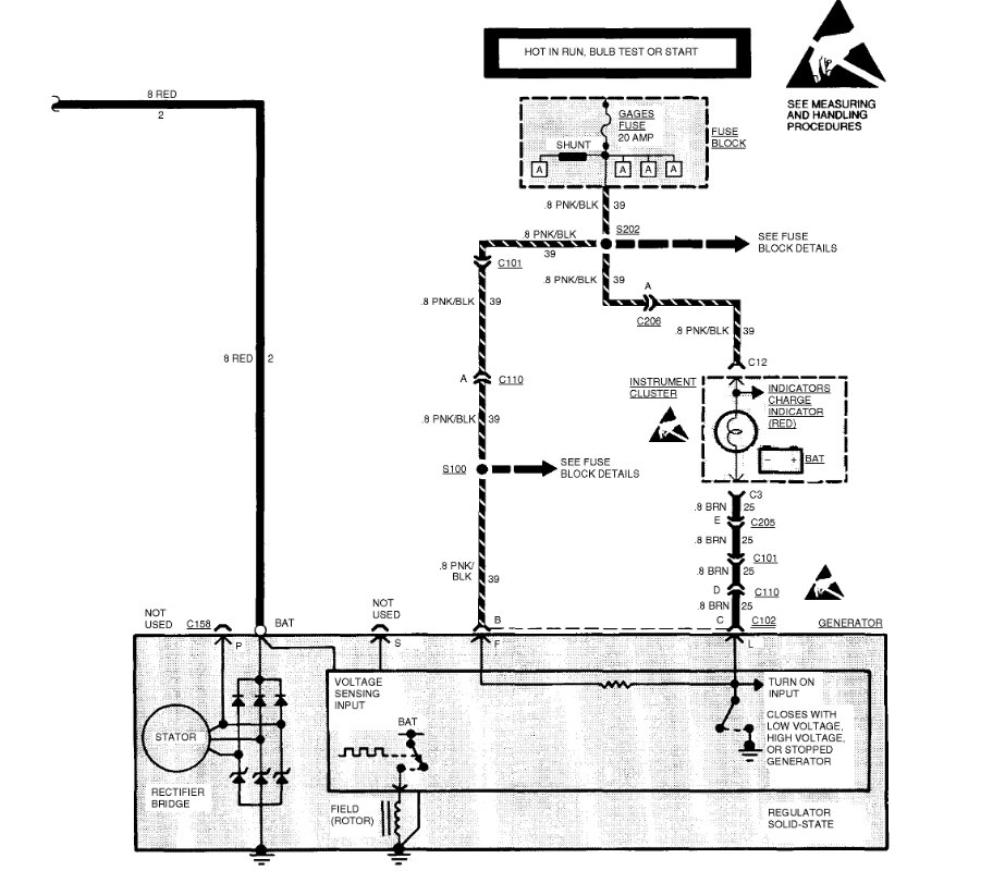
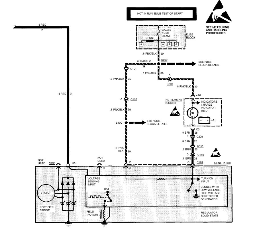
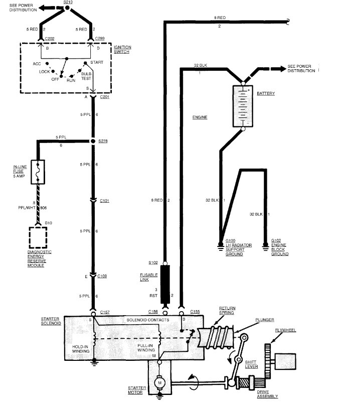
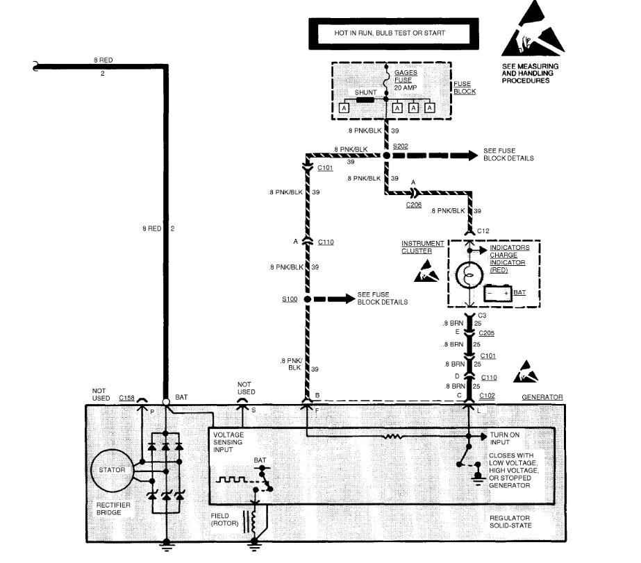
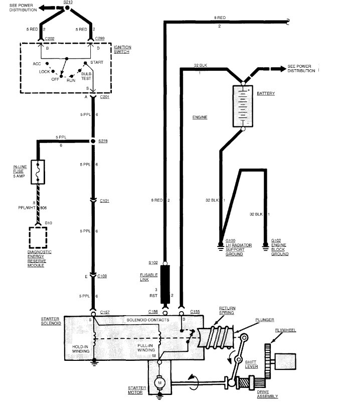
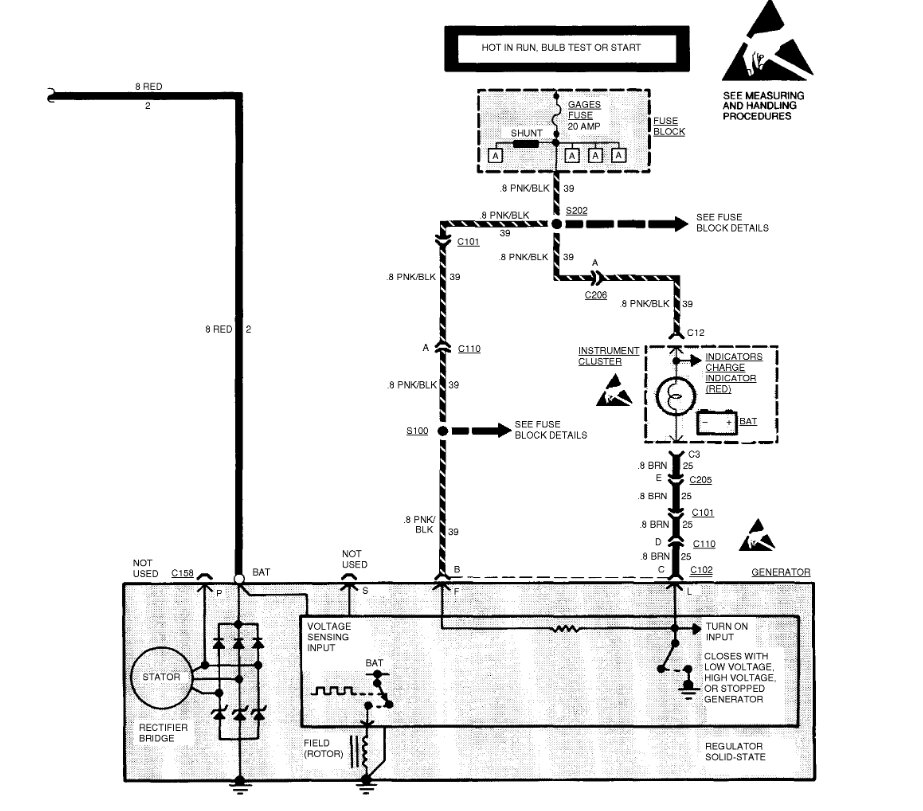
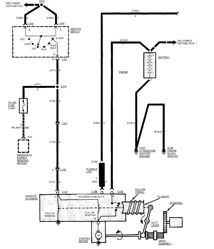
If in fact the battery is being drained while running then the engine is running solely off the battery and not the alternator, or the alternator charging circuit has a short to ground somewhere. I will attach the wiring diagram for the starting / charging system below. Check ground connections at the generator, some of them ground themselves on the case and others on the bracket it is bolted to. But first, I would to know the battery voltage with the engine running.

Please let us know,
William
Was this
answer
helpful?
Yes
No
Tuesday, December 12th, 2023 AT 7:19 PM

Please login or register to post a reply.