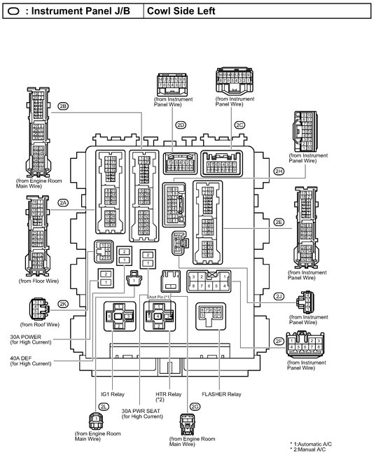
2009 Corolla 1.8L Forums indicate the AC relay will be in the engine fuse box, but it is not there (HTR 50A, M/G CLT).
Where should I look? Thanks
Where should I look? Thanks
May 30, 2019 at 8:51 AM


