AC front unit not blowing

Tiny
ANTHONYR32
  • MEMBER
  • 2016 FORD EXPEDITION
  • 1.0L
  • V6
  • 2WD
  • AUTOMATIC
  • 88,000 MILES
My AC unit is not blowing out the front. However, the back is working fine.
Saturday, May 5th, 2018 AT 11:44 AM

13 Replies

Tiny
ASEMASTER6371
  • MECHANIC
  • 52,796 POSTS
Good afternoon.

It sounds like the blower motor is not working. You need to check for power to the blower motor itself. Use a test light or volt meter.

Procedure for resistor

Removal and Installation

Remove the passenger side lower instrument panel insulator.
Disconnect the ambient lighting electrical connector (if equipped).
Remove the passenger side lower instrument panel insulator pin-type retainers and remove the insulator.
Image
Remove the blower motor resistor.
Disconnect the blower motor resistor electrical connector.
Remove the blower motor resistor screws.
Remove the blower motor resistor.

Blower motor location

Removal

Remove the passenger side lower instrument panel insulator.
Disconnect the ambient lighting electrical connector (if equipped).
Remove the passenger side lower instrument panel insulator pin-type retainers and remove the insulator.
Image
Remove the passenger side lower A-pillar junction box cover.
Image
Remove the blower motor.
Disconnect the blower motor electrical connector.
Remove the blower motor screws and remove the blower motor.

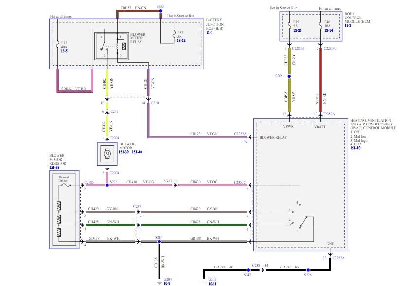
I also attached a wiring diagram for you. Check the fuses listed for the relay for power on both sides

Roy
Was this
answer
helpful?
Yes
No
Saturday, May 5th, 2018 AT 2:00 PM
Tiny
ANTHONYR32
  • MEMBER
  • 7 POSTS
Would it still be the blower motor if it started blowing air again or could it be a bad connection somewhere? It did it twice.
Was this
answer
helpful?
Yes
No
Saturday, May 5th, 2018 AT 2:06 PM
Tiny
ASEMASTER6371
  • MECHANIC
  • 52,796 POSTS
It could be the connector on the motor or the resistor. Try wiggling them and see if the motor comes on.

Roy
Was this
answer
helpful?
Yes
No
+1
Saturday, May 5th, 2018 AT 2:10 PM
Tiny
ANTHONYR32
  • MEMBER
  • 7 POSTS
Okay, will do. Thanks
Was this
answer
helpful?
Yes
No
Saturday, May 5th, 2018 AT 2:11 PM
Tiny
ASEMASTER6371
  • MECHANIC
  • 52,796 POSTS
Keep us updated.

Roy
Was this
answer
helpful?
Yes
No
Saturday, May 5th, 2018 AT 2:13 PM
Tiny
ANTHONYR32
  • MEMBER
  • 7 POSTS
Okay, it kicked on again without moving the wires but the wires coming from the blower got hot after about five minutes. But when I turned the AC off the wires cooled back down. I surely do not need a fire.
Was this
answer
helpful?
Yes
No
Saturday, May 5th, 2018 AT 3:45 PM
Tiny
ASEMASTER6371
  • MECHANIC
  • 52,796 POSTS
It sounds like the blower motor is drawing way too much current. I would replace the blower based on that alone.

Roy
Was this
answer
helpful?
Yes
No
Saturday, May 5th, 2018 AT 3:49 PM
Tiny
ANTHONYR32
  • MEMBER
  • 7 POSTS
Oh boy, I am going to have to take that to Ford.
Was this
answer
helpful?
Yes
No
Saturday, May 5th, 2018 AT 3:50 PM
Tiny
ASEMASTER6371
  • MECHANIC
  • 52,796 POSTS
No, you do not.

Any shop can do this much cheaper than the dealer. They are the last resort and the most expensive.

Roy
Was this
answer
helpful?
Yes
No
Saturday, May 5th, 2018 AT 4:07 PM
Tiny
ANTHONYR32
  • MEMBER
  • 7 POSTS
Well I will find a shop here in Winter Garden or Orlando to do it.
Was this
answer
helpful?
Yes
No
Saturday, May 5th, 2018 AT 4:12 PM
Tiny
ASEMASTER6371
  • MECHANIC
  • 52,796 POSTS
Keep me updated.
Was this
answer
helpful?
Yes
No
Saturday, May 5th, 2018 AT 4:14 PM
Tiny
ANTHONYR32
  • MEMBER
  • 7 POSTS
Will do.
Was this
answer
helpful?
Yes
No
Saturday, May 5th, 2018 AT 4:15 PM
Tiny
STEVE W.
  • MECHANIC
  • 15,700 POSTS
Any shop or DIY it. That blower motor is easy to change out. The insulator panel is held in with push clips. Disconnect the light sensor, remove the panel. Look up at the bottom of the HVAC housing and you are staring at the blower motor. Depending on which motor you actually have it will either have three screws or a twist in/out retainer. Disconnect the electrical connector, remove the screws or release the lock and twist the motor counterclockwise and it will fall out in your hands. I would get the replacement part BUT do not unbox it until you get the old one out. High currant draw can be from a bad motor but it can also be from debris getting into the blower housing.

However being this is a 2016 and 80,000 miles you might want to see if it is a covered item.
Was this
answer
helpful?
Yes
No
Sunday, May 6th, 2018 AT 7:21 AM

Please login or register to post a reply.