A/C clutch does not engage in auto mode

Tiny
FRAGO
  • MEMBER
  • 1991 BUICK PARK AVENUE
  • 3.8L
  • 6 CYL
  • 2WD
  • AUTOMATIC
  • 160,000 MILES
Hi,

I reworked my A/C circuit. If I force the clutch to engage, the system produces a fine cold around 11 Celsius. The pressures are okay, 2 bars for the low and 15 for the high when cold is produced. I checked the low pressure switch and it seems to be okay, high pressure also is okay. Does anybody knows how the A/C command is sent to the compressor clutch? What is the wiring from the control module to the clutch? The HVAC control module is also new.
Thanks for helping.
Franck
Monday, September 13th, 2021 AT 9:38 AM

3 Replies

Tiny
KASEKENNY
  • MECHANIC
  • 18,907 POSTS
Just to be sure we understand the issue, your A/C works normally when you turn it on but when you place it in Auto mode the compressor does not come on? Or is the only way to get the compressor to come on is jump 12 volts to it?

Here is a guide that covers general issues on this but I suspect you have a voltage issue so let's start checking for proper voltage:

https://www.2carpros.com/articles/car-air-conditioner-not-working-or-is-weak

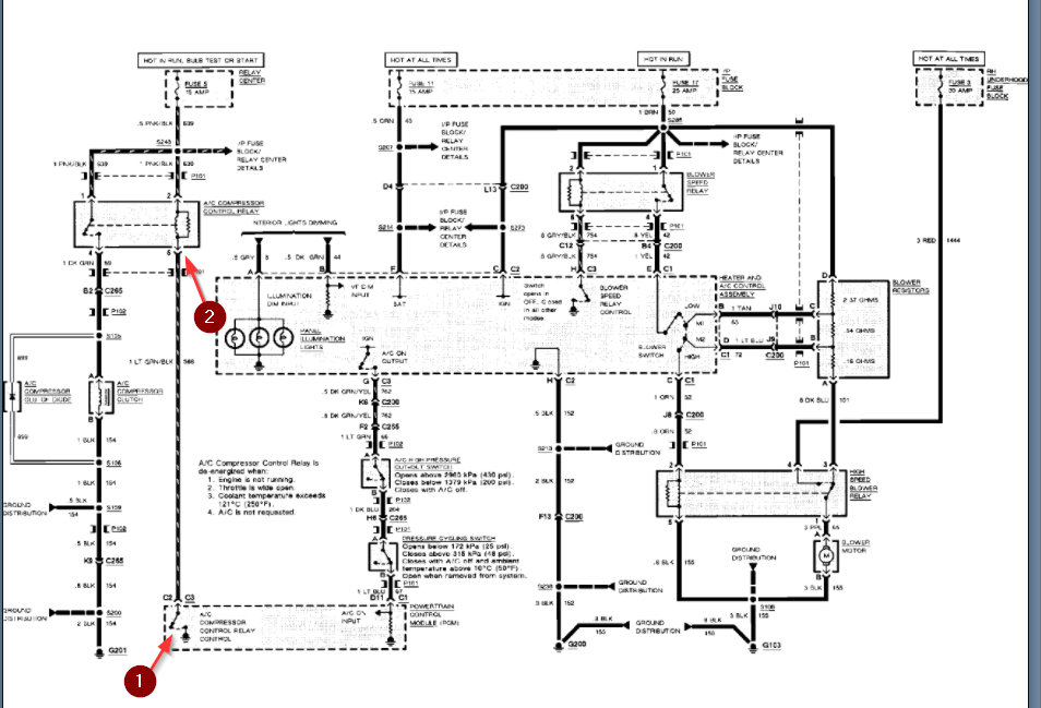
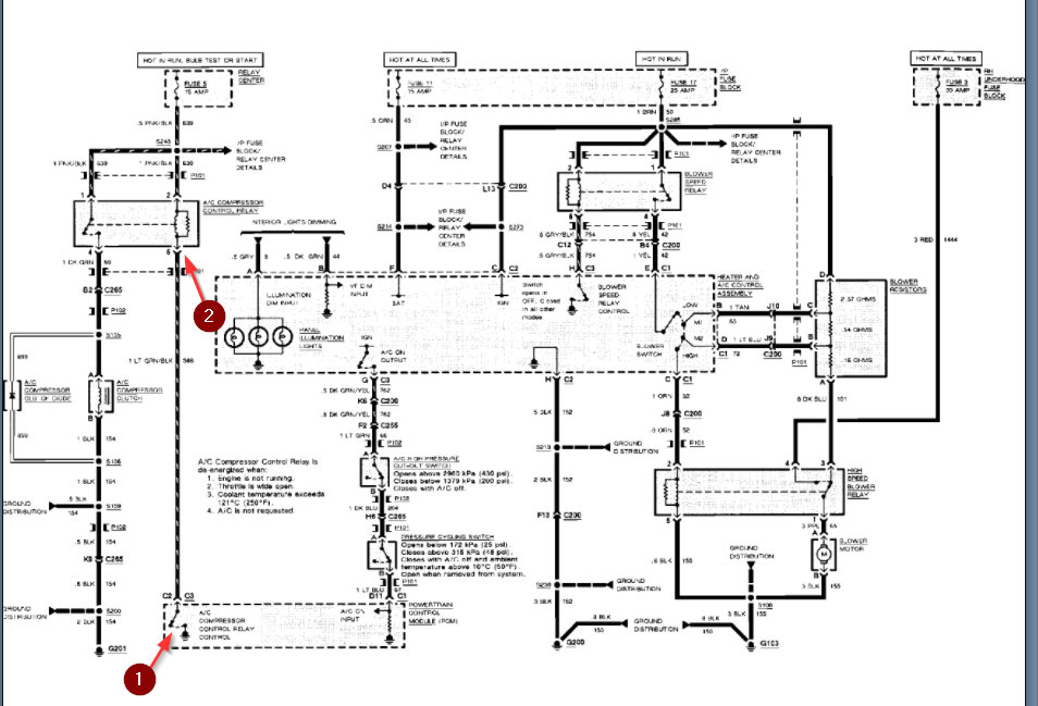
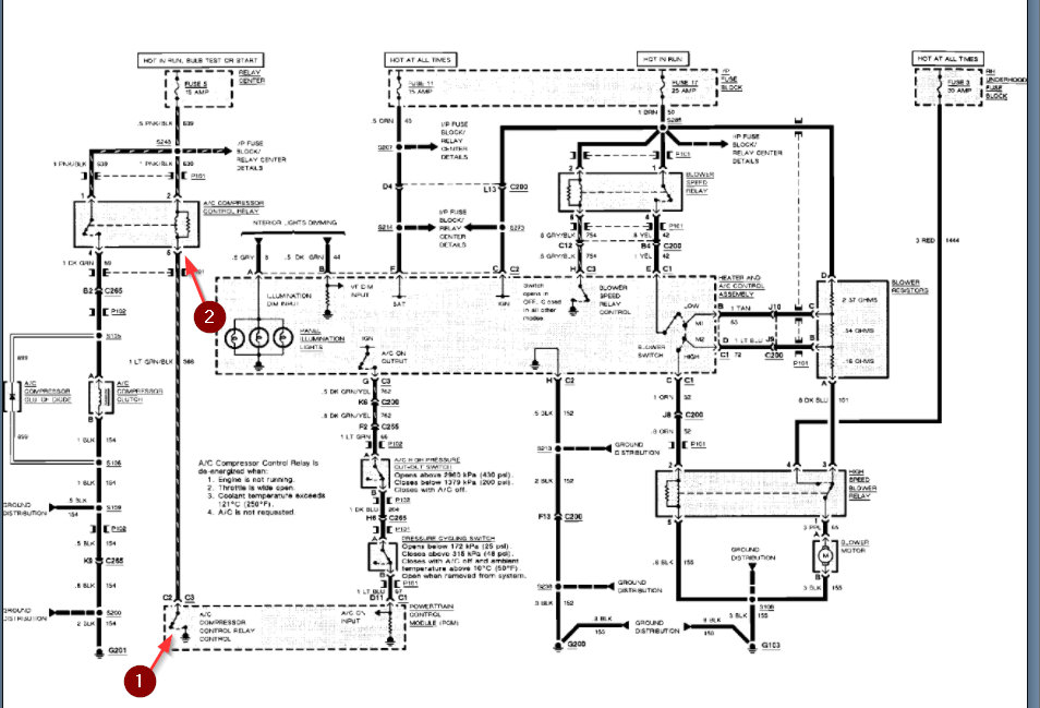
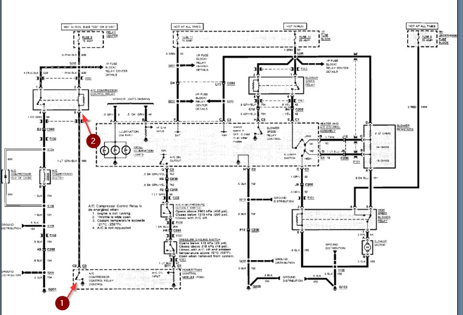
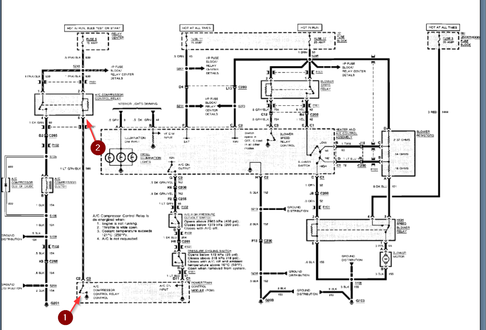
I am attaching the info below on the wiring diagram. The way this works is when the control assembly tells the PCM that the A/C button is pressed then the PCM turns the compressor on and off through the relay.

So this means we need to check the voltage at the PCM from the A/C control module when the Auto button is pressed and make sure it tells the PCM to turn it on.

https://www.2carpros.com/articles/how-to-check-wiring

The way to check the relay is to put your meter on battery positive and remove the relay and put the black lead on this terminal from the PCM. The PCM grounds the relay to turn it on so when the PCM wants the compressor on, it supplies ground to the relay.

Please run through this info and let us know what you find. Thanks
Was this
answer
helpful?
Yes
No
Monday, September 13th, 2021 AT 1:14 PM
Tiny
FRAGO
  • MEMBER
  • 32 POSTS
Hello,

Thx for you excellent answer. What I did exactly: I forced the compressor to clutch with a straight 12v on the clutch plug and put the HVAC to 15 Celsius. Blower is running, condenser fan too. The pressures seem okay as I said. Cold is produced. So I will investigate for electrical problem as you said.
Give you feed back when done.
Franck
Was this
answer
helpful?
Yes
No
Tuesday, September 14th, 2021 AT 12:39 AM
Tiny
KASEKENNY
  • MECHANIC
  • 18,907 POSTS
That is great. If the entire system works when you put 12 volts to it then this is purely a control issue which is either the module to the PCM or the PCM to the relay.

I would jump straight to the relay and see if the PCM is grounding it. If it is not then you can work backwards and see if the module is telling the PCM to turn it on. If it is then clearly everything from the HVAC module to the PCM and then to the relay is working and your issue is from the relay to the compressor.

At that point, just jump the relay and if the compressor comes on then you have a relay issue.

If it does not then you have a wiring issue from the relay to the compressor.

Let me know if you have questions or what you find.

Thanks
Was this
answer
helpful?
Yes
No
Tuesday, September 14th, 2021 AT 8:03 AM

Please login or register to post a reply.