My taillights are not working

2007 TOYOTA CAMRY HYBRID
Avatar
ANONYMOUS
  • MEMBER
  • 1 POST
Hi, the brake lights are working. I located the fuse box but I want to know which fuse I need to replace.
Oct 28, 2012 at 3:02 AM
Repair Safety Notice: This information is for general instructional purposes only. Vehicle repair can be dangerous. Verify all information, follow manufacturer service procedures, use proper tools and safety equipment, and consult a qualified repair shop when needed.
Advertisement
Avatar
DANNY L
  • CAR REPAIR CONTRIBUTOR
  • 5,648 POSTS
Hello, I'm Danny.

Here is a tutorial showing how to test and replace a fuse. I've also included one that shows how a fuse works.

https://www.2carpros.com/articles/how-a-car-fuse-works

https://www.2carpros.com/articles/how-to-check-a-car-fuse

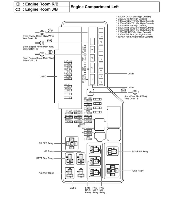
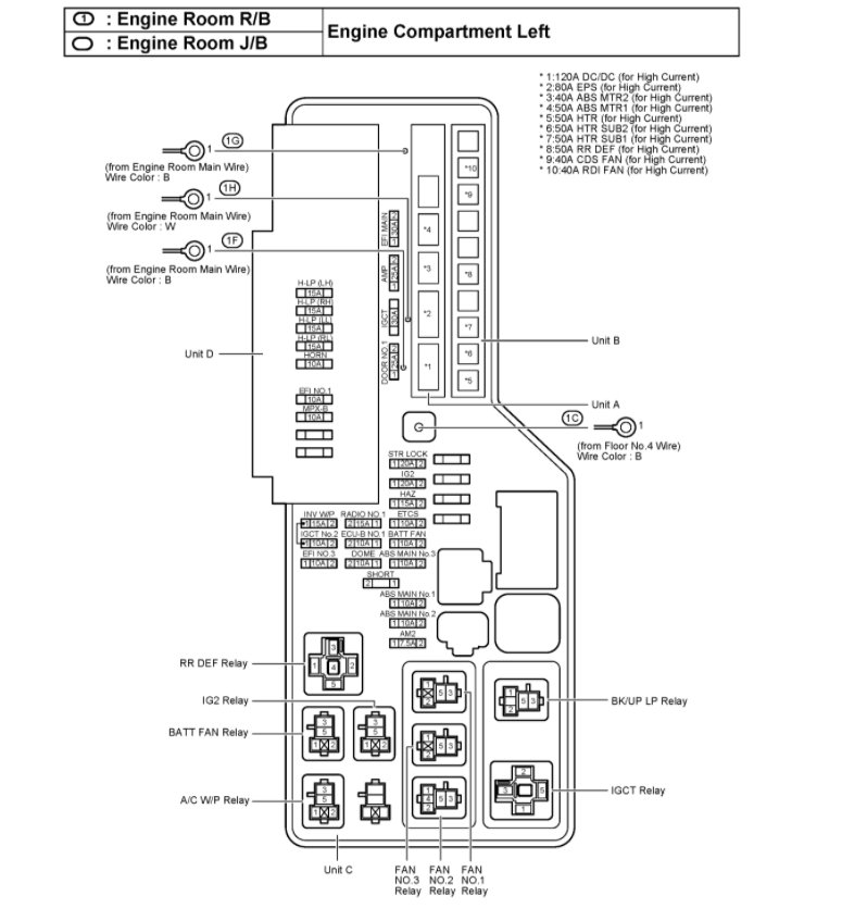
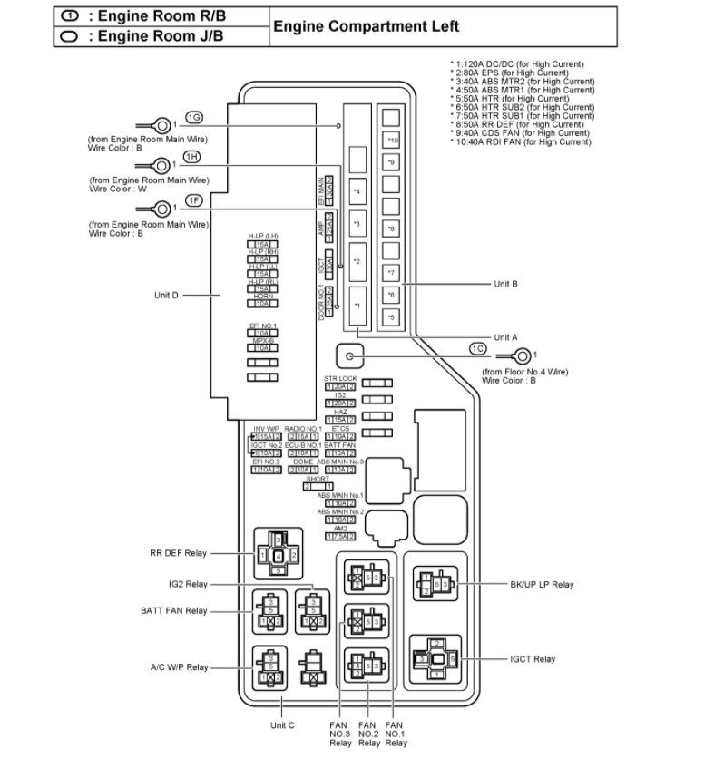
I've attached a picture below of the fuse box mounted under hood at the cowl on the left side. I've circled the taillight fuse location in red. Hope this helps and thanks for using 2CarPros.
Dec 17, 2020 at 5:32 PM
Advertisement
Avatar
STRAILER
  • CAR REPAIR CONTRIBUTOR
  • 54,199 POSTS
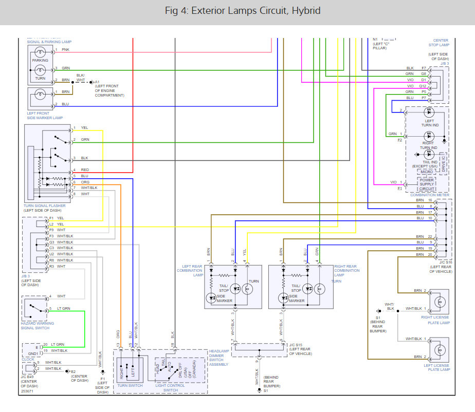
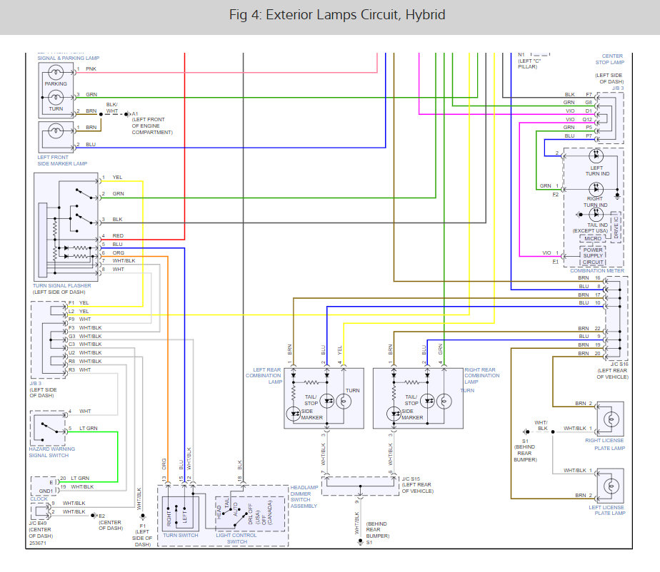
Here is a guide to help you test the fuses and the location of the fuse with the tail light wiring diagrams so you can see how the system works. There is a tail fuse (interior panel) and a tail relay

https://www.2carpros.com/articles/how-to-check-a-car-fuse

Check out the diagrams (below). Let us know what happens and please upload pictures or videos of the problem.
Dec 17, 2020 at 5:34 PM