HOME
ASK A QUESTION
REPAIR GUIDES
BECOME A MEMBER
LOG IN
Login with Facebook
OR
Remember me
NOT A MEMBER?
FORGOT PASSWORD?
CONTACT US
PRIVACY POLICY
TERMS AND CONDITIONS
☰
Home
Chrysler
Town and Country
Climate Control
Air Conditioner
No Air
2005 Chrysler Town and Country AC
WINSTEAD
MEMBER
2005 CHRYSLER TOWN AND COUNTRY
6 CYL
2WD
AUTOMATIC
100,000 MILES
Front ac wont blow
Saturday, August 1st, 2015 AT 3:31 AM
1 Reply
HMAC300
MECHANIC
48,601 POSTS
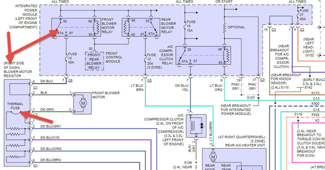
This is from a manual a/c if auto temp control have a pro scan it. See pic for what to check. If thermal fuse inside resistor is gone you need a new resistor. Also check fuses
Image (Click to make bigger)
Was this
answer
helpful?
Yes
No
Saturday, August 1st, 2015 AT 6:28 AM
Please
login
or
register
to post a reply.
Related Air Conditioner No Air Content
2005 Chrysler Town And Country Air Conditioning Not...
The Fans In Front Of The Engine Attached To The Radiator Will Not Kick On. They Work As When You Directly Attached To The Battery They Run....
Asked by
soules2007
·
1 ANSWER
2005
CHRYSLER TOWN AND COUNTRY
GUIDE
Vents No Air Flow
The HVAC system is designed to blow air from either the floor, mid or defrost vents. In the following guide we will show you what to check for depending on the symptoms of...
A/c Stops Blowing Cold Air After A While
Drove Down And Back From Destin, About 7 Hours Each Way. After About An Hour, A/c Gradually Blows Less And Less Cool Air. Now Back Home...
Asked by
rmckenzie3d
·
7 ANSWERS
2007
CHRYSLER TOWN AND COUNTRY
Air Conditioning Stopped Blowing Cold Air
I Have A 1999 Chrysler Town And Country That The Air Conditioning Stopped Blowing Cold Air Even Though The System Is Fully Charged. My...
Asked by
mkmorgan11
·
2 ANSWERS
1999
CHRYSLER TOWN AND COUNTRY
Rear Air Conditioner Not Blowing
The Rear Air Conditioner/heater Does Not Work At All. Please Help!
Asked by
Beth Yandell-Johnston
·
3 ANSWERS
1 IMAGE
1996
CHRYSLER TOWN AND COUNTRY
2003 Chrysler Town And Country Not Blowing In The...
My Air Conditioning Is Not Blowing In The Front. It Blows Fine In The Back. Could This Be The Blower Resister? My Husband And I Are Hoping...
Asked by
Mommyof5
·
1 ANSWER
2003
CHRYSLER TOWN AND COUNTRY
VIEW MORE
Ask a Car Question. It's Free!
How to Replace the A/C Blower Motor
Blend Door Actuator Replacement
How to Vacuum Down and Recharge Your A/C