A/C and Radiator Fan will not turn on.

Tiny
TPOYADOU
  • MEMBER
  • 2002 MITSUBISHI ECLIPSE
  • 91,000 MILES
Okay, the A/C fan and the Radiator fan will not turn on. I have replaced the Engine Coolant Temp Sensor, tested the Fan relay (Part Number: MR400807) and it tested good. If I pull the relay and bridge terminals 2 and 5 inside the fuse box the fans come on and they are strong. I have tested the ground on the fan connections as well. I can see that the wiring in between the fuse box and the fans is good (by bridging the terminals for the relay). I am not sure if the fans rely on the Engine Coolant Temp Sensor to provide feedback for the fans but the wiring diagram indicates that it is speed not heat that turns on the fans (there are two speed sensors inline with the fan control -- according to the Haynes Manual I am using).

Can someone give me something else that I can test or perhaps point out something I am over looking?
Monday, September 26th, 2011 AT 3:17 AM

22 Replies

Tiny
ASEMASTER6371
  • MECHANIC
  • 52,796 POSTS
They are turned on by the signal from the coolant sensor. the pcm grounds the relay and turns them on.

Here are the coolant fan wiring diagrams.

https://www.2carpros.com/articles/how-to-check-wiring

Does the car have any codes?

Roy
Was this
answer
helpful?
Yes
No
Friday, June 19th, 2020 AT 11:59 AM
Tiny
TPOYADOU
  • MEMBER
  • 11 POSTS
Scanner Tool? Do you mean an OBD?
Was this
answer
helpful?
Yes
No
Friday, June 19th, 2020 AT 11:59 AM
Tiny
ASEMASTER6371
  • MECHANIC
  • 52,796 POSTS
Yes here is a guide to help you gather codes.

https://www.2carpros.com/articles/checking-a-service-engine-soon-or-check-engine-light-on-or-flashing

Roy
Was this
answer
helpful?
Yes
No
Friday, June 19th, 2020 AT 11:59 AM
Tiny
ASEMASTER6371
  • MECHANIC
  • 52,796 POSTS
Yes, once the high side reaches 150 lb, the one or both may come on line.

Roy
Was this
answer
helpful?
Yes
No
+1
Friday, June 19th, 2020 AT 11:59 AM
Tiny
TPOYADOU
  • MEMBER
  • 11 POSTS
No. Even when its on the verge of exploding and water is spitting into the reservoir the fans don't come on. Where is this fan controller and how would I test it?
Was this
answer
helpful?
Yes
No
+1
Friday, June 19th, 2020 AT 11:59 AM
Tiny
TPOYADOU
  • MEMBER
  • 11 POSTS
Ok. I looked up the fan controller. Its the big silver box on the radiator fan. When I bridge terminals 2 and 5 on the relay socket, both fans jump to life and they are spinning strong. So that leads me to believe the wiring from fuse box to fans is good. I am just not sure how to test the wiring from the ECT to fuse box. There is nothing in the Haynes manual on how to do that and that manual is my primary method of repair. I don't even consider myself an auto enthusiast. Just a broke IT professional trying to save some scratch.
Was this
answer
helpful?
Yes
No
Friday, June 19th, 2020 AT 11:59 AM
Tiny
ASEMASTER6371
  • MECHANIC
  • 52,796 POSTS
Check this out

Roy
Was this
answer
helpful?
Yes
No
+1
Friday, June 19th, 2020 AT 11:59 AM
Tiny
TPOYADOU
  • MEMBER
  • 11 POSTS
So, if I am reading this right, there should be continuity across #4 on the relay (fuse box side), and #1 on the connector to the ECT. If there is no continuity, then the wiring is bad in between the relay and the ECT. I will pull out the meter tomorrow and check that.
Was this
answer
helpful?
Yes
No
+1
Friday, June 19th, 2020 AT 11:59 AM
Tiny
ASEMASTER6371
  • MECHANIC
  • 52,796 POSTS
Good luck

Roy
Was this
answer
helpful?
Yes
No
Friday, June 19th, 2020 AT 11:59 AM
Tiny
TPOYADOU
  • MEMBER
  • 11 POSTS
Ok. So I guess its off to the mechanic shop. I tested the wiring in between the ECT and the fuse box and I have continuity. So the wiring is solid all the way around. Any advice on what I should tell the mechanic in order to steer him in the right direction of fixing my problem so he doesn't start from scratch?
Was this
answer
helpful?
Yes
No
Friday, June 19th, 2020 AT 11:59 AM
Tiny
ASEMASTER6371
  • MECHANIC
  • 52,796 POSTS
Let him start from scratch. He needs to start at basics and build up from there. Please dont try to tell him to do his job.

You can tell him what you have done but he most likely will do his checks his way.

Roy
Was this
answer
helpful?
Yes
No
Friday, June 19th, 2020 AT 11:59 AM
Tiny
KHLOW2008
  • MECHANIC
  • 41,814 POSTS
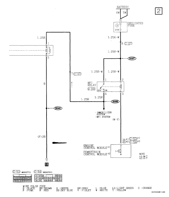
Maybe you would like to perform this test?

Diagnosis

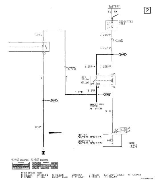
1. Disconnect fan controller connector A-30. See Fig. 5. Measure for voltage between terminal No. 3 and ground when ignition switch is turned to the ON position. If battery voltage is not achieved, go to next step. If battery voltage is achieved, go to step 7.

2. Check fan control relay. See FAN CONTROL RELAY under COMPONENTS
TESTS. If fan control relay is okay, go to next step. If fan control relay is not okay, replace it and retest.

3. Check for harness damage in Yellow wire between fusible link No. 2 and terminal No. 4 of fan control relay connector A-09X. See Fig. 6. If wire is okay, go to next step. If wire is damaged, repair or replace as necessary and retest.

4. Check for harness damage in Red wire between terminal No. 2 of fan control relay connector A-09X and terminal No. 3 of fan controller connector A-30. See Fig. 5 and Fig. 6. If wire is okay, go to next step. If wire is damaged, repair or replace as necessary and retest.

5. Check for harness damage in Red wire between terminal No. 4 of MFI relay connector A-18X and terminal No.1 of fan control relay connector A-09X. See Fig. 6 and Fig. 7. If wire is okay, go to next step. If wire is damaged, repair or replace as necessary and retest.

6. Check for harness damage between terminal No. 3 of fan control relay connector A-09X and ground. See Fig. 6. If wire is okay, go to next step. If wire is damaged, repair or replace as necessary and retest.

7. Disconnect fan controller connector A-30. See Fig. 5. Measure resistance between terminal No. 1 and ground. If the resistance is 2 ohms or more, go to next step. If resistance is less than 2 ohms, go to step 9.

8. Check the harness wires between terminal No. 1 of fan controller connector A-30 and ground. See Fig. 5. If wire is okay, go to next step. If wire is damaged, repair as necessary and retest.

NOTE:
Do not disconnect ECM (manual transmission) or PCM (automatic transmission). Measure output voltage of ECM or PCM by backprobing.

9. Start the engine and allow it to idle. Measure the output circuit voltage between identified ECM or PCM terminals and ground by backprobing. See OUTPUT CIRCUIT VOLTAGE TERMINAL IDENTIFICATION table. See Fig. 8. If the voltage when the radiator fan is operating is less than 0.7V, go to next step. If the voltage when the radiator fan is operating is 0.7V or more, go to step 11.

NOTE:
Check terminal No. 6 of intermediate connector C-07, repair it and then check wiring. See Fig. 9.

10. Check the harness wire between identified ECM or PCM terminals and terminal No. 2 of fan controller connector A-30. See OUTPUT CICUIT VOLTAGE TERMINAL IDENTIFICATION table. See Fig. 5 and Fig. 8. If wiring is damaged, repair or replace as necessary and retest. If wiring is okay, go to next step.

11. Disconnect ECM or PCM connector. Pull out the specified pin. See OUTPUT CIRCUIT VOLTAGE TERMINAL IDENTIFICATION table. See Fig. 8. Reconnect ECM or PCM connector (with the specified pin still pulled out). Turn the ignition switch to the ON position. If the radiator fan motor and condenser fan motor operate correctly, replace the ECM or PCM and retest. If the radiator fan motor and condenser fan motor do not operate correctly, replace the fan
controller and retest.
Was this
answer
helpful?
Yes
No
+6
Friday, June 19th, 2020 AT 11:59 AM
Tiny
TPOYADOU
  • MEMBER
  • 11 POSTS
Okay. The pictures and the process was very straight forward and has led me to suspect the MFI again. So, I have decided to err on the side of caution and have ordered a new one. I am waiting for that to arrive and will continue the troubleshoot as soon as the relay is installed.
Was this
answer
helpful?
Yes
No
Friday, June 19th, 2020 AT 11:59 AM
Tiny
TPOYADOU
  • MEMBER
  • 11 POSTS
Installed new PCM and the problem is fixed I guess the driver that runs the relay stopped working, thanks for your help I love this site.
Was this
answer
helpful?
Yes
No
+1
Friday, June 19th, 2020 AT 11:59 AM
Tiny
ILFFER2003
  • MEMBER
  • 28 POSTS
Dear All
i neeh help
i have mitsubish Galant 2001 ( 2000 cc ), I have an overheating issue and no one help me
when start the car the fans working on low speed and I think this ok but when the car overheat the fans high speed dont come
with AC the fans high speed come so the car will not overheat while AC is on and if I note the car begin overheating I usualy start the AC to avoid overheating but I need to solve this issue
please note I have changed the coolant sensor, thermostat, Fans, Fans controller and still have the same issue
what should I do?
Was this
answer
helpful?
Yes
No
Friday, June 19th, 2020 AT 11:59 AM
Tiny
KHLOW2008
  • MECHANIC
  • 41,814 POSTS
When starting from cold, the fans should not come on. Since you have replaced all the external components, you most likely is looking at a faulty PCM.
Was this
answer
helpful?
Yes
No
Friday, June 19th, 2020 AT 11:59 AM
Tiny
HEATHER32
  • MEMBER
  • 4 POSTS
I have a 2004 Mitsubishi Eclipse spider GT 3.0 convertible. My fans are only turning on when I turn on the A/C but my gauge still goes up to H. I have replaced the radiator cap, thermostat, coolant temperature sensor, relay, fuse, water sender gauge and my fans still won’t turn on without turning on A/C.
Was this
answer
helpful?
Yes
No
Monday, April 11th, 2022 AT 2:46 PM
Tiny
JACOBANDNICKOLAS
  • MECHANIC
  • 110,192 POSTS
Hi Heather,

First, sorry for the delay in getting back to you. It wasn't picked up because you added on to an old thread. I hope you understand.

Because of the model year difference, I need you to copy your question and paste it to a new post. We do this so it is more helpful to others. I hope you understand.

Here is the link to start a new post:

https://www.2carpros.com/questions/new

Again, I hope you understand.

Take care and I will watch for your question.

Joe
Was this
answer
helpful?
Yes
No
+1
Wednesday, April 13th, 2022 AT 8:56 PM
Tiny
HEATHER32
  • MEMBER
  • 4 POSTS
Hi Joe, I made a separate post a few days ago. I’m not sure how to send you a link to my post.
Was this
answer
helpful?
Yes
No
Wednesday, April 13th, 2022 AT 9:29 PM
Tiny
JACOBANDNICKOLAS
  • MECHANIC
  • 110,192 POSTS
Hi,

Copy and paste the link at the top of the page and send it to me.

Joe
Was this
answer
helpful?
Yes
No
+1
Thursday, April 14th, 2022 AT 7:05 PM

Please login or register to post a reply.