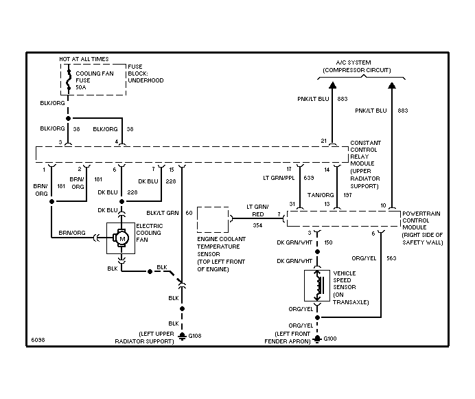
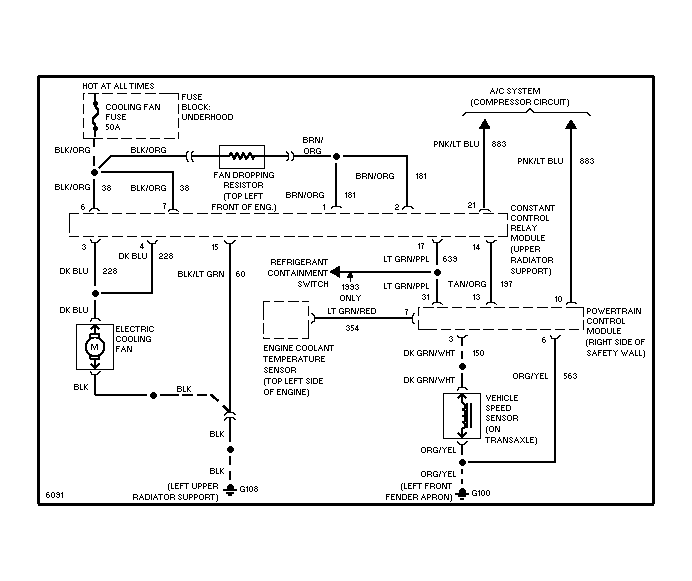
Wednesday, March 20th, 2013 AT 3:45 AM
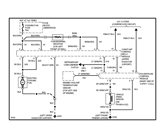
The cooling fan doesn't kick on and the car is starting to over heat. I've checked for fluids and its full, what could be keeping the fan from coming on?




