Monday, September 9th, 2013 AT 9:28 AM
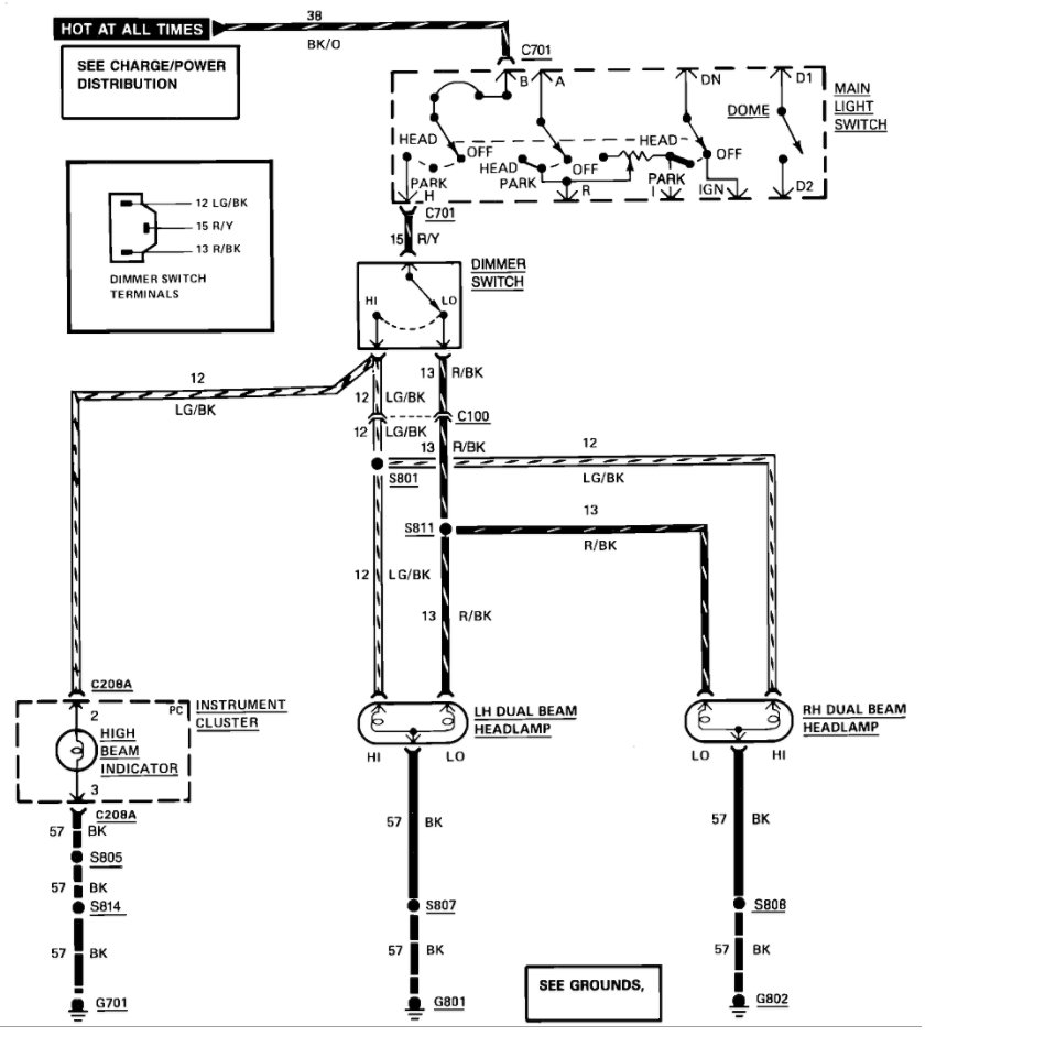
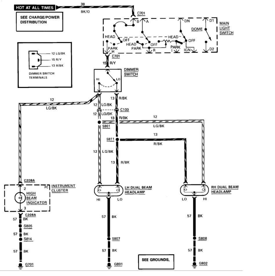
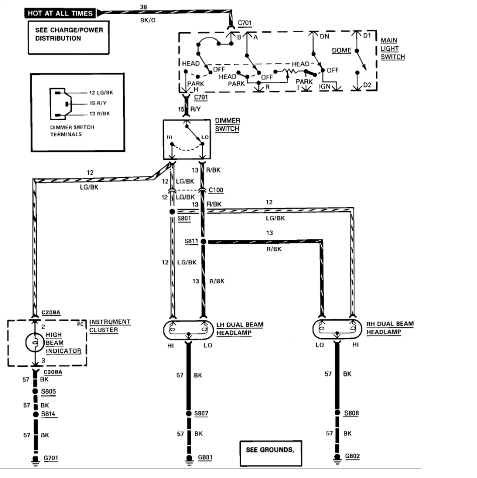
They were working just fine till one night I went to turn them on and they didnt work the parking lights work and the harzards work but no head lights I replaced fuses, headlights, and headlight switch and my lights still dont turn on.


