A/C blowing hot where is the A/C relay located?

Tiny
SLOPEZ3
  • MEMBER
  • 1996 ACURA TL
  • 3.2L
  • V6
  • FWD
  • AUTOMATIC
  • 125,000 MILES
A/C blowing hot. The A/C was working this morning and this afternoon blows hot.
Friday, July 21st, 2017 AT 4:22 PM

1 Reply

Tiny
STEVE W.
  • MECHANIC
  • 15,695 POSTS
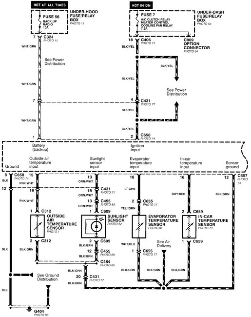
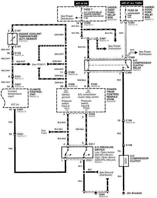
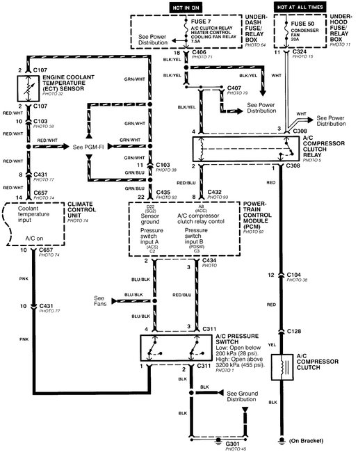
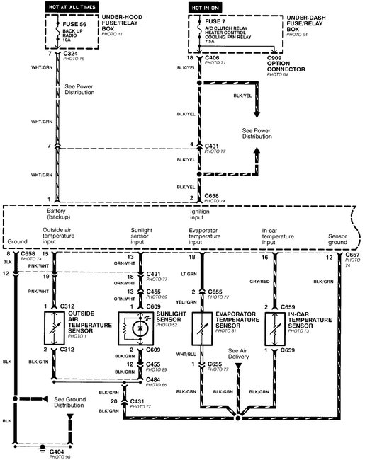
That car has a few items that will stop the AC from operating if they fail. The AC clutch relay is just one piece.
Check fuses 7 in the dash fuse/relay box and 50 in the under hood relay box. The AC relay is in the front of the engine compartment near the upper radiator hose.
Was this
answer
helpful?
Yes
No
+3
Sunday, July 23rd, 2017 AT 2:44 PM

Please login or register to post a reply.