Saturday, July 26th, 2025 AT 12:52 PM
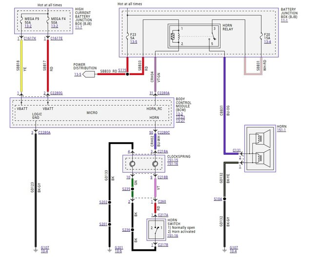
Do you guys know the name of the wire that's the next wire up from the horn and immediate horn connector on a car? Not this wire in the picture, but the one it connects to. It is one half of a Y wiring harness that comes from a large connector and splits, one end going to the horn. Thank you.

