HOME
ASK A QUESTION
REPAIR GUIDES
BECOME A MEMBER
LOG IN
Login with Facebook
OR
Remember me
NOT A MEMBER?
FORGOT PASSWORD?
CONTACT US
PRIVACY POLICY
TERMS AND CONDITIONS
☰
Home
Nissan
Sentra
Exterior Light
Brake Light
Fuse
Where is the brake light fuse located?
ROBYNDECKER5
MEMBER
2010 NISSAN SENTRA
2.2L
2WD
AUTOMATIC
130,000 MILES
Hi, I’m trying to locate the fuse for the brake lights and have lost the inside cover.
Wednesday, August 4th, 2021 AT 10:37 AM
1 Reply
KASEKENNY
MECHANIC
18,907 POSTS
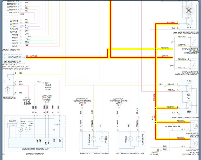
There is not a fuse directly for the stop lamps but indirectly through the stop lamp switch.
Here are a couple guides that will help with this:
https://www.2carpros.com/articles/how-a-brake-light-switch-works
https://www.2carpros.com/articles/how-to-check-a-car-fuse
Looks like this is fuse 20 and I show all the info below on this.
Please run through this and let us know if you have other questions.
Thanks
Images (Click to make bigger)
Was this
answer
helpful?
Yes
No
Wednesday, August 4th, 2021 AT 12:10 PM
Please
login
or
register
to post a reply.
Related Brake Light Fuse Content
1993 Nissan Sentra Brake Light Switch
Electrical Problem 1993 Nissan Sentra 4 Cyl Two Wheel Drive Manual Brake Light Stays On
Asked by
mark ivan weckerly
·
2 ANSWERS
1993
NISSAN SENTRA
1991 Nissan Sentra Brake & Battery Light Flickers...
Engine Mechanical Problem 1991 Nissan Sentra 4 Cyl Two Wheel Drive Automatic N/a Miles The Battery Light And Brake Light Started To...
Asked by
lknshen
·
2 ANSWERS
1991
NISSAN SENTRA
I Change Brake Light Switch And Brake Lights Still Not...
1 Day Ago Brake Lights Went Out. Purchased Switch Fm Local Retailer Installed And There Still Not Working. I Also Checked Fuses!
Asked by
Danastann
·
3 ANSWERS
1990
NISSAN SENTRA
2001 Nissan Sentra What To Replace?
Two Months Ago I Noticed A Burning Smell Coming From The Sides Of The Vechile When I Was At A Complete Stop. More Time On A Slope. I Assumed...
Asked by
Juanita9801
·
3 ANSWERS
2001
NISSAN SENTRA
2004 Nissan Sentra Third Light
The Third Light In The Back Window Does Not Work. Fuses Appear Okay. How Do You Change The Bulb?
Asked by
ptguy64
·
2 ANSWERS
2004
NISSAN SENTRA
VIEW MORE
Ask a Car Question. It's Free!
How to Use a Test Light
Turn Signals Blink Fast
Have a Dim Headlight? - Try Replacing This!