Trunk release button not working?

Tiny
AZDANNO04
  • MEMBER
  • 2008 CHEVROLET COBALT
  • 2.2L
  • 4 CYL
  • 2WD
  • MANUAL
  • 134,455 MILES
My trunk release button stopped working. Wanted to know if there’s a fuse or relay for it?
Monday, November 13th, 2023 AT 5:37 PM

5 Replies

Tiny
KEN L
  • MASTER CERTIFIED MECHANIC
  • 55,420 POSTS
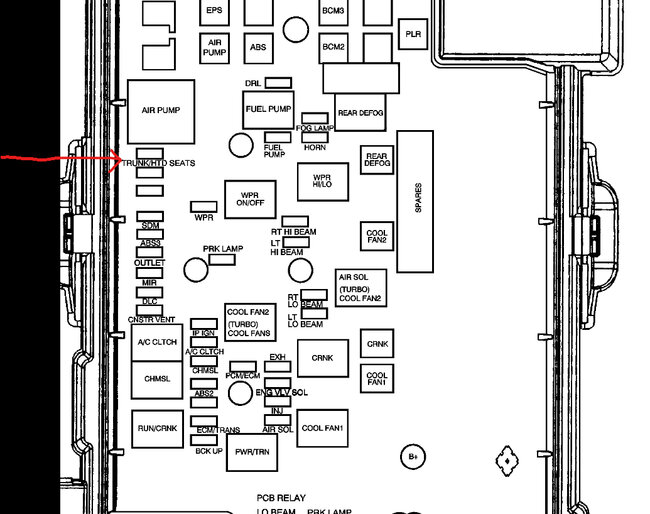
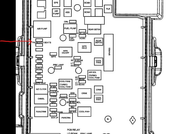
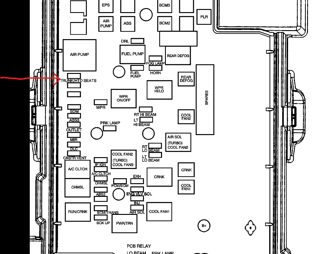
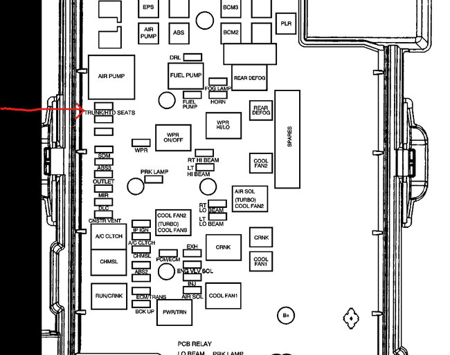
Yes, there is a fuse (trunk/heated seats) and control relay under the hood in the fuse panel on the left side near the shock tower. Here is the location of the fuse and relay so you can check them out and the trunk release wiring diagrams so you can see how the system works.

These guides can help:

https://www.2carpros.com/articles/how-to-check-a-car-fuse

and

https://www.2carpros.com/articles/how-to-check-an-electrical-relay-and-wiring-control-circuit

Check out the images (below). Please let us know what happens.
Was this
answer
helpful?
Yes
No
+1
Tuesday, November 14th, 2023 AT 8:25 AM
Tiny
AZDANNO04
  • MEMBER
  • 343 POSTS
Would a poor ground cause this? Because my third brake light isn't working, and I used the voltage meter and got 18.60 and that's about right since the fuse is a 20amp. Along with my horn, speedometer, rpm, fuel sending gauge, fuel pump won't prime the gas (which is causing a Vapor Lock) so when I put gas from the pump it shuts off at the pump likes it full and most of the time can put only no more than 2gallons. Then it's full at the filling tube and won't go down. The obe harness that's below the oil filter. I bump it while the car was in secondary, and I heard a click sound. Moved the thick strand of taped wires and click, click. Took a hold of the bulk strand and the other hand was moving portions of the wires till I got to the electrical harness that has four wires and goes under where the starter is.
Was this
answer
helpful?
Yes
No
Tuesday, November 14th, 2023 AT 10:33 PM
Tiny
KEN L
  • MASTER CERTIFIED MECHANIC
  • 55,420 POSTS
Yes, a bad ground or a shorted wiring harness can cause this problem. Try to see if there are any ground connection near where you are moving the harness around?
Was this
answer
helpful?
Yes
No
+1
Thursday, November 16th, 2023 AT 10:01 AM
Tiny
AZDANNO04
  • MEMBER
  • 343 POSTS
There's one on the transmission housing stud bolt.
Was this
answer
helpful?
Yes
No
Thursday, November 16th, 2023 AT 6:08 PM
Tiny
KEN L
  • MASTER CERTIFIED MECHANIC
  • 55,420 POSTS
I would remove it and clean it up with a wire brush to see if that fixes it.
Was this
answer
helpful?
Yes
No
Friday, November 17th, 2023 AT 11:26 AM

Please login or register to post a reply.