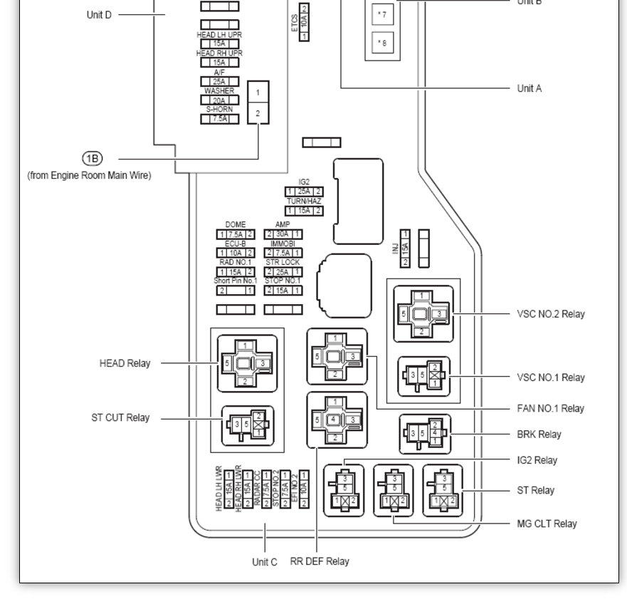
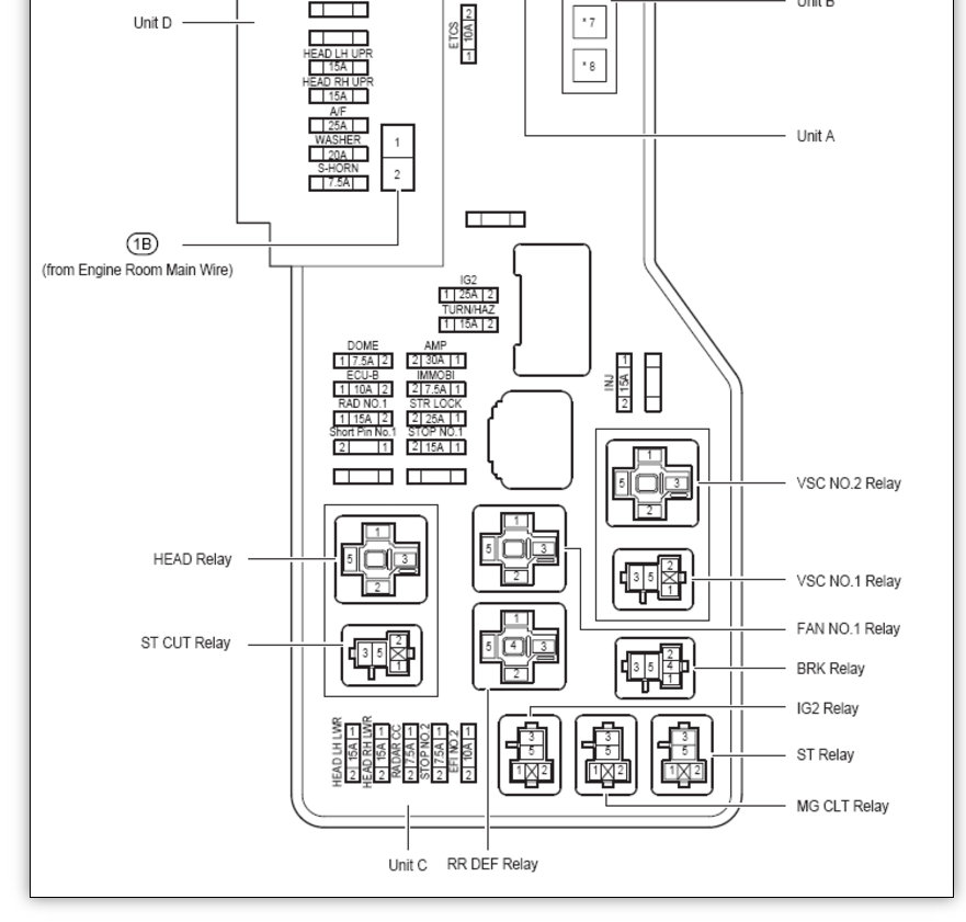
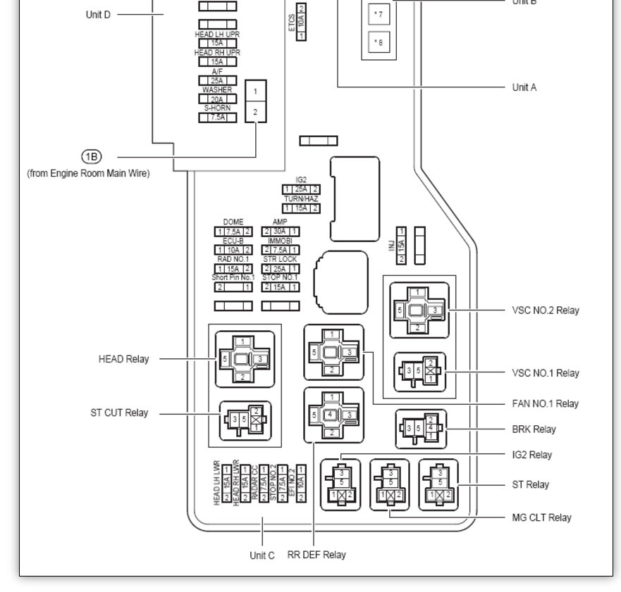
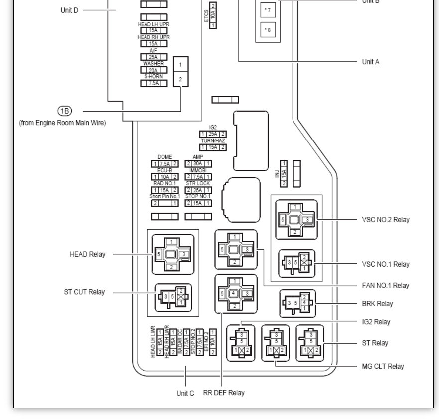
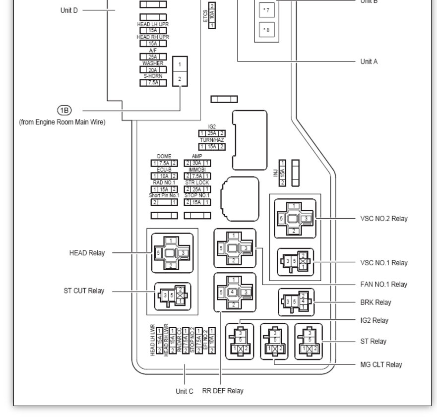
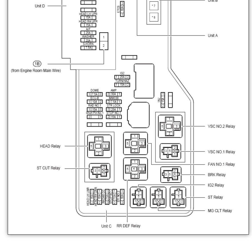
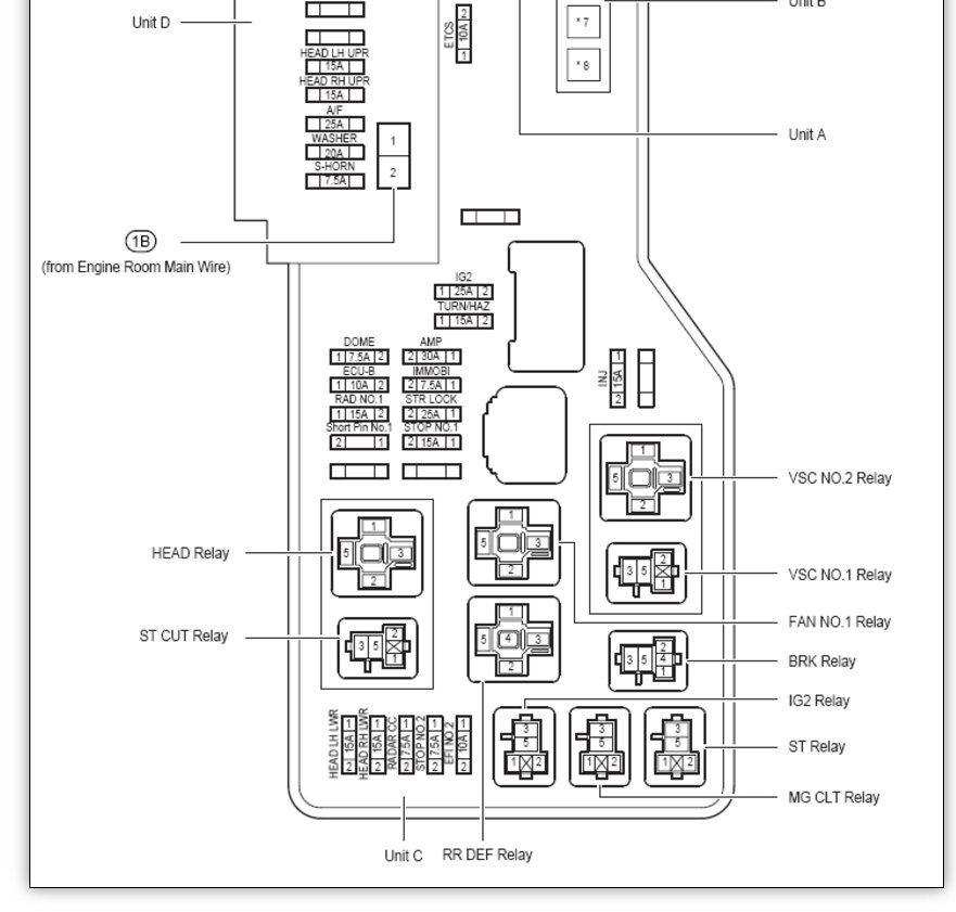
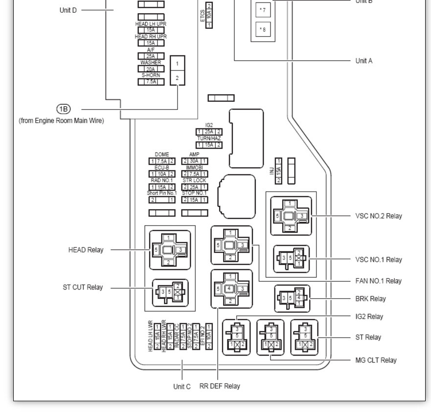
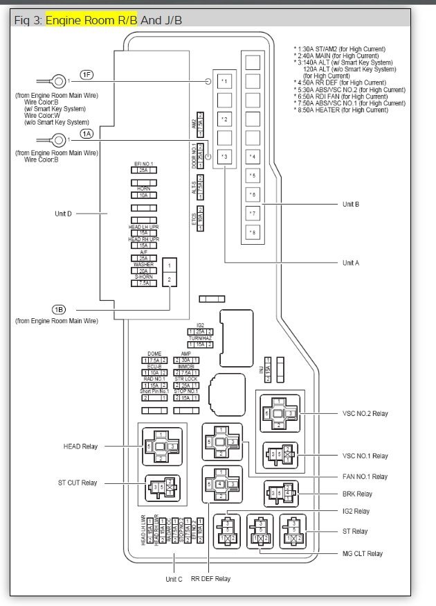
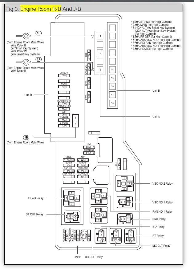
The reason I want to do this is to simplify opening the trunk. To reduce the chances of theft from the trunk due a break-in of the passenger compartment, one must disable the trunk release button on the dashboard by pushing a button in the glove compartment and them locking the glove compartment. Unfortunately, pushing this glove compartment button also disables the trunk release button on the wireless remote control. The trunk does not have a key hole. Thus, with the button in the glove compartment set and the glove compartment locked, it's a pain to put the laptop or other valuable item used during a trip into the trunk whenever making a stop.
Disabling the trunk release button on the dashboard without disabling the trunk release button on the wireless remote control would make it easy to open the trunk without unlocking the glove compartment and pushing the button at the beginning and end of each rest stop -- just like the old days when there was a trunk key hole!
Saturday, November 15th, 2008 AT 9:20 PM
































