Tried to replace fuse but cant find it.

Tiny
CANDUGRAPHICS
  • MEMBER
  • 2002 TOYOTA 4RUNNER
  • 4 CYL
  • 2WD
  • MANUAL
  • 100,000 MILES
The windows and horn do not work. Tried to replace fuse but cant find it. Help! If it is the fuse "box", is this something I can do myself or does a mechanic need to replace?
Friday, May 1st, 2009 AT 12:52 AM

3 Replies

Tiny
NOMADELMUNDO
  • MEMBER
  • 6 POSTS
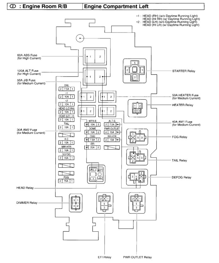
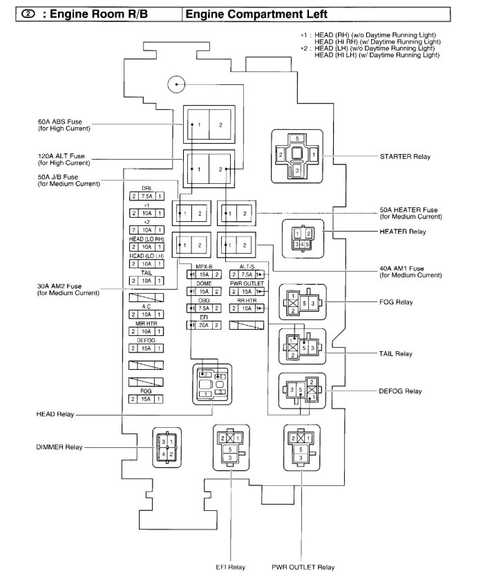
Hopefully it's a fuse problem. It should be one of the smaller ones under neath the hood but most likely on left lower side of your steering wheel.

Just take each of those out with a long nose pliers and see which one is burnt out and replace it with a fuse that will run you few dollars from a auto supply store.

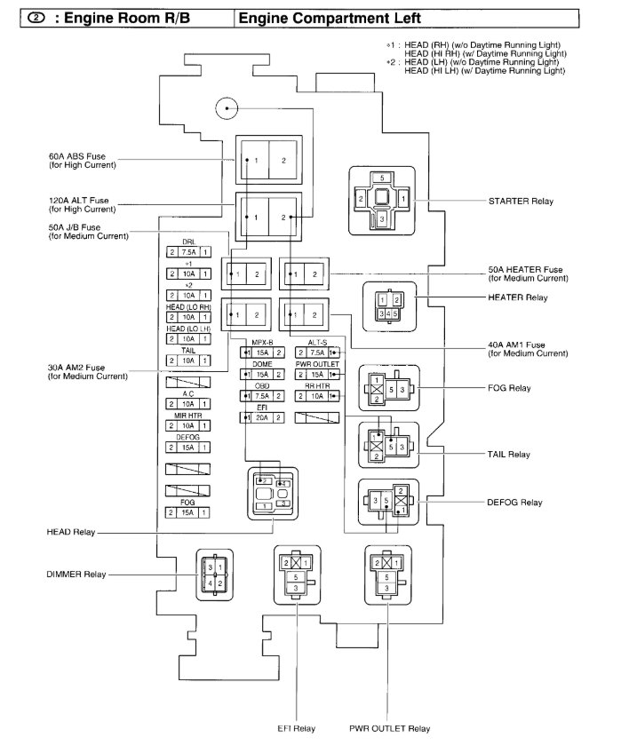
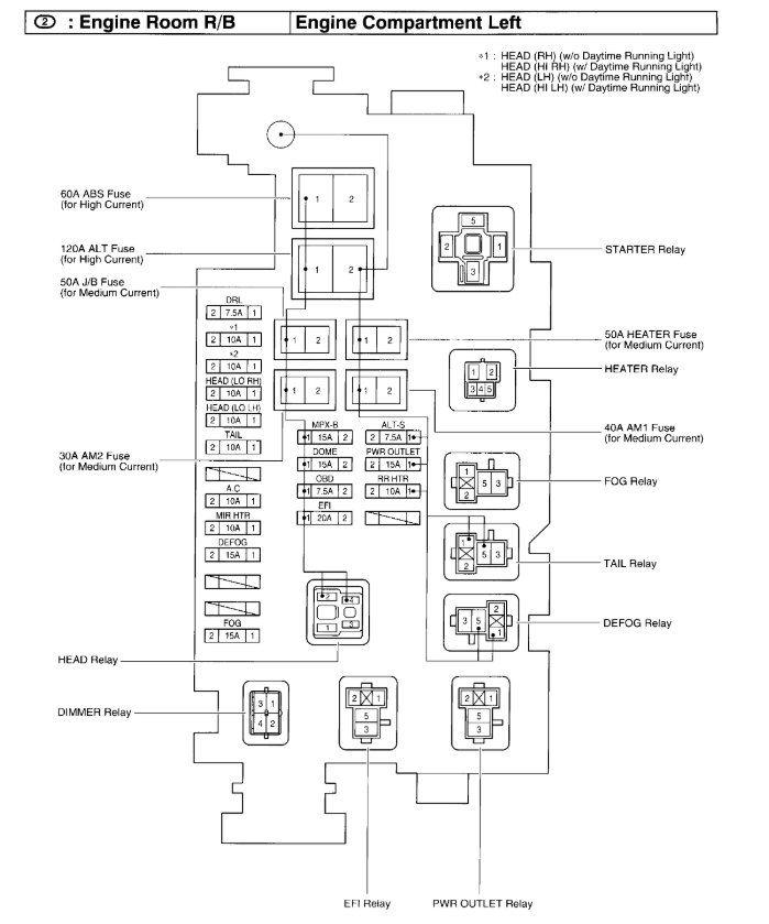
I have attached to 2 photos for reference. The horn fuse is the 7.5amp one on the top right corner on the driver side. Hopes this helps.

https://www.2carpros.com/articles/how-to-check-a-car-fuse

Check out the diagrams (Below). Please let us know what happens.
Was this
answer
helpful?
Yes
No
-1
Monday, May 4th, 2009 AT 9:48 AM
Tiny
PHORNE
  • MEMBER
  • 1 POST
  • 1997 TOYOTA 4RUNNER
Which fuse controls the cigarette lighter?
Was this
answer
helpful?
Yes
No
+2
Thursday, July 30th, 2020 AT 12:15 PM (Merged)
Tiny
KEN L
  • MASTER CERTIFIED MECHANIC
  • 55,281 POSTS
Hello,

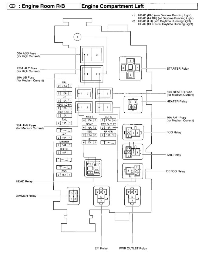
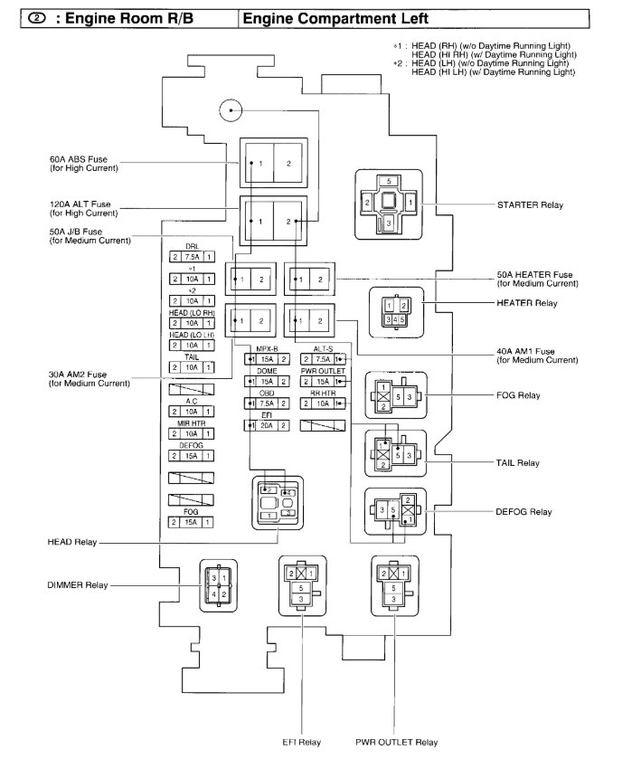
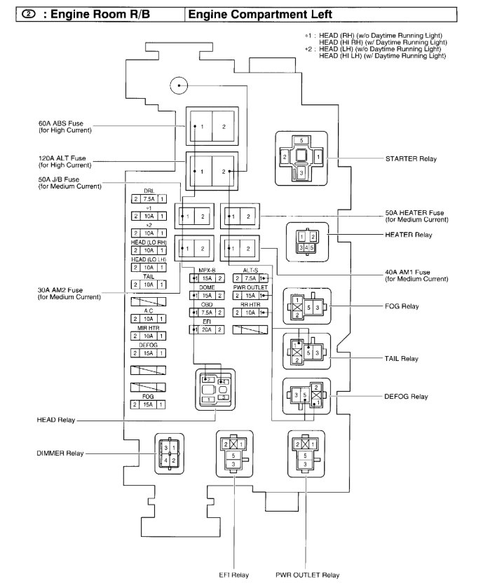
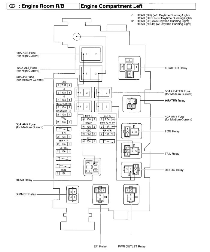
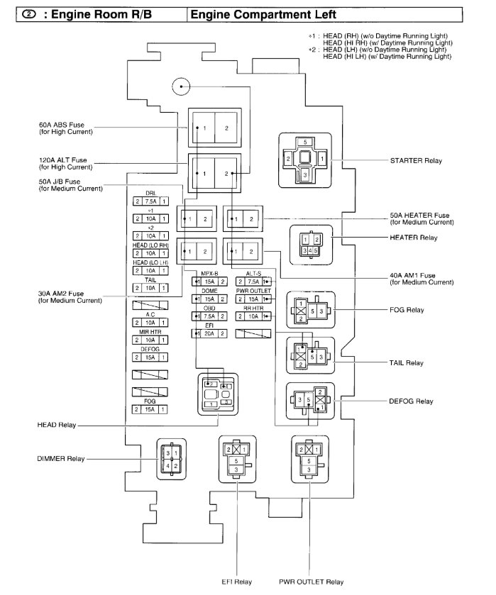
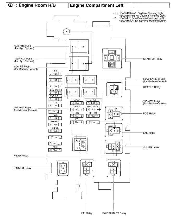
The fuse is located in the fuse box. Here are some diagrams (below) that will help you find the fuse box and a guide to help you test them. The fuse you want to test is the 15 amp ACC #20 (accessory fuse).

https://www.2carpros.com/articles/how-to-check-a-car-fuse

Check out the diagrams (Below). Please let us know if you need anything else to get the problem fixed.

Cheers, Ken
Was this
answer
helpful?
Yes
No
+2
Thursday, July 30th, 2020 AT 12:15 PM (Merged)

Please login or register to post a reply.