Tuesday, October 8th, 2019 AT 10:31 AM
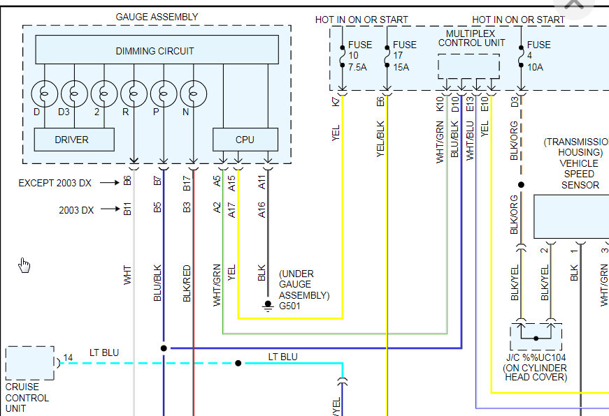
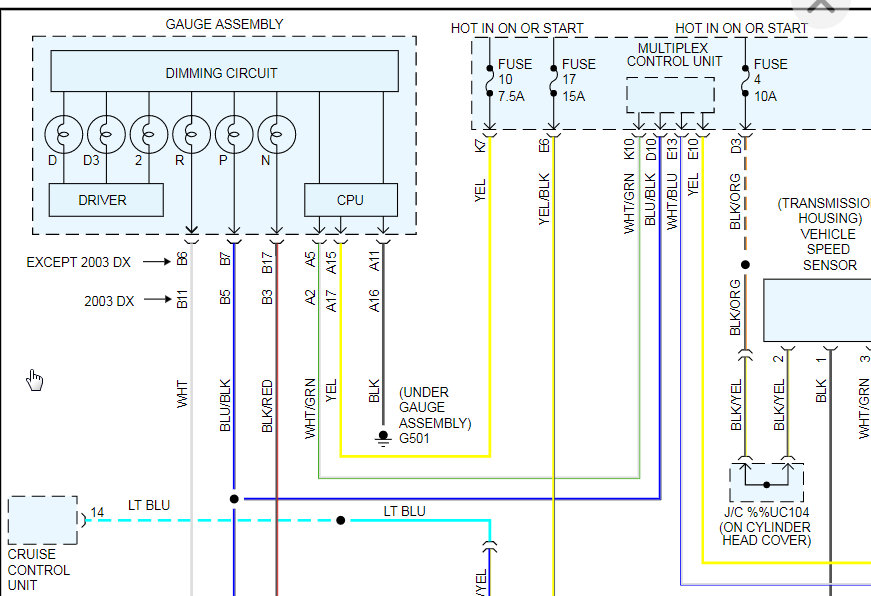
Hi, the green light on the dash on the D stopped working. It would go on and off once in a while but now has gone out totally. It was not like it was flashing codes more like flickering. There is no drivability problem. How can I check it without taking part the dash? What powers it up? Neutral safety switch?





