Temperature Sensor keeps failing?

Tiny
THJOSEPH123
  • MEMBER
  • 2015 CHEVROLET TRAVERSE
  • 3.6L
  • V6
  • 2WD
  • AUTOMATIC
  • 140,000 MILES
I had my coolant temperature sensor replaced three times in 3 months and it keeps failing. What can I do to keep it fixed?

Thanks!
Tuesday, November 15th, 2022 AT 1:21 PM

1 Reply

Tiny
CARADIODOC
  • MECHANIC
  • 34,464 POSTS
Common mistake. Temperature sensors have an extremely low failure rate because there's just one component inside them. Are you going by a diagnostic fault code? If so, they never ever say to replace a part or that one is bad. They only indicate the circuit or system that needs further diagnosis, or the unacceptable operating condition. When a sensor or other part is referenced in a fault code, it is actually the cause of that code only about half of the time. First we have to rule out wiring and connector terminal problems, and mechanical problems associated with that part.

Only Ford had a huge problem with their coolant temperature sensors in the early '90s. Other than that, the majority of problems involve the connector terminals. The place to start is with the diagnostic fault codes. If those were read and recorded, please list which one(s) came up. You can also go here:

https://www.2carpros.com/trouble_codes/obd2

to see the definitions, or I can interpret them for you.

Please also describe the symptoms or problems, and any observations or history that led up to this. Do you want to diagnose this yourself? If you do, you'll need a voltmeter. You can find a perfectly fine one at Harbor Freight Tools for around $7.00. They're also at Walmart, any hardware store and any auto parts store. Check out this article:

https://www.2carpros.com/articles/how-to-use-a-voltmeter

if it will help. They're using an auto-ranging meter which is an expensive option you don't need. I can help with setting up your meter if you need it.

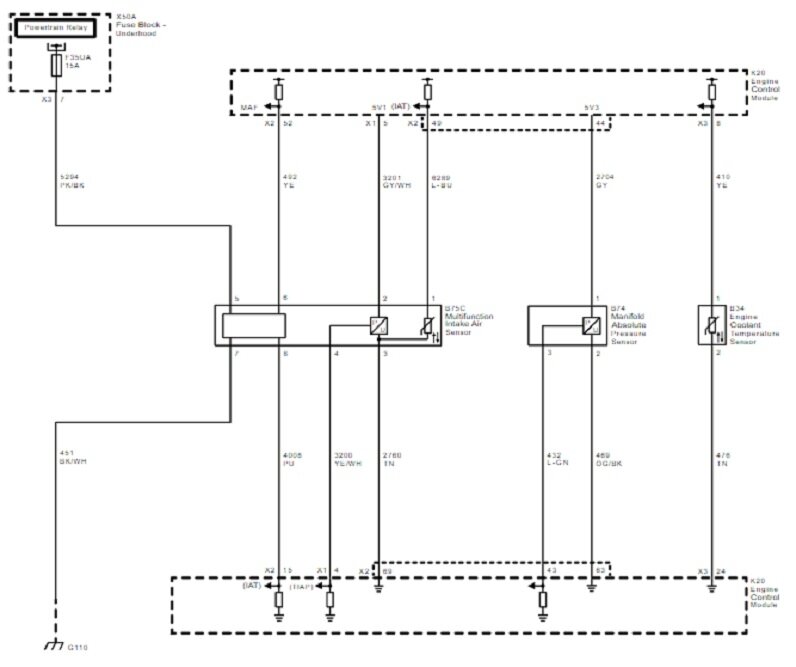
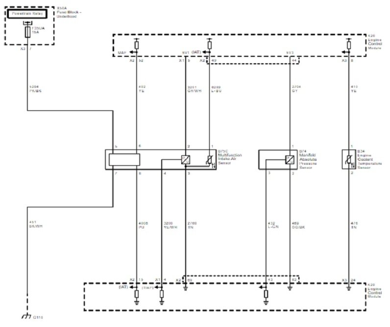
This drawing shows the location of the coolant temperature sensor. There's a heat shield that must be removed to get to it. To be valid, all voltage readings must be taken with the connector plugged in. That's done by back-probing through the rubber weather seals around the wires.

As you can see in the second diagram, these can be rather hard to read. I expanded the coolant temperature sensor in the third diagram to show the sensor has a yellow and a tan wire going to it. The tan wire should have very close to 0.0 volts. The yellow one should have between 0.5 and 4.5 volts, but only when it is plugged in. That's the acceptable range, give or take a little. If it is unplugged, (or has an intermittent connection), it will have the full 5.0 volts. That is one of the values outside the acceptable range that sets a fault code. The other extreme is when the yellow wire is grounded to the engine, then it will have 0.0 volts, which is also outside the acceptable range, and will set a different fault code.

Please understand this appears to be an intermittent problem. Any voltage readings only apply at the time they're taken. Often something has to occur to make an intermittent problem act up, such driving on rough roads, or the rocking of the engine as you accelerate or coast. That's when the Engine Computer will catch the defect and set the fault code, while you won't see it with the voltmeter. This is where it can become necessary to use a scanner to see what the computer is seeing and reacting to.
Was this
answer
helpful?
Yes
No
+2
Tuesday, November 15th, 2022 AT 2:26 PM

Please login or register to post a reply.