Saturday, December 11th, 2021 AT 3:47 PM
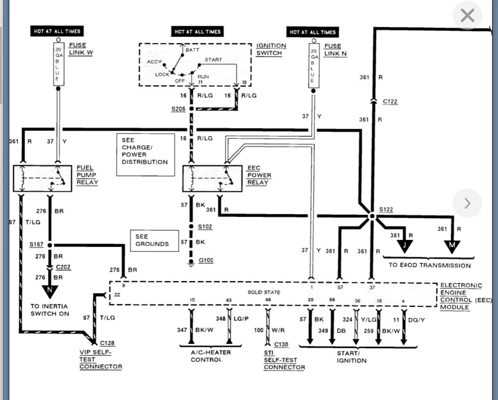
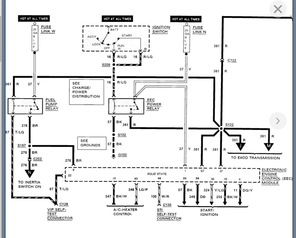
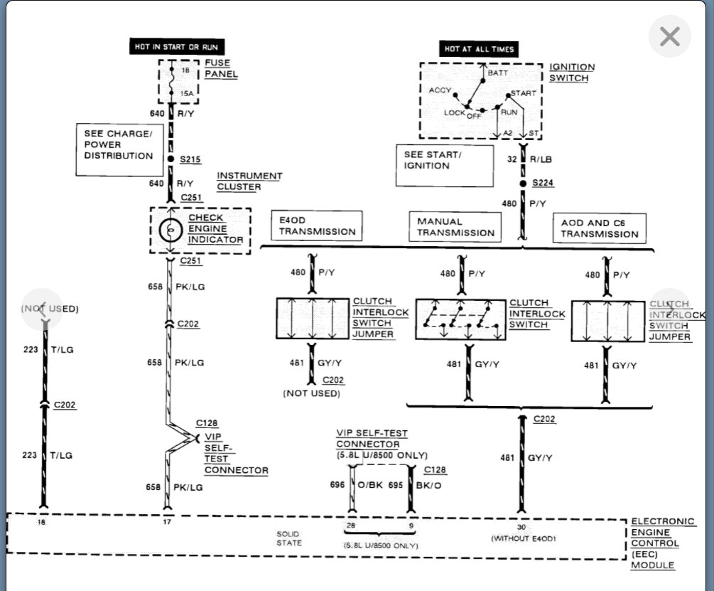
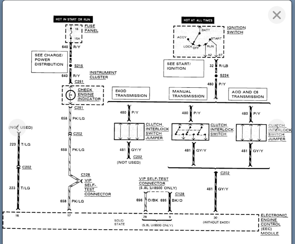
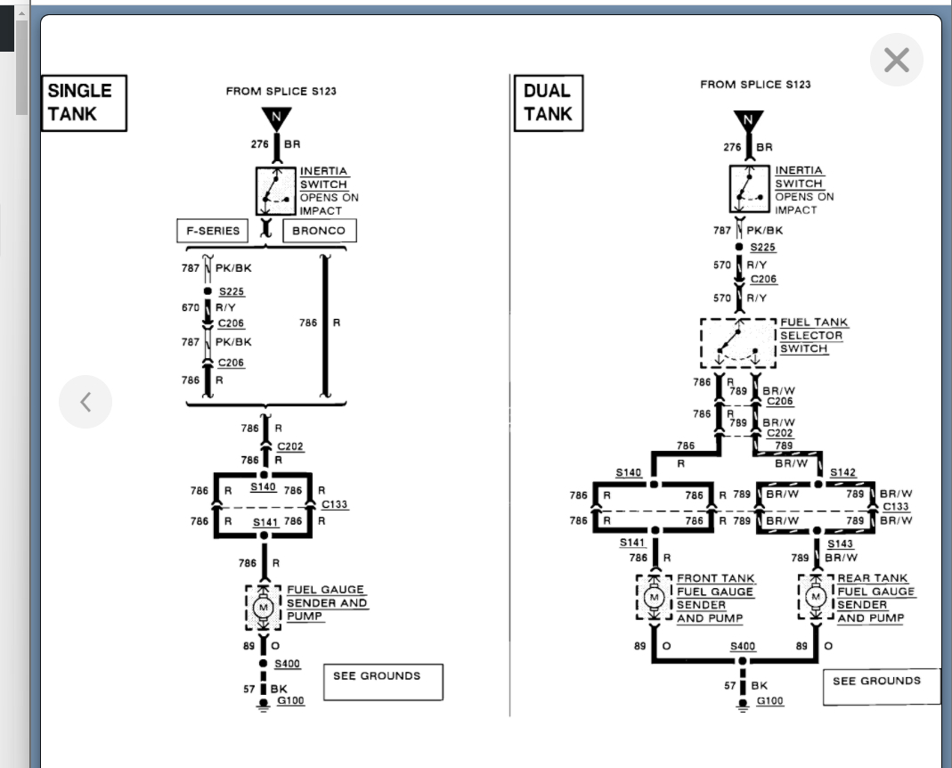
I just replaced my power steering pump and hoses, and when I went to start the truck, my key got jammed. So, I've replaced the starter switch activator before, so I assumed it broke again. I started taking the column apart, the small tip on my key switch had broken off, (easy fix) also the starter switch activator was intact, as I inspected everything, I noticed the tilt wheel flange was cracked in three places. So, I disassembled everything and pulled the flange out. Now I'm faced with buying a whole used column or pray I can find a used flange (this part is discontinued by Ford). I found a flange for a cheap price of $185,000, sarcasm! So, now I have to wait 7-10 days for the part, I've pulled all the interior panels left and right under column, everything is apart waiting for that flange. My question is, will my truck start if I push on the starter switch rod? I have ordered a new switch (the one down on the column) but haven't replaced it. I did try it and the truck turned over, but I didn't hear the fuel pump and the truck didn't start.





