Service lights on after replacing the battery?

Tiny
GTX6970
  • MEMBER
  • 2017 CHEVROLET SILVERADO
  • 5.3L
  • V8
  • 4WD
  • AUTOMATIC
  • 67,000 MILES
Since battery replacement I have a service air bag light on, A/C blower doesn't work yet all function lights are illuminated, radio doesn't work, and Stabil track light in cluster is on.
Tuesday, August 2nd, 2022 AT 6:34 AM

3 Replies

Tiny
JACOBANDNICKOLAS
  • MECHANIC
  • 110,194 POSTS
Hi,

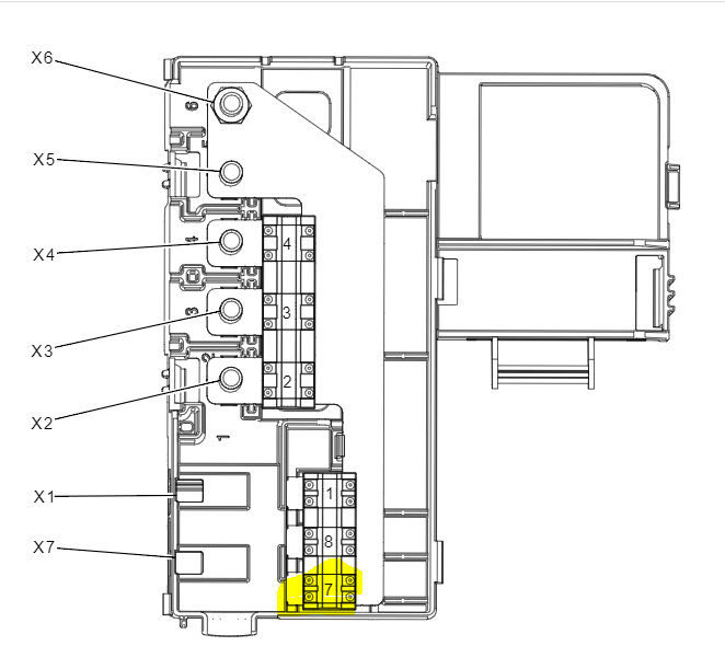
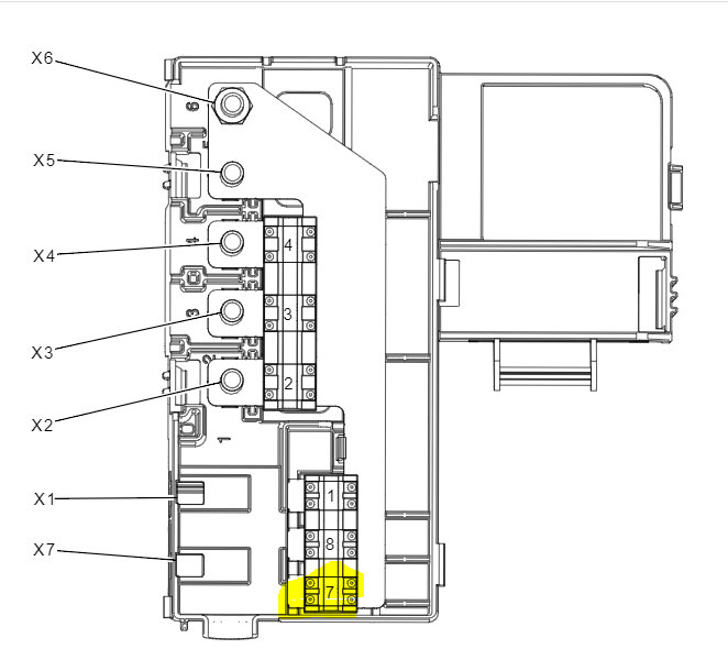
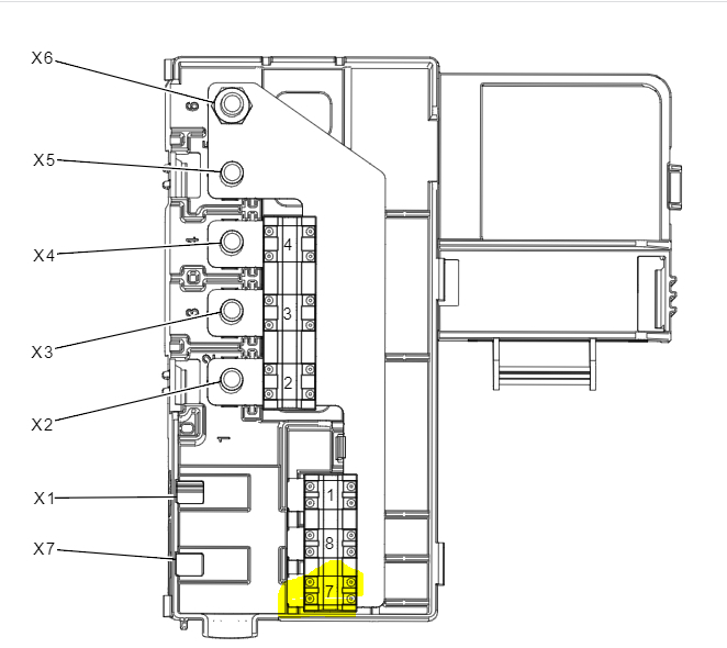
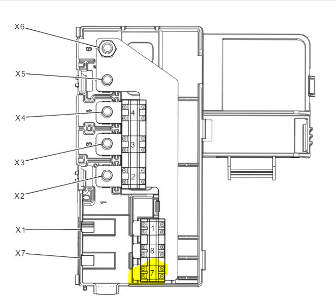
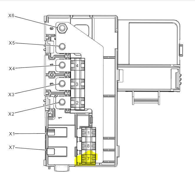
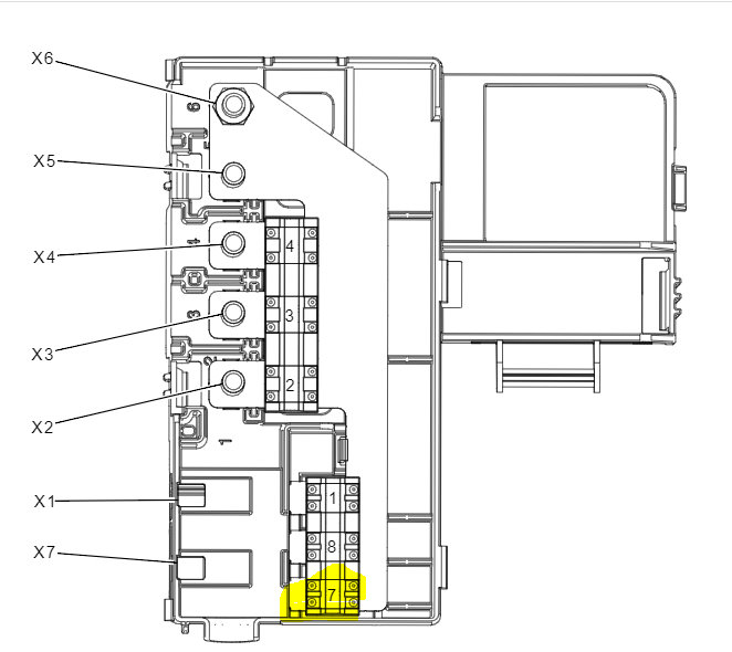
I need you to check fuse 7 in the under-hood battery fuse box (see pic 2). It is a
60-amp fuse that powers the things you mentioned. Actually, it sends power to a fuse box under the dash, right side. From there the power is distributed to other fus.es covering the items of interest.

When you check the fuse, make sure there is power to and from it. I suspect if you were to check the fuses related to the affected components in the fuse box on the right side of the dash, you would find they are not getting power.

Here is a link you may find helpful:

https://www.2carpros.com/articles/how-to-check-a-car-fuse

Let me know if this helps or if you have other questions.

Take care,

Joe

See pics below.

Was this
answer
helpful?
Yes
No
Tuesday, August 2nd, 2022 AT 9:28 PM
Tiny
GTX6970
  • MEMBER
  • 5 POSTS
Thanks for the reply. I fixed it.
Hate to admit it but the 4 wire spade plug was left disconnected at the junction box on top of the battery. That I didnt catch at 1st. Thanks again
Was this
answer
helpful?
Yes
No
Thursday, August 4th, 2022 AT 6:08 AM
Tiny
JACOBANDNICKOLAS
  • MECHANIC
  • 110,194 POSTS
Hi,

It happens to all of us. No problem.

Regardless, thank you for the update, and feel free to come back anytime in the future.

Take care of yourself,

Joe
Was this
answer
helpful?
Yes
No
Thursday, August 4th, 2022 AT 5:11 PM

Please login or register to post a reply.