Can I get a fuse box diagram please?

Tiny
LAKER JOHN
  • MEMBER
  • 1996 SATURN SC1
  • 4 CYL
  • FWD
  • MANUAL
  • 168,000 MILES
Can I get a fuse box diagram please? I need to do some testing
Wednesday, September 23rd, 2009 AT 3:47 PM

5 Replies

Tiny
BLUELIGHTNIN6
  • MECHANIC
  • 16,542 POSTS
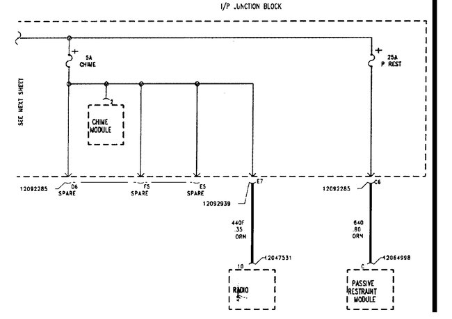
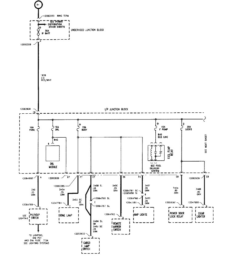
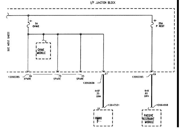
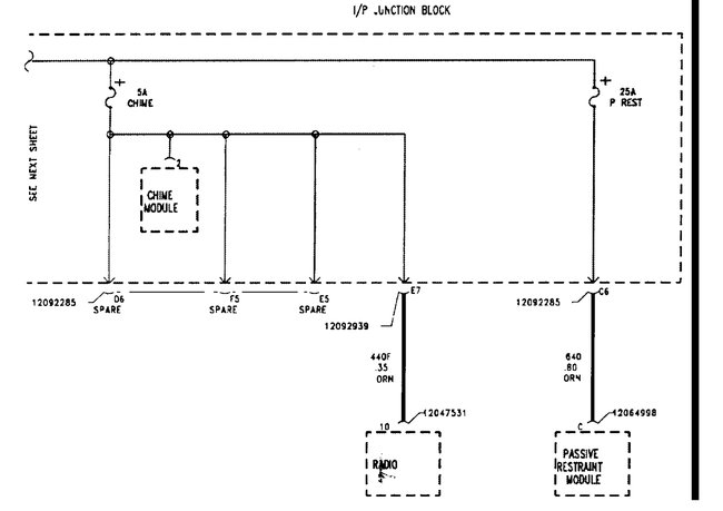
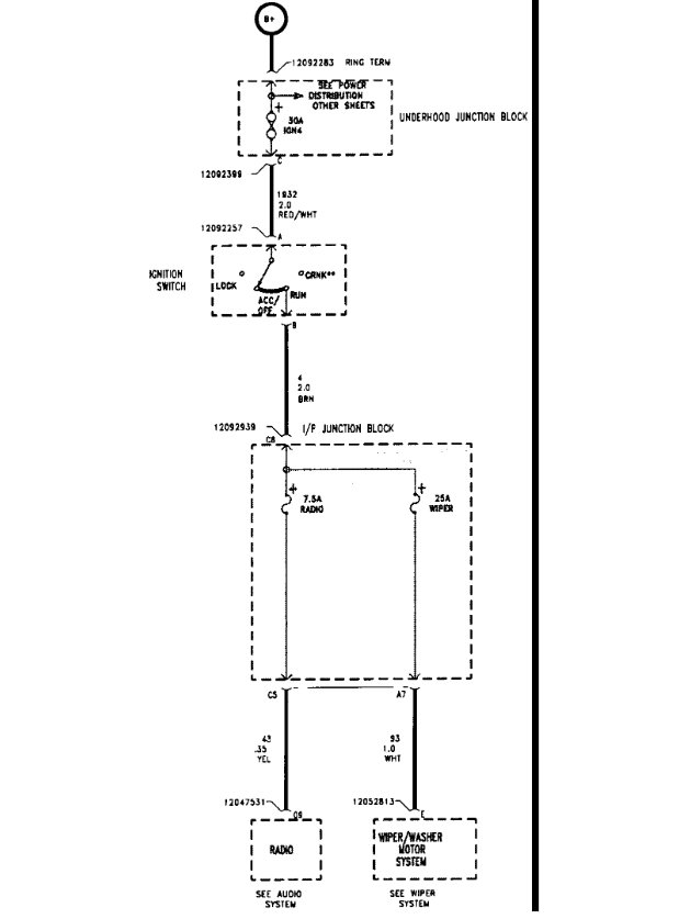
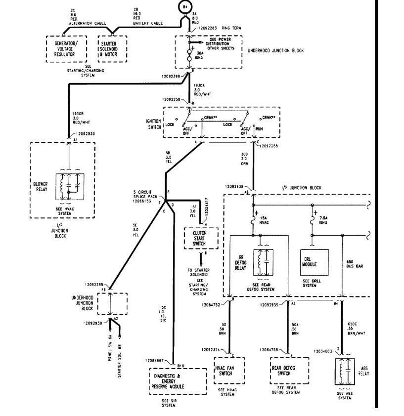
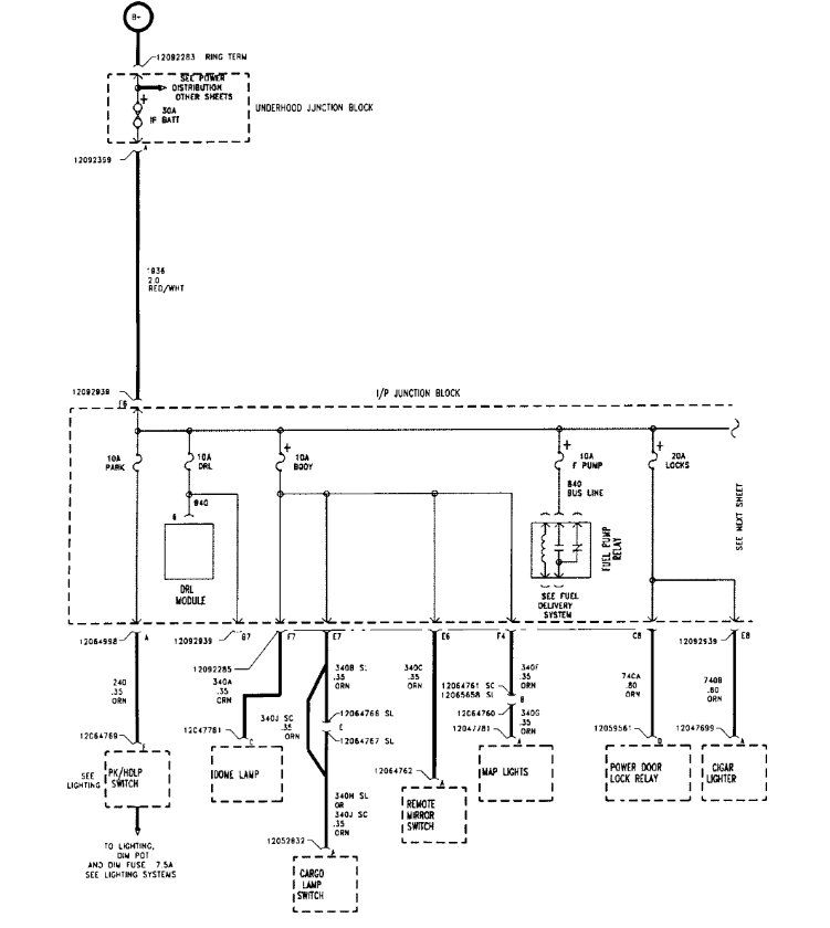
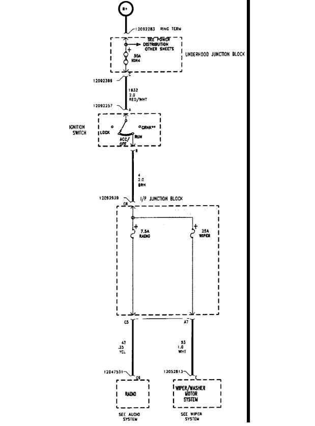
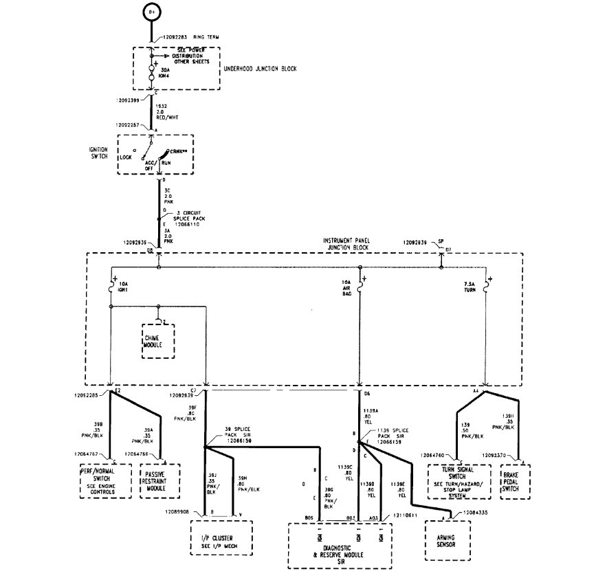
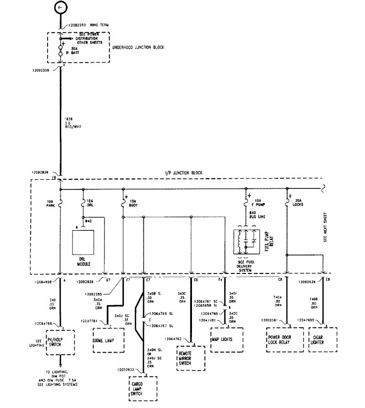
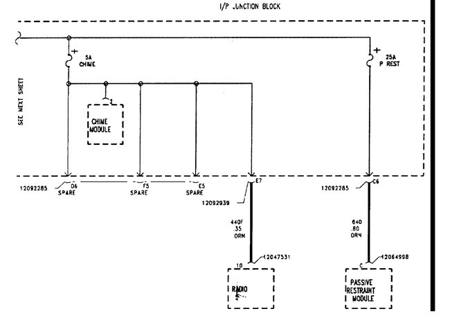
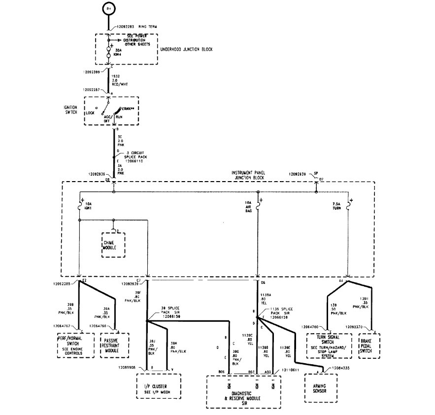
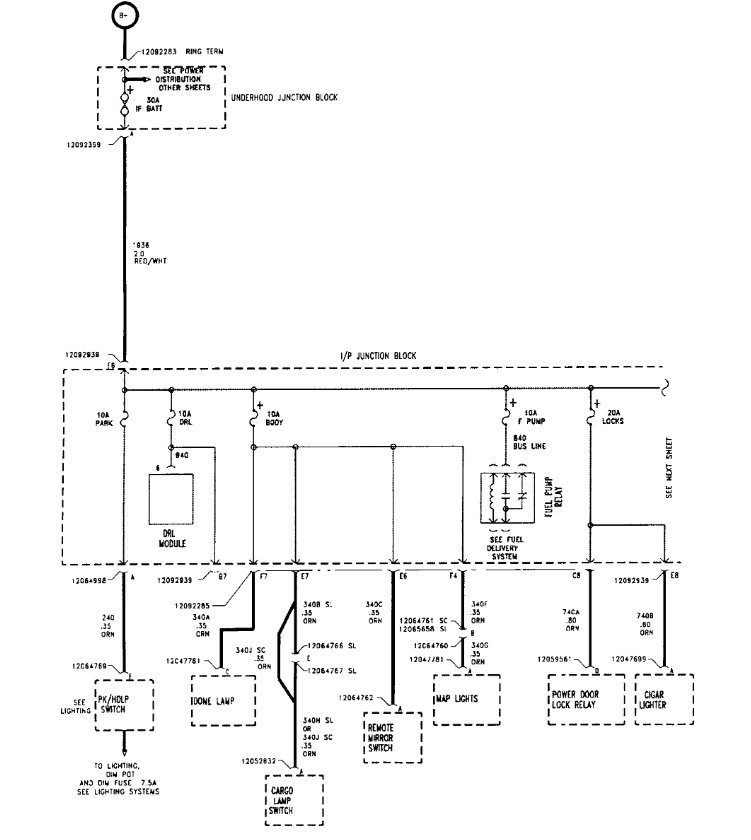
Hello, here is a guide to helps you check the fuses with the fuse panel diagrams below.

https://www.2carpros.com/articles/how-to-check-a-car-fuse

Check out the diagrams (Below). Please let us know if you need anything else to get the problem fixed.
Was this
answer
helpful?
Yes
No
+13
Wednesday, September 23rd, 2009 AT 10:11 PM
Tiny
BONSONAK
  • MEMBER
  • 1 POST
  • 1995 SATURN SC1
  • 20,000 MILES
Fuse diagram needed.
Was this
answer
helpful?
Yes
No
+1
Saturday, August 29th, 2020 AT 1:07 PM (Merged)
Tiny
SCGRANTURISMO
  • MECHANIC
  • 4,897 POSTS
Hello,

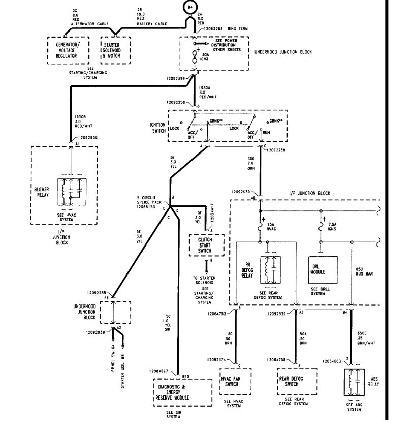
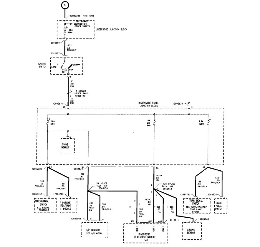
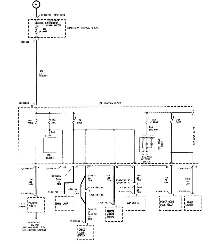
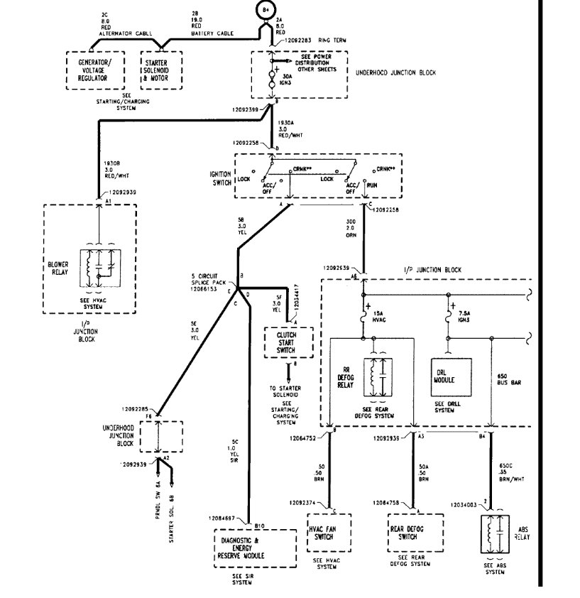
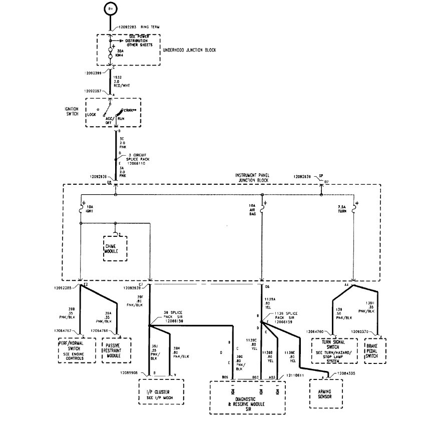
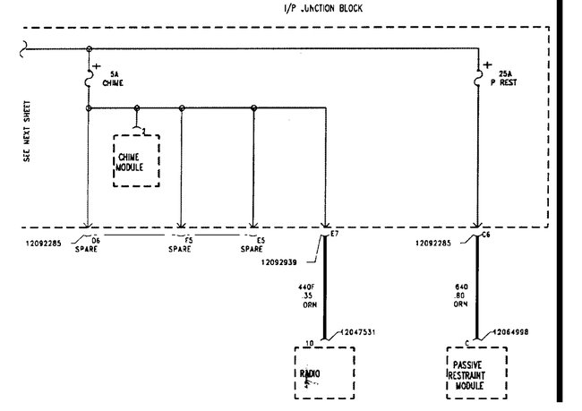
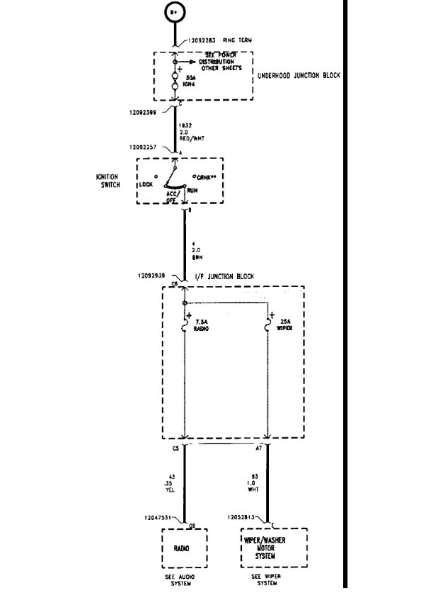
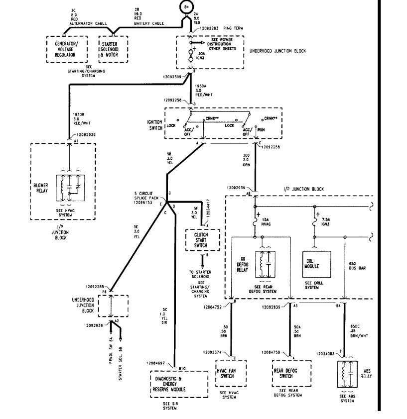
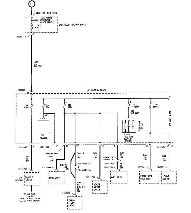
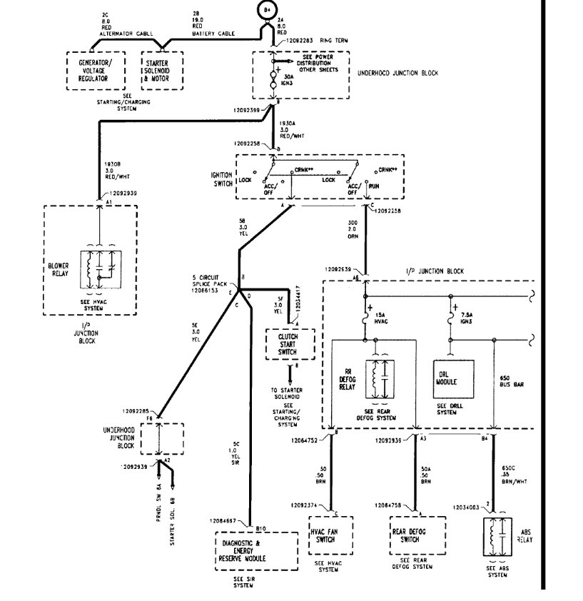
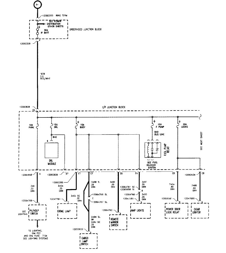
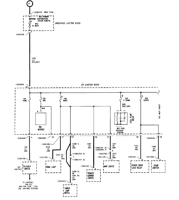
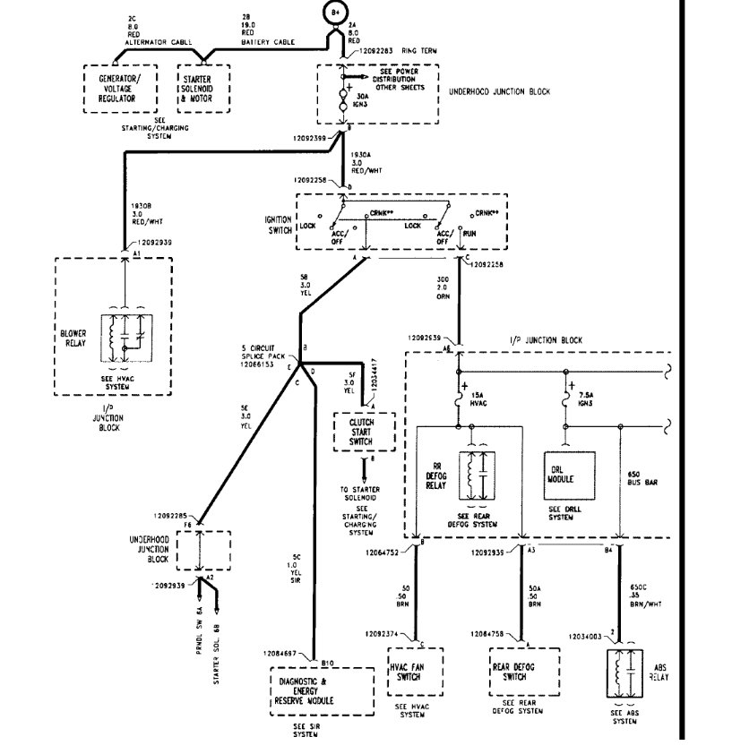
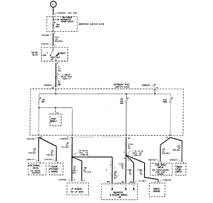
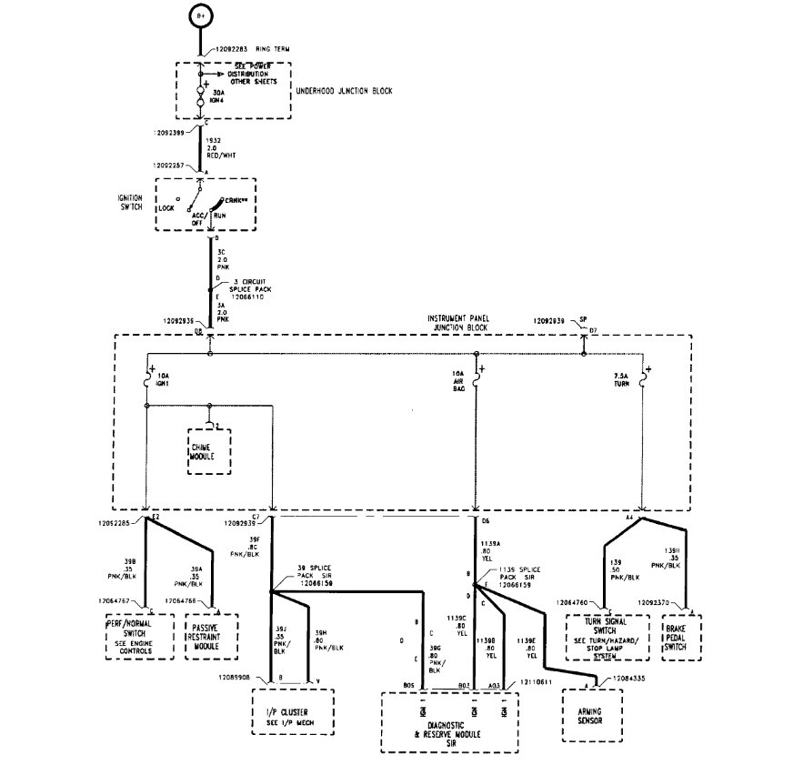
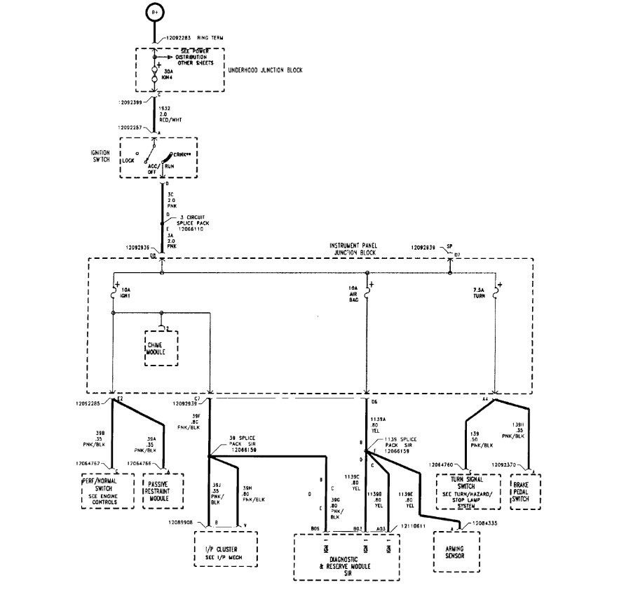
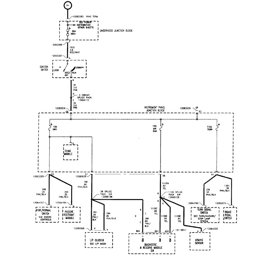
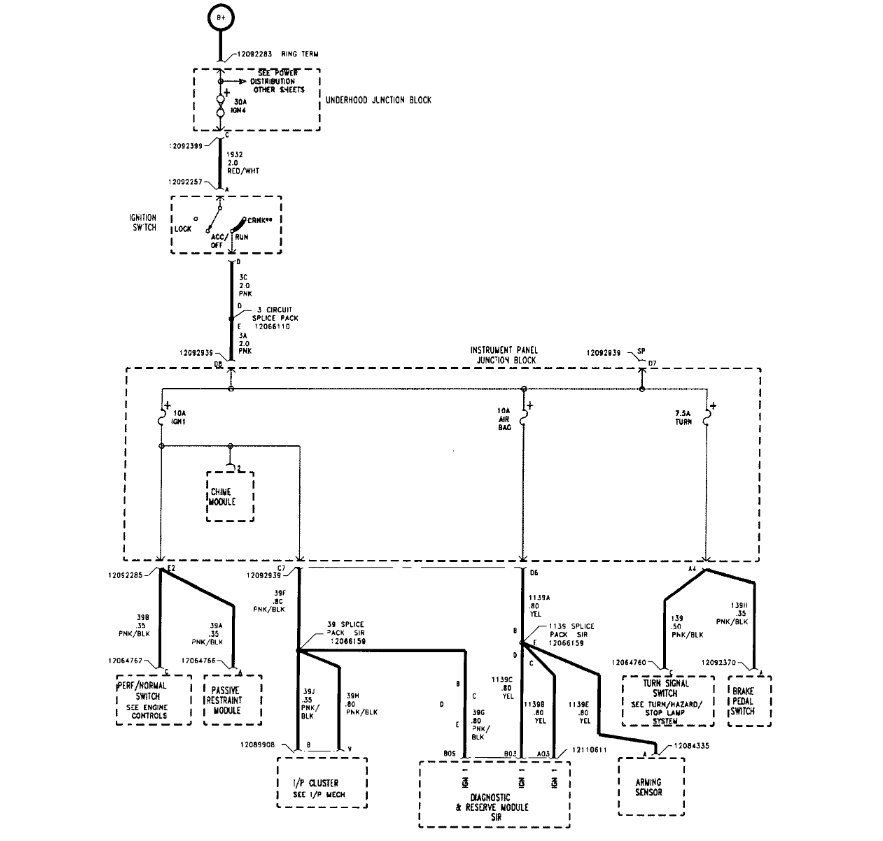
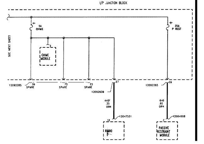
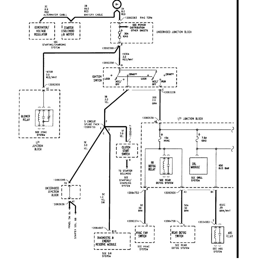
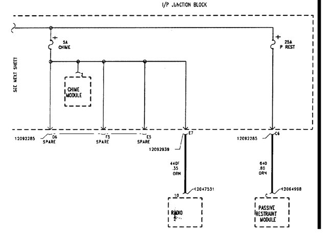
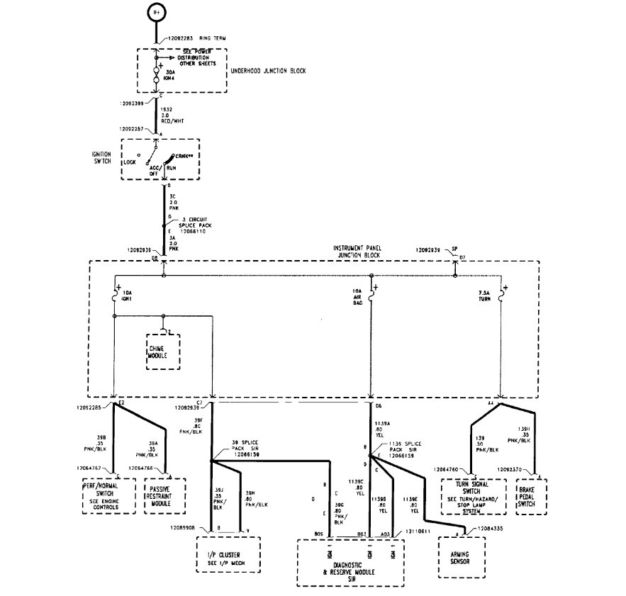
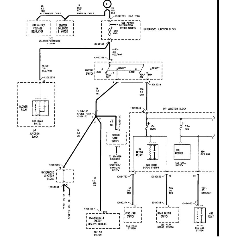
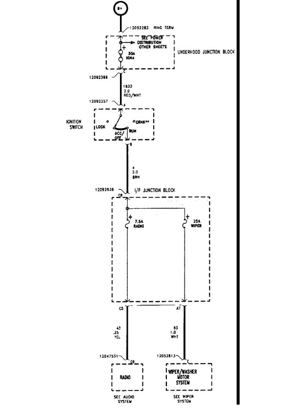
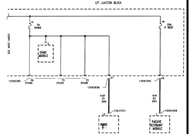
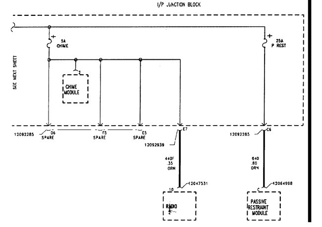
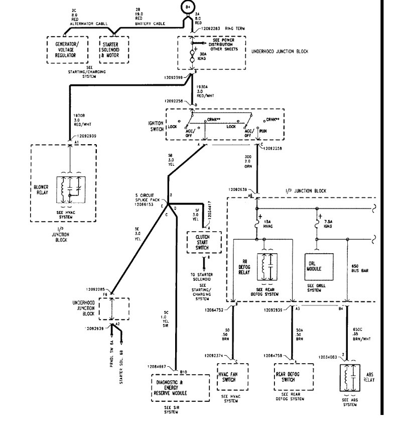
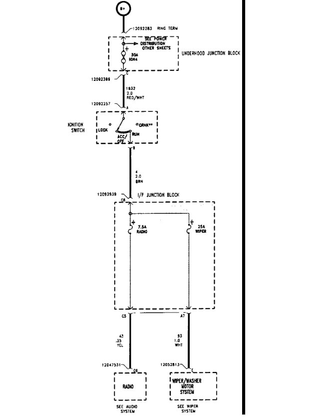
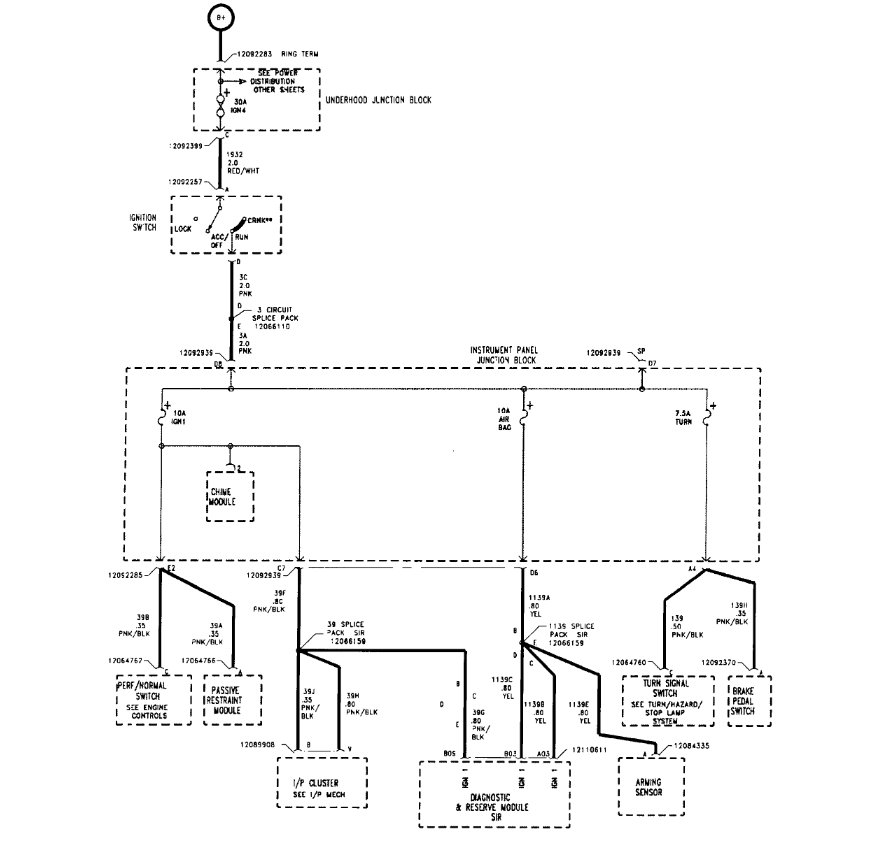
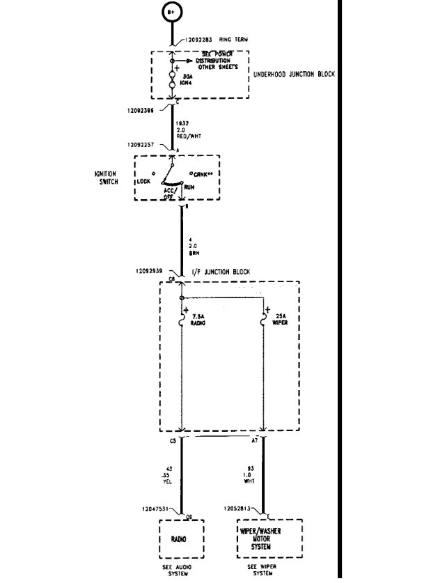
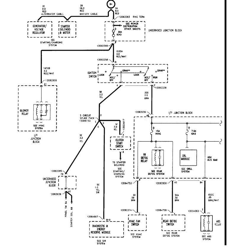
The information that you requested is in the diagrams down below. Saturn did not make an actual diagram available for your vehicle's fuse panels but I included all of the Power Distribution Wiring Diagrams so you can get specific circuits fuses and numbers from them.

Thanks,
Alex
2CarPros
Was this
answer
helpful?
Yes
No
+1
Saturday, August 29th, 2020 AT 1:07 PM (Merged)
Tiny
TIGER STYLE1
  • MEMBER
  • 1 POST
  • 1994 SATURN SC1
  • 1.9L
  • 4 CYL
  • 2WD
  • AUTOMATIC
  • 300,000 MILES
Okay, so I had a psycho cut all of my wires on the l.P. Fuse box. So I was hoping that somebody would have the wire diagram for what wire goes to what.
Was this
answer
helpful?
Yes
No
Saturday, August 29th, 2020 AT 1:07 PM (Merged)
Tiny
KEN L
  • MASTER CERTIFIED MECHANIC
  • 55,260 POSTS
Psycho, my favorite. Here is the wring diagrams and a guide to help you check your work:

https://www.2carpros.com/articles/how-to-check-wiring

Check out the diagrams (below). Please let us know if you need anything else to get the problem fixed.
Was this
answer
helpful?
Yes
No
Saturday, August 29th, 2020 AT 1:07 PM (Merged)

Please login or register to post a reply.