Running lights replacement issue?

Tiny
DUSTIN37888
  • MEMBER
  • 2020 TOYOTA TACOMA
  • 3.5L
  • 6 CYL
  • 4WD
  • AUTOMATIC
  • 76,000 MILES
I had to change my taillights due to an accident where they were busted out. I upgraded to new LED lights to have better visibility after dark when in reverse.
I initially bought the set online via Amazon through a company down south, after I installed the first set, I noticed they wasn't working right, contacted the company and they sent another set free. This happened two more times also. I've had two people look at the lights now and no solution.
The rear brake and turn signal lights work perfectly but there is no current going to the "running lights" other than the third brake light which I keep on just for other drivers' visibility of me. Talked to a repair tech and was told to just upgrade the fuses, did that. All new fuses have been installed. What should have been a simple install has become a nightmare so far and I'm out of options without taking it directly to a dealership, which would cost hundreds just to diagnose and then probably triple to fix. I appreciate any and all help.
Thank you,
Dustin H
Friday, October 28th, 2022 AT 5:55 AM

5 Replies

Tiny
AL514
  • MECHANIC
  • 5,590 POSTS
Hello, so are only the rear tail marker lamps working? Looking at the wiring diagrams, there are two rear marker lamps per side, and the License plate lamps are on the same circuit. Are those working? And with this change over, did you purchase a kit that came with resistors for the replacement LEDs? And do the front marker (Parking) lamps work okay? I see an option for your vehicle where it can come with front led parking and turn bulbs. Or just regular bulbs which are all on the same circuit.
As for the fuse change over, I assume they told you to change the Tail Fuse 7.5amp? And my last question, do you have voltage at the rear marker bulb socket?
Some of these changeovers can be tricky when going to LEDs, since they need a current limiting resistor in most cases, or the 12-volts on that circuit will burn out the led the first second you turn them on.

https://www.2carpros.com/articles/how-to-use-a-voltmeter
Was this
answer
helpful?
Yes
No
+1
Friday, October 28th, 2022 AT 9:14 AM
Tiny
DUSTIN37888
  • MEMBER
  • 3 POSTS
Thank you for responding quickly.
No, the license plate lights are not working, those were working fine prior to this change. I was unaware that I needed to purchase a resistor kit, as I talked to the salesman with the company prior to buying he didn't mention regarding this.
Yes, all the front lights are working perfectly, including DRL, as I have installed after-market fog lights.
The rear bulb socket has no voltage at all coming to it.
Below are the lights that I bought for $125/set Kojem LED Taillight Compatible with 2016-2022 Toyota Tacoma Brake Lamp Black Housing Smoke Lens Pair.
https://www.amazon.com/dp/B09MH4LKQF?psc=1&ref=ppx_yo2ov_dt_b_product_details
Was this
answer
helpful?
Yes
No
Friday, October 28th, 2022 AT 10:56 AM
Tiny
AL514
  • MECHANIC
  • 5,590 POSTS
It depends on if they have the resistors possibly built into the unit. So, what happened with the first two sets, did they work then stop working, or have you had no lights working back there since the crash? Because the front Marker lights are on the same fuse and circuit as the rear taillights, so if the fronts are working, then there has to be a wiring issue. This is the problem with crashes, it's hard to tell exactly what may have gotten damaged. I will look through the OEM diagrams and see if there are any connectors you can check in between the front and rear. But a little more detail about what happened with the 1st and 2nd attempt to get the rear taillights going will help.

And the Reverse lights are functioning, okay?
Was this
answer
helpful?
Yes
No
+1
Friday, October 28th, 2022 AT 11:06 AM
Tiny
DUSTIN37888
  • MEMBER
  • 3 POSTS
I have read a couple of articles relating to this and I think the lights do not have resistor built in due to me having an issue of hyper flashing. Which I know how to fix that now since you mentioned earlier.
Basically, what happened was the lights was busted out due to another vehicle backing into me. Yes, they worked perfectly prior to this change over to LED.
A mechanic relative attempted to change the polarities of the lights to see if they were malfunctioning from the factory, but it didn't change anything.
The reason I'm trying to fix this myself is that if I were to take it to a dealership, it would be placed on the truck's history record. I didn't report the accident as cash was exchanged to fix it.
I appreciate your help very much.
Was this
answer
helpful?
Yes
No
Friday, October 28th, 2022 AT 11:18 AM
Tiny
AL514
  • MECHANIC
  • 5,590 POSTS
Okay, I'm not worried about the accident part, we're here to get it fixed, that's all. When you say he changed the polarity, did he do this with the LED lights? Possibly switch power to the ground side of the LEDs? Because LEDs are diodes, (light emitting diodes), and a diode will only allow current to flow in one direction. So, reversing the polarity would do nothing, especially since your taillights were working before the changeover. I was reading through the info from the link you posted, I would go through and recheck all the fuses. There was a warning about disconnecting the battery before trying to install this set for whatever reason.
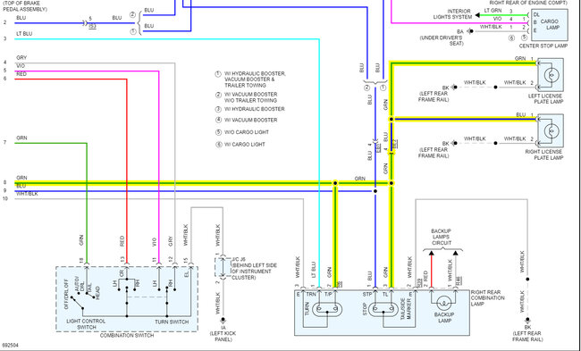
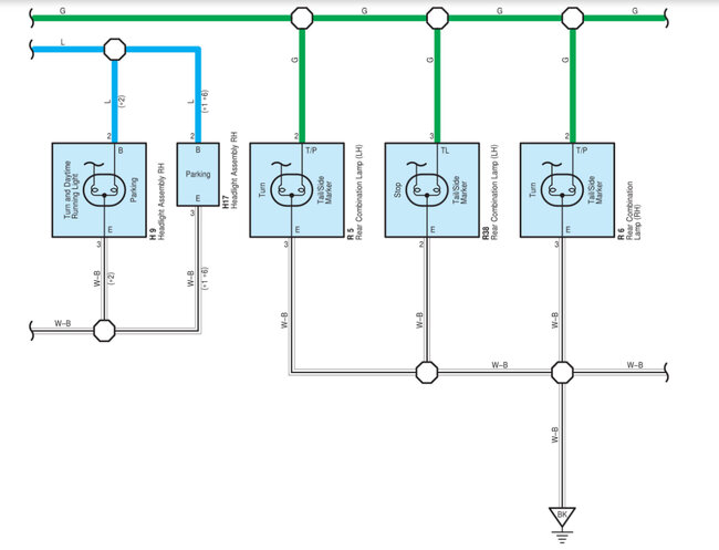
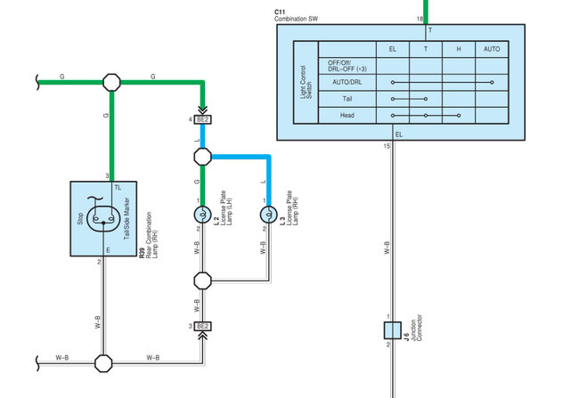
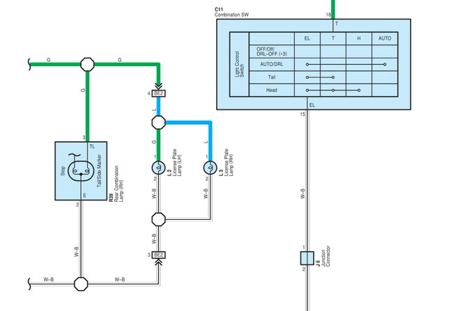
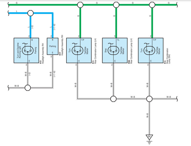
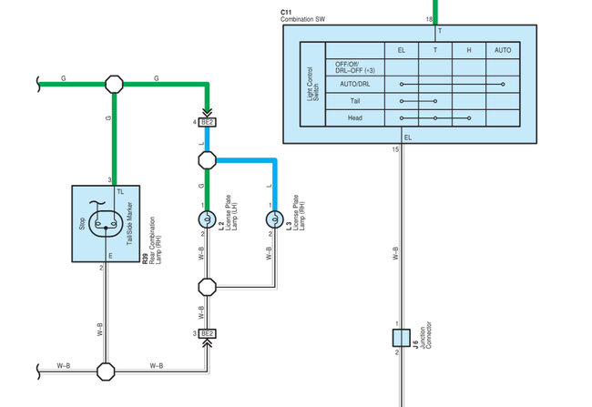
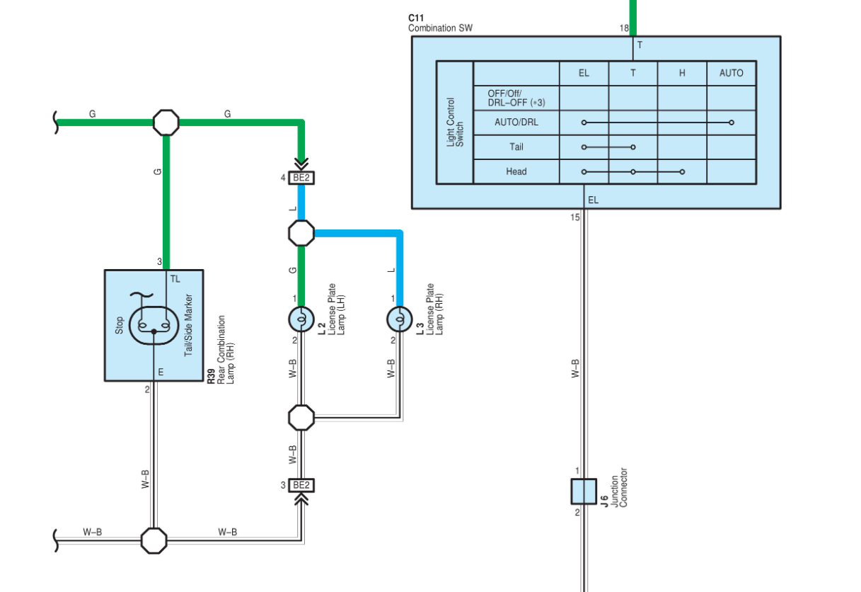
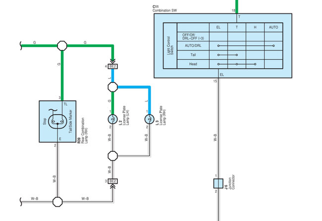
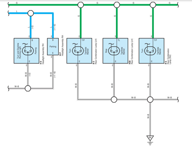
Below I'm posting the OEM diagrams and I only see one connector between the front marker lights and the rear taillights, and I think they even may have it labelled wrong. In the 1st diagram, the connector labelled EB1, there's no eb1 connector, so it has to be BE1 which is in the second diagram, pin 10 of that connector (third diagram, green wire) is the feed to diagrams 4 and 5 (green wire) which is your tail and license plate lamps.
Since the power for everything, front markers, parking lights and all the rear marker lights goes through the Tail Relay to that 7.5amp Tail fuse and then branches off and the only connector is that Eb (Be1), I would go to that connector and see if there is power there on pin 10. If not, you'll have to start going through all your fuses thoroughly.
I can't see how the fronts are working unless that connector got messed with or is not making a good pin contact inside. It can't be a bad ground since your Brake lights are working.
I'm also posting the aftermarket diagrams so you can see the entire circuit. But let us know what you find.
I added the warning I found
Was this
answer
helpful?
Yes
No
+1
Friday, October 28th, 2022 AT 11:46 AM

Please login or register to post a reply.