Why does the right low beam headlight not work?

Tiny
TONISIO
  • MEMBER
  • 2018 FORD F-150
  • 3.5L
  • 6 CYL
  • 2WD
  • AUTOMATIC
  • 44,000 MILES
Passenger side headlights have no voltage at the headlight bulb connector when engine starts. Get battery voltage with engine off. Could the issue be the headlight control module? My warranty has just expired. Please advise. Thank you.
Sunday, July 24th, 2022 AT 7:07 PM

5 Replies

Tiny
KEN L
  • MASTER CERTIFIED MECHANIC
  • 55,047 POSTS
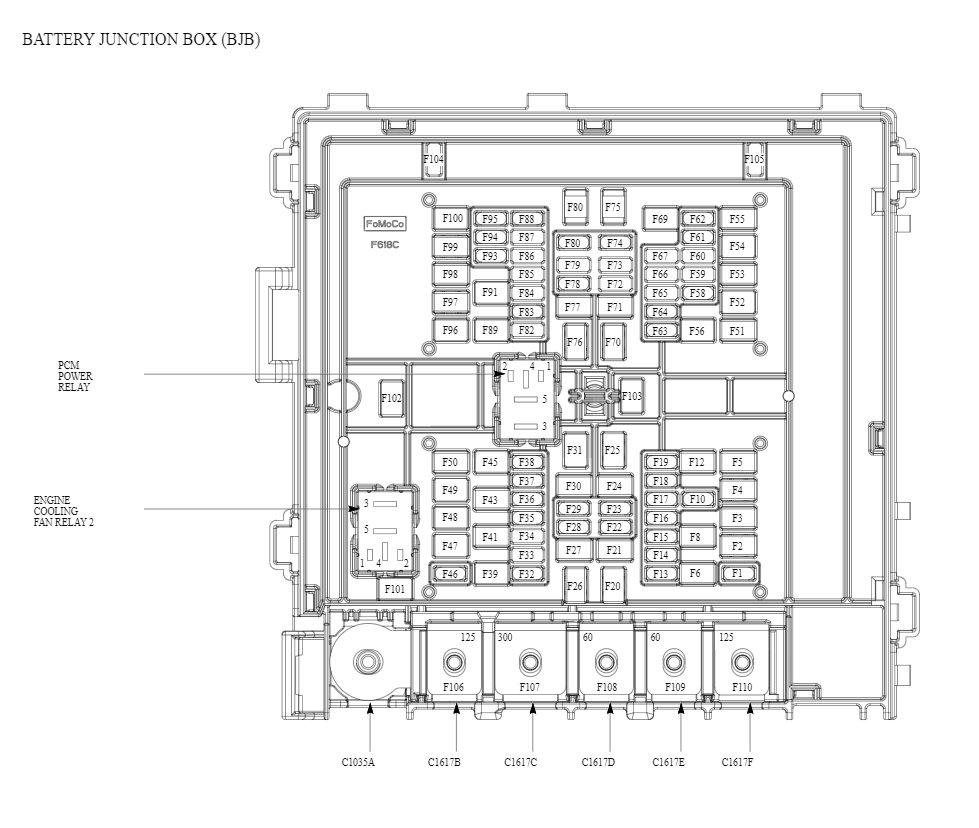
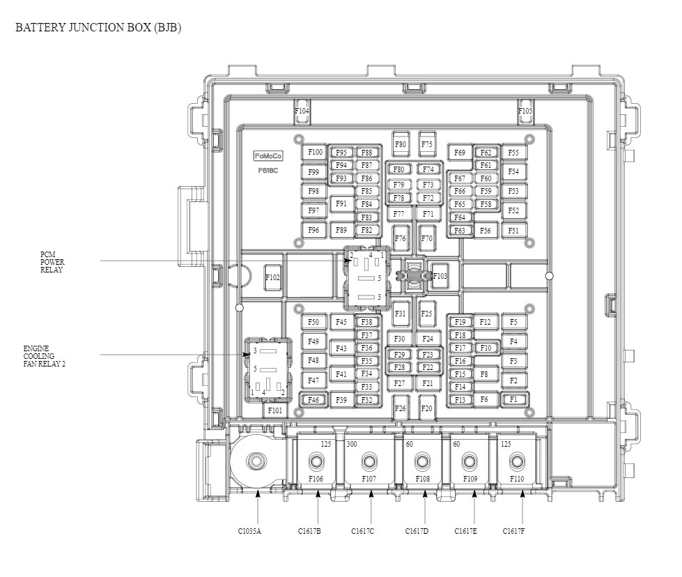
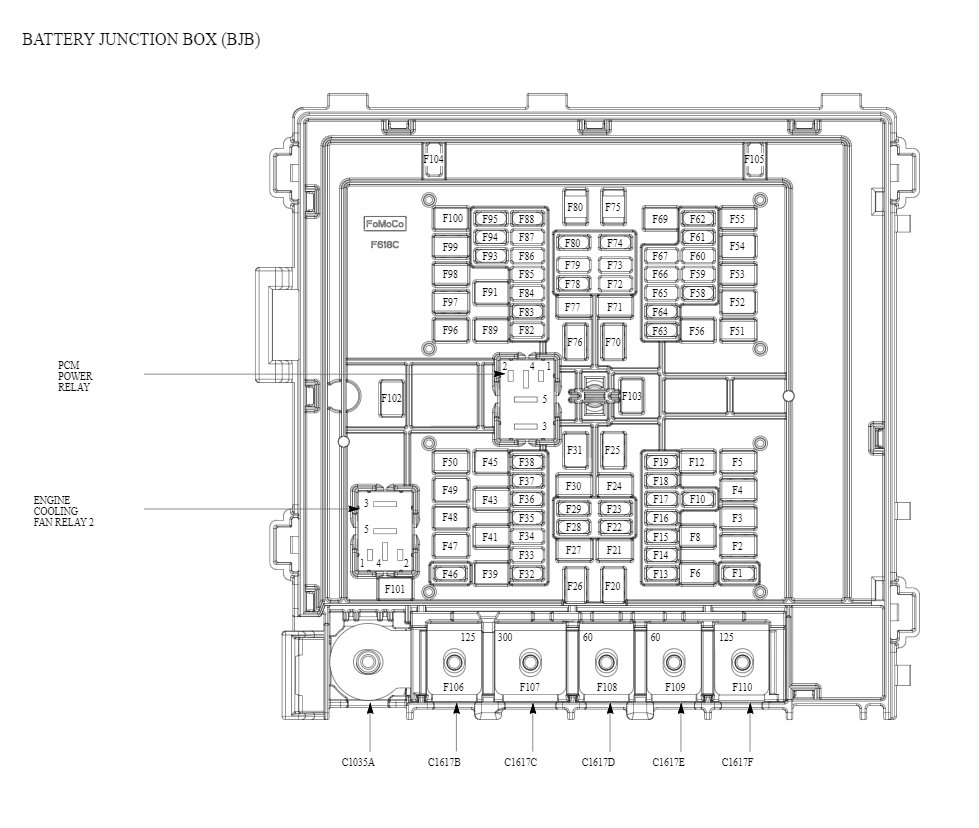
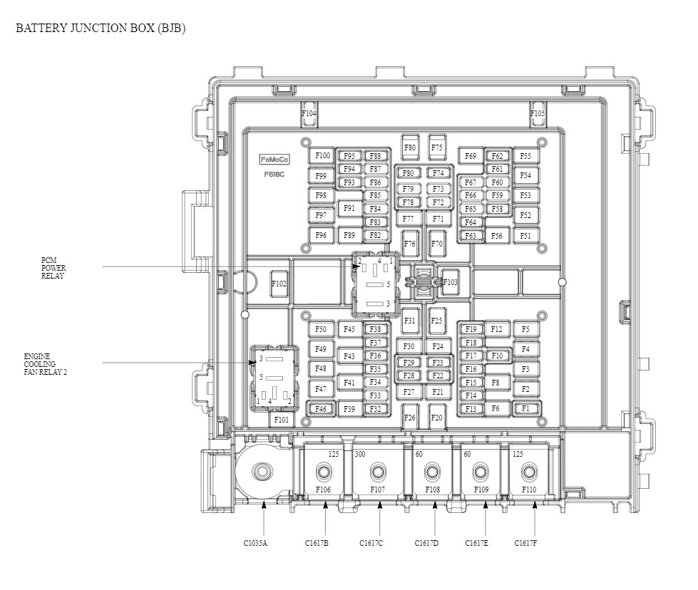
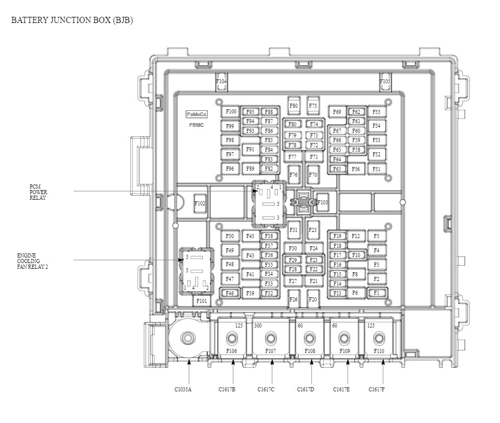
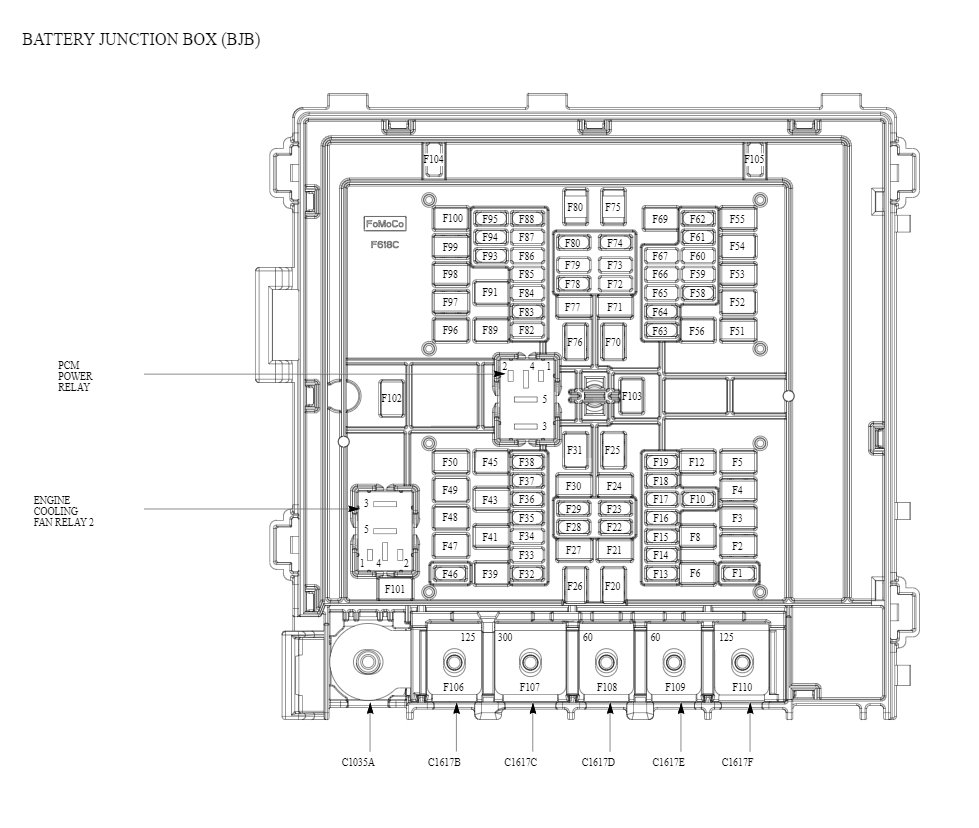
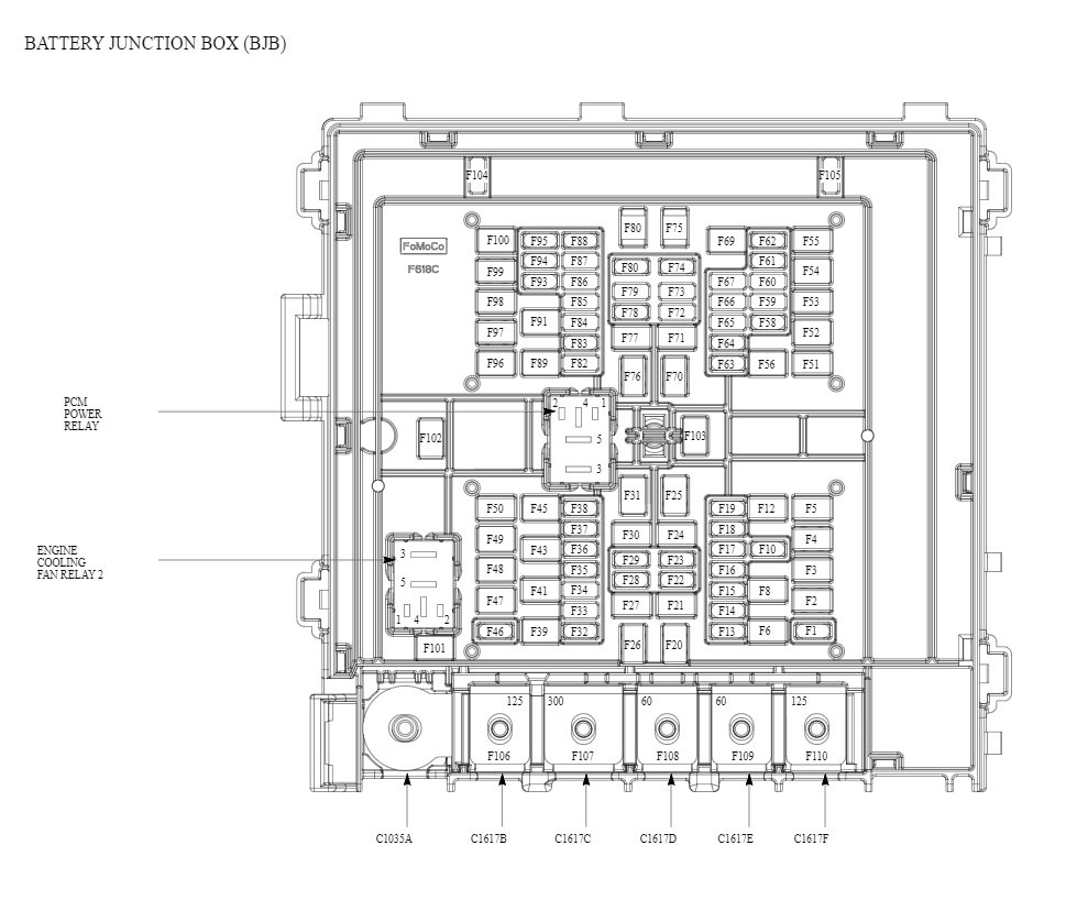
Let's check the fuses first, here is a guide to help you and the fuse (f20, f13 in the BCM lower right kick panel - #f76, f15, f61, f95 and f25 in the under-hood panel - locations in the diagrams below, this guide can help you as well.

https://www.2carpros.com/articles/how-to-check-a-car-fuse

Also, I have included the headlight wiring diagrams so you can see how the system works. If everything is okay, I would say the BCM is out but to be sure we can do a CAN scan, you can get a CAN scanner from Amazon for about $30.00. here is a video to show you how:

https://youtu.be/u-4syLc-ifQ

Here is a scanner link:

https://amzn.to/3o41KcZ

I have included the BCM replacement instructions in case this is the problem. Check out the diagrams (below). Let us know what happens and please upload pictures or videos of the problem.
Was this
answer
helpful?
Yes
No
Monday, July 25th, 2022 AT 10:38 AM
Tiny
TONISIO
  • MEMBER
  • 2 POSTS
Hello Ken,

Thank you for all of the valuable information you sent me. Turns out that the LED headlights I had just upgraded to did not consume enough power for the BCM in my truck to recognize to it would remove the power from that circuit. I have to order some decoders to simulate the power consumption of regular halogens. Hopefully it will work. Thanks again.

Sincerely,
Tony
Was this
answer
helpful?
Yes
No
+1
Wednesday, July 27th, 2022 AT 9:55 AM
Tiny
KEN L
  • MASTER CERTIFIED MECHANIC
  • 55,047 POSTS
Okay, yep that will do it, there are no more regular circuits, everything is monitored and then shut down if something doesn't measure up voltage and amperage wise. Let me know if the decoder works.
Was this
answer
helpful?
Yes
No
+1
Thursday, July 28th, 2022 AT 9:54 AM
Tiny
TONISIO
  • MEMBER
  • 2 POSTS
Hello Ken, Just installed the canbus decoders yesterday. Everything works fine now, issue fixed. Thank you for your assistance.
Was this
answer
helpful?
Yes
No
Thursday, August 4th, 2022 AT 8:40 AM
Tiny
KEN L
  • MASTER CERTIFIED MECHANIC
  • 55,047 POSTS
Glad you could get it fixed. Please use 2CarPros anytime we are here to help.
Was this
answer
helpful?
Yes
No
Thursday, August 4th, 2022 AT 6:45 PM

Please login or register to post a reply.