Tuesday, May 22nd, 2018 AT 9:56 AM
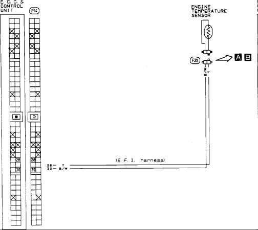
Runs really good lots of power until one half mile, then not enough power to move on flat land. Has a code 13 "cylinder head temperature sensor". Says in the book behind timing belt cover. It does not exist.








