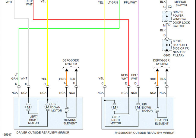
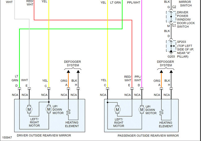
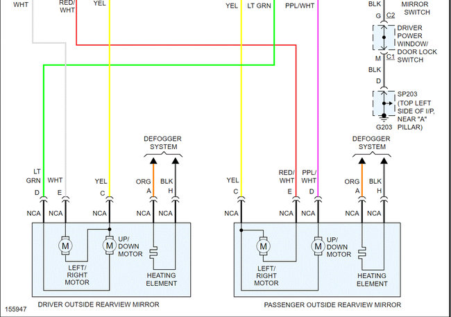
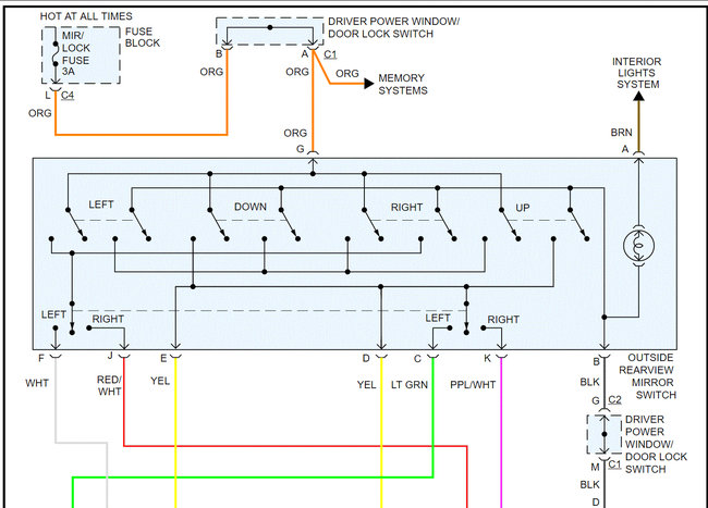
Everything works, well sort of. I am now trying to figure out the power mirror switch and have hit a bit of trouble. I used the donor harness from a four door 2002 Silverado and purchased the factory switches for the two door since I have the standard cab.
The issue seems to be the the wire and switch may not be the same between the 2 door power mirror switch and 4 door harness. I removed the green and purple wires that go to the rear windows. Leaving the other wires in the same positions.
I can find the 4 door switch pinouts which match mine but not the 2 door so my questions is, are they different? And if so does anyone have the pinout for the 2 door?
If not I will strip the wires to the mirrors and bypass the switch since my power windows and door locks work.
Tuesday, July 6th, 2021 AT 1:57 AM


