Tuesday, January 9th, 2024 AT 2:16 PM
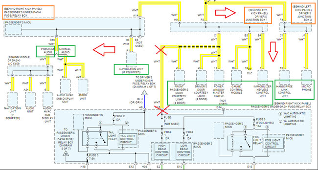
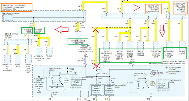
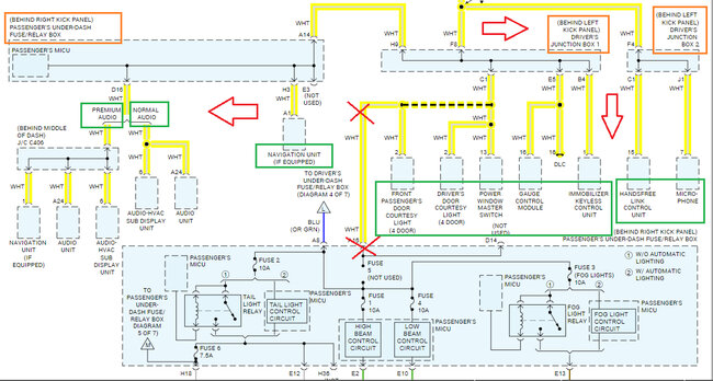
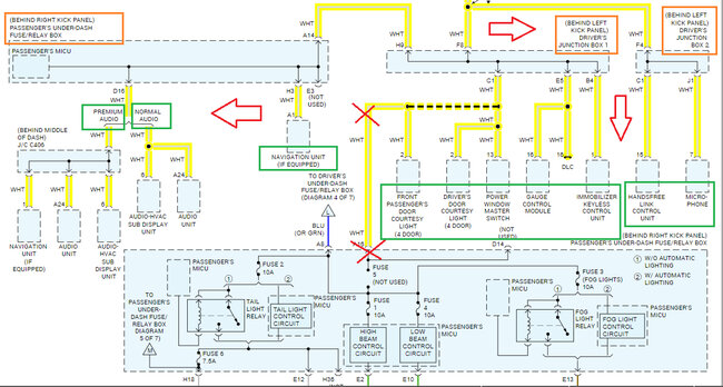
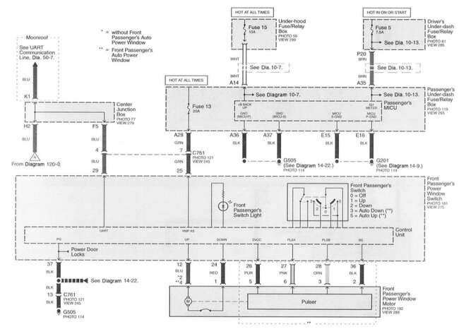
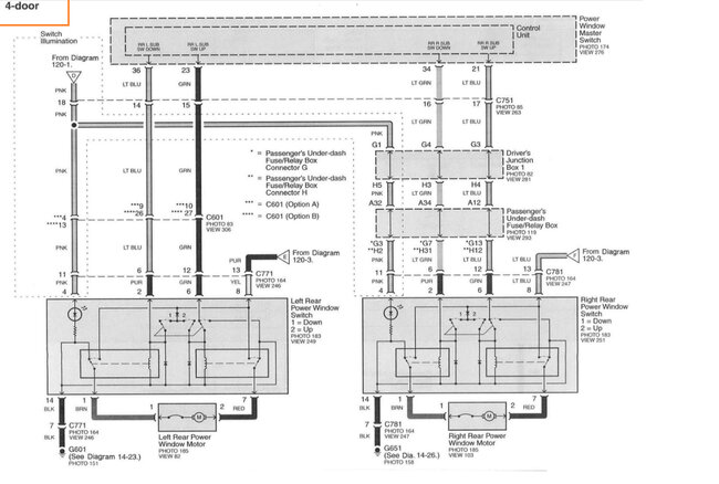
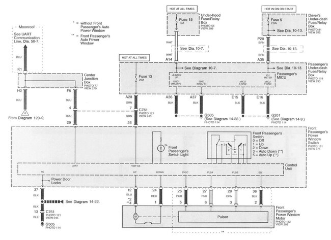
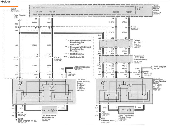
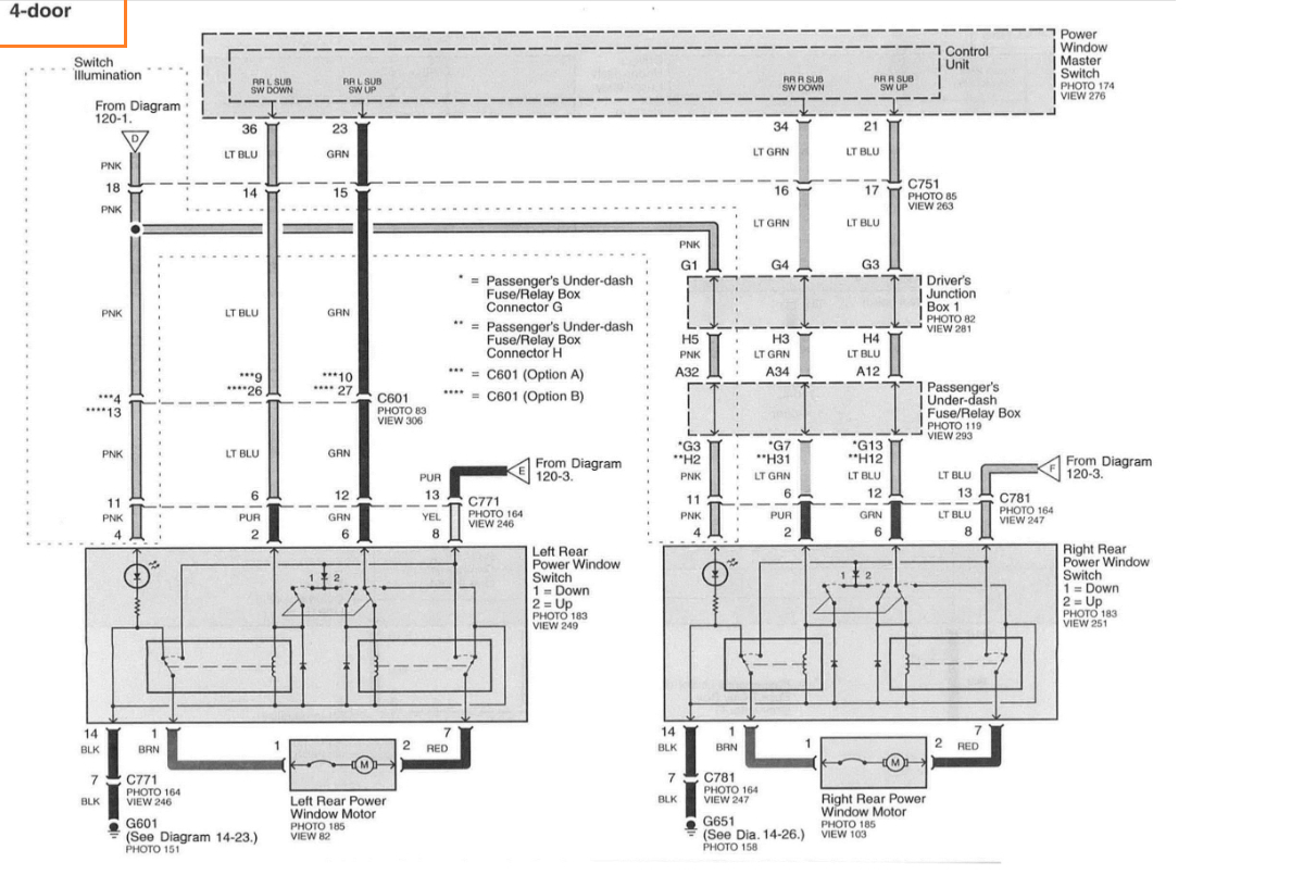
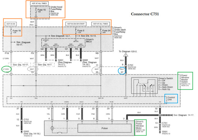
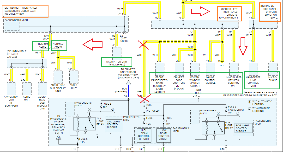
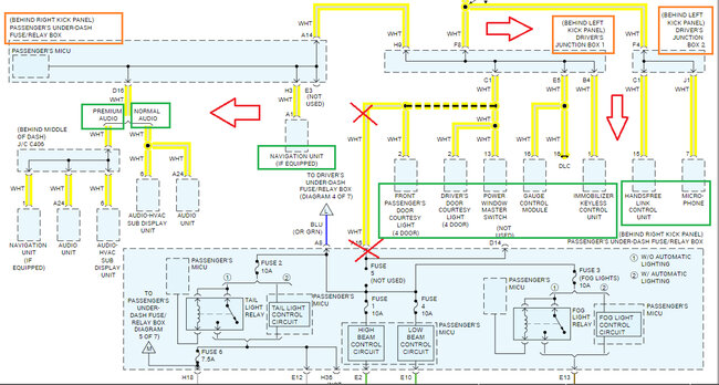
I've determined I have a parasitic draw in the system somewhere. When setting the multimeter to 500 mA setting, the meter reads.35* (last digit fluctuates). When I unplug the #15 fuse, in the engine compartment, the reading drops to 0.04* (last digit fluctuates). It's a 10a fuse and is labeled as "Back Up". I tried leaving that fuse in and pulling all the other fuses inside the car, on both panels, but nothing changed. Is there something else on that #15 circuit that I'm missing, or not checking?







