Shut off while driving, no spark going to the spark plugs?

Tiny
CHRIS BIONDELLO
  • MEMBER
  • 1985 TOYOTA TERCEL
  • 1.3L
  • 4 CYL
  • 2WD
  • MANUAL
  • 143,000 MILES
Shut off while driving, tested for spark and no spark at any of the four plugs. Plugs are good and plug wires distributor rotor and cap are fairly new, new battery. Fuses are all good, I have years of mechanic experience I just can’t find a good or free ignition wiring schematic so I can trace the problem down to where it’s failing.
Thanks for any help,
Chris
Sunday, January 15th, 2023 AT 2:27 PM

1 Reply

Tiny
JACOBANDNICKOLAS
  • MECHANIC
  • 110,194 POSTS
Hi,

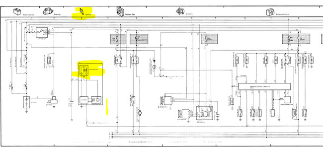
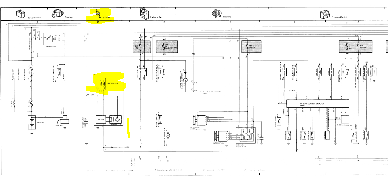
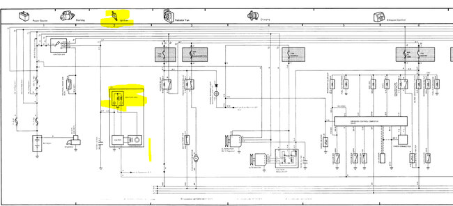
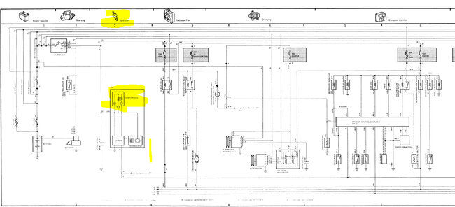
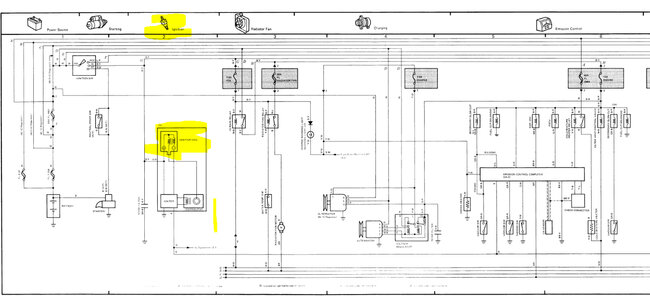
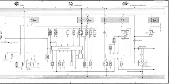
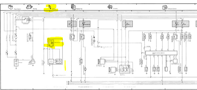
Chances are the distributor is the cause. On these models, the igniter assembly and the ignition coil have been combined into the distributor to form an integral assembly. The fully integrated assembly, which mounts an open type ignition coil in the distributor cap, is referred to as IIA ignition. Are you certain the coil is good?

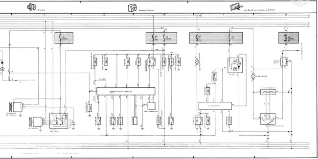
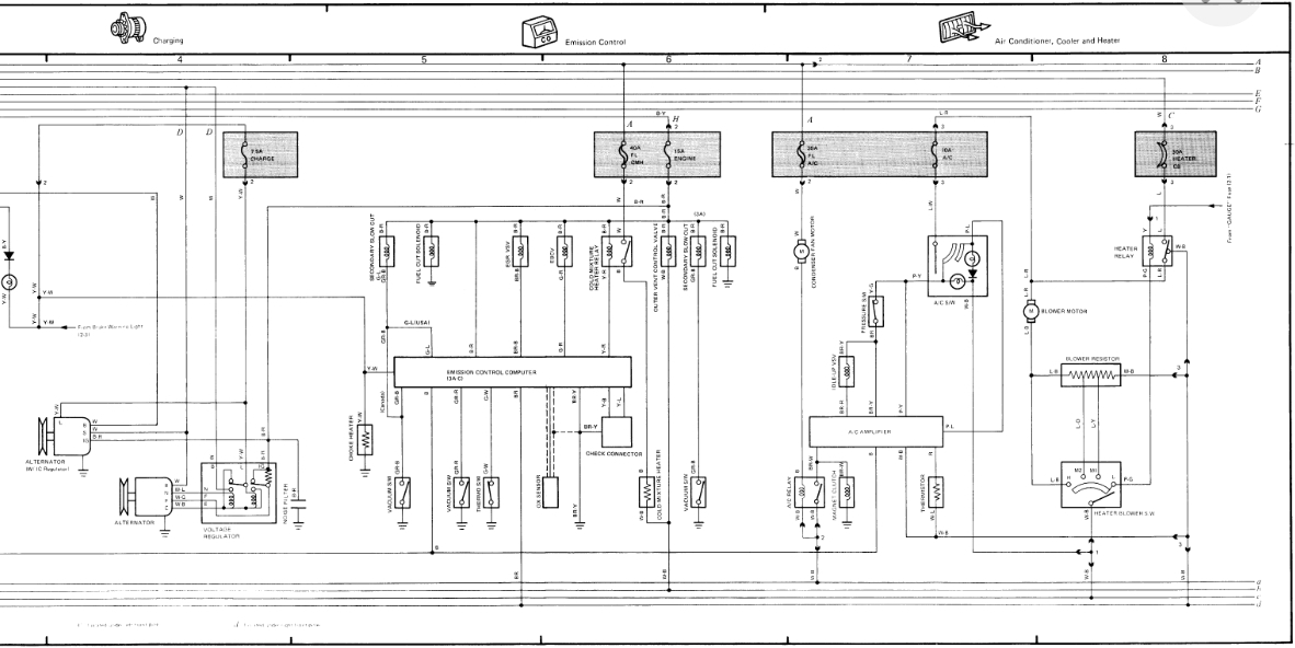
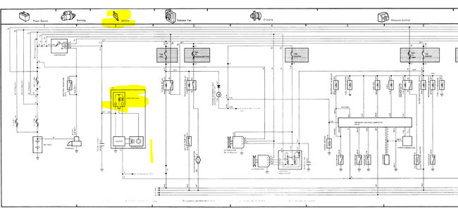
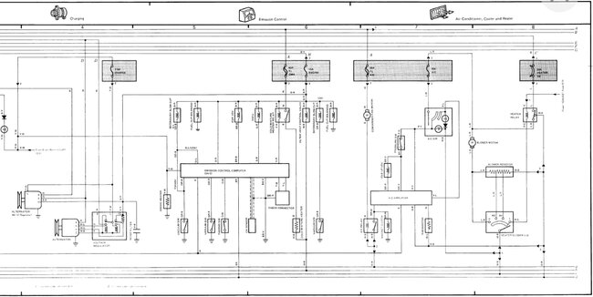
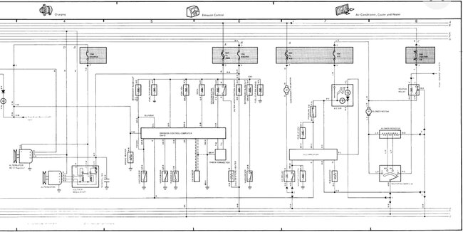
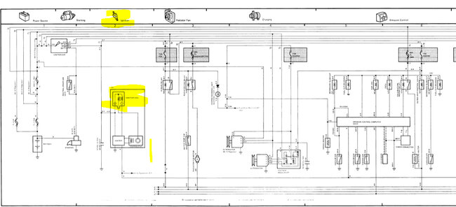
As far as wiring schematics, I was able to find one OEM print that includes the ignition. The page was too wide, so to make it readable, I cut it in half and overlapped them so you can follow from one to the next,

Take a look and let me know if it helps.

Take care,

Joe

See pics below. Also, there is a pick-up coil (if I recall correctly) in the distributor that may have failed as well.
Was this
answer
helpful?
Yes
No
Sunday, January 15th, 2023 AT 8:35 PM

Please login or register to post a reply.