No fuel

Tiny
NOFUEL
  • MEMBER
  • 1993 BUICK CENTURY
  • 3.3L
  • 6 CYL
  • 101 MILES
Started out trying to cure a "miss" rough idle, thought a tuneup would do the trick, but now it will not run at all.
I changed the coils, TPS and spark plugs, it ran long enough to get me stranded five miles from home during a test drive.
Upon further inspection I tried the fuel filter (they gave me the wrong one) no 12" hose attached to the new one (old filter has the hose attached).
Friday, April 27th, 2018 AT 8:18 AM

33 Replies

Tiny
PATENTED_REPAIR_PRO
  • MECHANIC
  • 1,853 POSTS
See if you can blow air through the old filter and hose with your mouth and if you can just put it back on.
Is the fuel pump not running? If you can spray a few shot of starting fluid into the throttle opening, that would tell you if the engine is getting a spark or not, cause if it starts and runs a few seconds at least you know it has spark.
Was this
answer
helpful?
Yes
No
Friday, April 27th, 2018 AT 8:34 AM
Tiny
NOFUEL
  • MEMBER
  • 17 POSTS
It does fire a little and then quits. Would the fuel pump quit without throwing a code?
Was this
answer
helpful?
Yes
No
Friday, April 27th, 2018 AT 8:51 AM
Tiny
PATENTED_REPAIR_PRO
  • MECHANIC
  • 1,853 POSTS
The fuel pump could not run and not set a code.
Are you saying the engine fires a little then quits, using starting fluid or no?
Can you even hear the fuel pump run for two seconds once you first turn the key to run, before you turn the key to start?
Was this
answer
helpful?
Yes
No
+1
Friday, April 27th, 2018 AT 8:57 AM
Tiny
NOFUEL
  • MEMBER
  • 17 POSTS
No, I have never been able to hear the fuel pump even when it did run. Yes, it fires when primed at the intake. I am thinking it shut down due to an injector issue maybe (the rough idle issue that started this search).
Was this
answer
helpful?
Yes
No
Friday, April 27th, 2018 AT 9:10 AM
Tiny
PATENTED_REPAIR_PRO
  • MECHANIC
  • 1,853 POSTS
Remove the gas cap, put your ear up to the tank filler hole and listen for the fuel pump to make a humming noise for about two seconds once someone else first turns the key to run.
Was this
answer
helpful?
Yes
No
Friday, April 27th, 2018 AT 9:39 AM
Tiny
NOFUEL
  • MEMBER
  • 17 POSTS
Sorry for the slow replies guys (i drive a rig now a days can only reply when stopped loading). I will listen for a sound when I get home.
After reading a few posts on here about problem injectors shutting down the car and knowing the history of the car how it has run since I have owned it (about two years) and my changing the coils, plugs and TPS, may (correct me if I am wrong) have triggered the other injectors to quit?
Note: before I did the tuneup it would run very well (with the "miss") never stall when hitting the gas or anything like that), but it would randomly shut just stop while driving along (very annoying, lol). All that to say I am throwing this at you guys in an attempt at saving a little cash on parts swapping. I hope that is a bit clearer than my last posts, lol.
Was this
answer
helpful?
Yes
No
Friday, April 27th, 2018 AT 12:52 PM
Tiny
PATENTED_REPAIR_PRO
  • MECHANIC
  • 1,853 POSTS
Purchase a can of starting fluid and let me know if the engine starts up and runs for a few seconds after spraying a couple small shots of starting fluid into the throttle opening then quickly making it to turn the key to start.
If it does, or if you prefer even before the starting fluid, listen if the fuel pump runs or not.
Was this
answer
helpful?
Yes
No
Friday, April 27th, 2018 AT 1:04 PM
Tiny
NOFUEL
  • MEMBER
  • 17 POSTS
I will as soon as I am home. In a few hours. Thank you.
Was this
answer
helpful?
Yes
No
Friday, April 27th, 2018 AT 1:10 PM
Tiny
PATENTED_REPAIR_PRO
  • MECHANIC
  • 1,853 POSTS
I got an email you replied, but I do not see anything posted that when you said, "I will as soon as I am home. In a few hours."
Did you reply after that?
Was this
answer
helpful?
Yes
No
Saturday, April 28th, 2018 AT 7:36 AM
Tiny
NOFUEL
  • MEMBER
  • 17 POSTS
Yes, I will check it out. Sorry must not have been sent.
Was this
answer
helpful?
Yes
No
Saturday, April 28th, 2018 AT 8:03 AM
Tiny
NOFUEL
  • MEMBER
  • 17 POSTS
In answer to your question, yes, it does start on the prime in the intake, starting fluid, but no fuel pump code. Does this mean my fuel pumps fine? A relay maybe or fuse?
Was this
answer
helpful?
Yes
No
Saturday, April 28th, 2018 AT 8:11 AM
Tiny
PATENTED_REPAIR_PRO
  • MECHANIC
  • 1,853 POSTS
A fuel pump that does not run will probably not even set a code. Did you retrieve any other codes at all?
Can you listen if the fuel pump runs or not? If it does run, perhaps the fuel injectors are either not powered up or not pulsing, so check the fuel injector fuse/s to start off with.
Was this
answer
helpful?
Yes
No
Saturday, April 28th, 2018 AT 8:32 AM
Tiny
NOFUEL
  • MEMBER
  • 17 POSTS
Well, I first drained the battery trying to restart it the day it left me stranded. So once it got home on a hook I swapped the battery out for a new one that I had already planned on installing in the car. So I most likely reset any codes there may have been it first gave me the three 12's to say the diagnostic was working properly. Then a few seconds later I got a 28, and a 29, 3ed and fourth gear codes (which I already was aware of but no fuel pump code).
I live out in country alone so hard to listen to the for the pump especially while the bells and whistles are going off upon turning the key, lol. All those years running a 1"impact gun with out hearing protection I guess. I will check the injector power, fuses. I just want to be sure before I unnecessarily change the fuel pump (I will be doing it in my backyard) so a bit of a pain.
Was this
answer
helpful?
Yes
No
Saturday, April 28th, 2018 AT 8:59 AM
Tiny
PATENTED_REPAIR_PRO
  • MECHANIC
  • 1,853 POSTS
Well, you could always check to see if there is fuel pressure out not, if you have a fuel system pressure tester.
Was this
answer
helpful?
Yes
No
Saturday, April 28th, 2018 AT 9:39 AM
Tiny
NOFUEL
  • MEMBER
  • 17 POSTS
I do not?
Was this
answer
helpful?
Yes
No
Saturday, April 28th, 2018 AT 9:40 AM
Tiny
NOFUEL
  • MEMBER
  • 17 POSTS
I also crank it over with the line off of the filter and nothing.
Was this
answer
helpful?
Yes
No
Saturday, April 28th, 2018 AT 9:41 AM
Tiny
PATENTED_REPAIR_PRO
  • MECHANIC
  • 1,853 POSTS
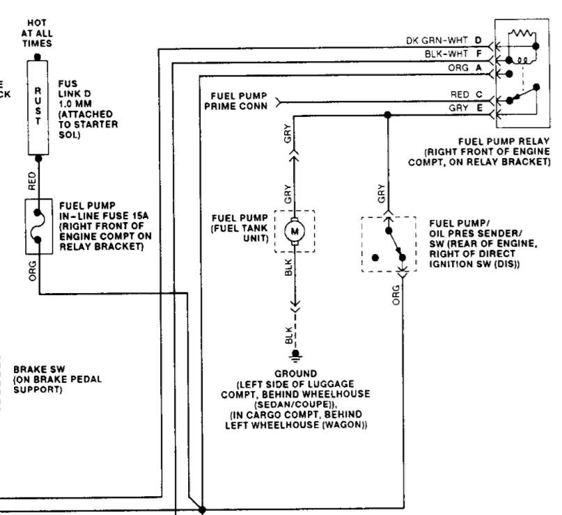
Yeah, that just about proves the fuel pump is not running. Check the fuel pump fuse and if it is okay, try a new fuel pump relay or swap one in if you have another of the same type.
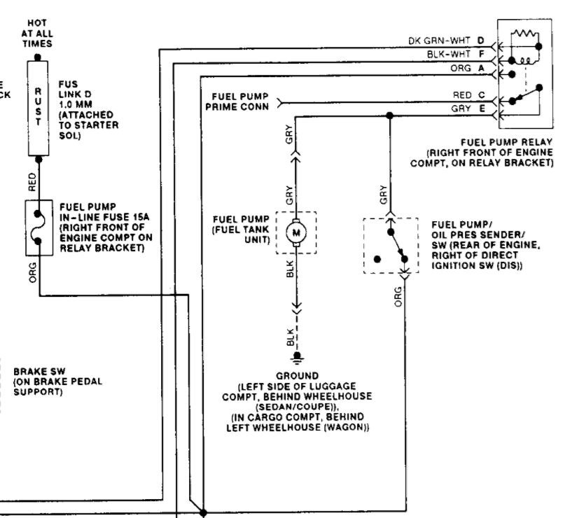
Both the fuse and the relay are on the relay bracket shown here.
I do see this has an oil pressure switch override, which means after cranking the engine over enough that the oil pressure builds up 4 psi, it should override the switch and power the fuel pump. If that wire is hot going to the fuel pump but it still does not run, check the fuel pump ground before condemning the fuel pump itself and begin draining the tank to replace the fuel pump.
Was this
answer
helpful?
Yes
No
+1
Saturday, April 28th, 2018 AT 9:55 AM
Tiny
NOFUEL
  • MEMBER
  • 17 POSTS
I did read in one the other posts on here about a wire that I can connect to the positive battery post with a fused jumper wire to test the pump without all that other noise from turning the key. Thoughts on this?
Was this
answer
helpful?
Yes
No
Saturday, April 28th, 2018 AT 4:39 PM
Tiny
PATENTED_REPAIR_PRO
  • MECHANIC
  • 1,853 POSTS
I see a prime connector wire, a red wire coming off the fuel pump relay that you can jump twelve volts to in order to see if the fuel pump will run.
Was this
answer
helpful?
Yes
No
Saturday, April 28th, 2018 AT 4:47 PM
Tiny
NOFUEL
  • MEMBER
  • 17 POSTS
I checked the fuse, it is fine 15 amp. I do not have another relay to test yet but will get one ASAP to try. Will Also try the prime wire soon as this deluge quits, lol. To be continued. :) At least were narrowing it down.
Was this
answer
helpful?
Yes
No
Saturday, April 28th, 2018 AT 4:54 PM

Please login or register to post a reply.