Neutral safety switch connector

Tiny
FOSTER352
  • MEMBER
  • 2004 CHEVROLET MALIBU
  • 3.5L
  • V6
  • 2WD
  • AUTOMATIC
  • 250,000 MILES
Friend has a 2004 chevy malibu ls 3.5l 4t40e transmission. She just replaced the neutral safety switch and the connector. Its a 12 pin connector but there is only 7 wires coming from the harness. Her ex wired up the connector wrong. And wouldnt start with her key have to use a trigger to the starter now. Need help with where each wire goes on the connector so it can start with the keys again. Searched everywhere online and cant find much info with the transmission thats in it
wire colors
purple/white strip
pink
yellow
light green
darker green
black/white strip
orange/white strip


thank you
Foster
Friday, November 28th, 2025 AT 7:23 PM

1 Reply

Tiny
STEVE W.
  • MECHANIC
  • 15,702 POSTS
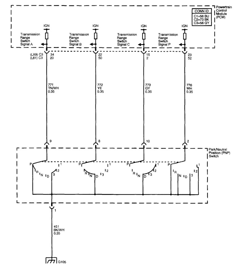
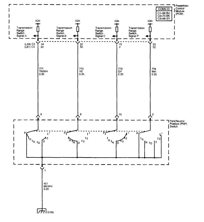
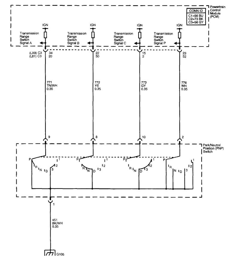
Looking at OE and aftermarket wiring colors it gets a bit interesting because even the OE ones have differences in wire colors and terminal locations between themselves and some of the wire colors you have are different as well. For instance the starting circuit which relies on the switch outputs of park and neutral show a Purple/white wire on pin one, however the shift control diagram shows that as a Black/white ground wire on pin one. Then both versions have wire colors that you don't have listed. Did the ex splice the wires farther up the harness? Maybe the colors at the connector are different because of that?
Attached are both the OE and aftermarket diagrams. Note that they don't match up and have colors you don't seem to have. The pur/wh and pink seem to be the same in both. A simple test would be to unplug the connector and add a jumper on those two, if they are correct that would allow the engine to turn over regardless of shifter location. Then go to the switch and see if pins 1 and 12 show continuity in only park and neutral. That might sort out that part of it at least. The others tell the powertrain what gear you have selected so we can sort those out as well but first we need to determine if the colors change from splicing. Check the 2 wires and see if there were splices and reply back please. OH and do not simply connect the two wires to enable starting as that will cause other problems if the car is moved while they are connected.

Purple/white stripe - Pin 1
pink - Pin 12
yellow - Pin 8
light green - Pin?
Darker green - Pin?
Black/white stripe - Pin 1 (Think this should be pin 11 as it is on the 2005)
orange/white stripe - Pin?
Was this
answer
helpful?
Yes
No
Saturday, November 29th, 2025 AT 8:22 AM

Please login or register to post a reply.