Will not start after running out of gas

Tiny
LISA MARTINEZ
  • MEMBER
  • 1990 CHEVROLET BERETTA
  • 3.0L
  • V6
  • 109 MILES
Ran it out off gas now won't start up again, then the key didn't do anything any more. Was getting no power to starter no more so put a push button. Got spark, checked fuel pump, fine.
The purple wire from starter goes to a relay. I am not sure but I think when the ignition stopped working. Maybe everything on that relay went out?How would I test to see if I am getting power to injectors?
Tuesday, September 24th, 2019 AT 10:17 AM

13 Replies

Tiny
KEN L
  • MASTER CERTIFIED MECHANIC
  • 55,488 POSTS
Hello,

Does the engine crank over (starter working?) or is it cranking over but not running? When you turn the key to the on position without cranking the engine over can you hear the fuel pump run in the tank for 5 seconds?

These guides can help us get started:

https://www.2carpros.com/articles/car-cranks-but-wont-start

and

https://www.2carpros.com/articles/starter-not-working-repair

Please run down these guides and report back.
Was this
answer
helpful?
Yes
No
Wednesday, September 25th, 2019 AT 1:15 PM
Tiny
LISA MARTINEZ
  • MEMBER
  • 23 POSTS
It cranks and cranks almost sounds like it going to start, like it needs to back fire, but don't start. Yes I can here fuel pump running when I turn the ignition to on position and I unplugged fuel hose after the filter and gas is coming out good.
Was this
answer
helpful?
Yes
No
Wednesday, September 25th, 2019 AT 8:19 PM
Tiny
LISA MARTINEZ
  • MEMBER
  • 23 POSTS
It would start every time till one day I took my kids to school and ran out of gas when I got gas it started for a few seconds and then died a couple times then the ignition wouldn't do anything since I tested for power at the starter there wasn't none so I installed a push button toggle. There are 3 big relays that all the wires go to on the firewall, I'm thinking when I bypassed ignition, that relay powers more then just my cognition?It's something telling it not to start?Tested fuel, spark plug and wire and coil.
Was this
answer
helpful?
Yes
No
Wednesday, September 25th, 2019 AT 8:26 PM
Tiny
KEN L
  • MASTER CERTIFIED MECHANIC
  • 55,488 POSTS
So is the engine cranking and not starting or not cranking over? Can you please shoot a quick video with your phone so we can see what's going on, that would be great. You can upload it here with your response.
Was this
answer
helpful?
Yes
No
+1
Thursday, September 26th, 2019 AT 10:19 AM
Tiny
LISA MARTINEZ
  • MEMBER
  • 23 POSTS
Not sure if you got video?
Was this
answer
helpful?
Yes
No
Thursday, September 26th, 2019 AT 2:23 PM
Tiny
KEN L
  • MASTER CERTIFIED MECHANIC
  • 55,488 POSTS
I dont see it? Did you upload it?
Was this
answer
helpful?
Yes
No
Friday, September 27th, 2019 AT 4:33 PM
Tiny
LISA MARTINEZ
  • MEMBER
  • 23 POSTS
I did twice.
Was this
answer
helpful?
Yes
No
Saturday, September 28th, 2019 AT 7:32 PM
Tiny
LISA MARTINEZ
  • MEMBER
  • 23 POSTS
I read code by putting paper clip in obd-1 and I got no codes.
Was this
answer
helpful?
Yes
No
Saturday, September 28th, 2019 AT 7:40 PM
Tiny
KEN L
  • MASTER CERTIFIED MECHANIC
  • 55,488 POSTS
Thank for the video. it sounds like the fuel pump has gone out (no pressure). To confirm here is a guide to help test the fuel pressure:

https://www.2carpros.com/articles/how-to-check-fuel-system-pressure-and-regulator

You can also use starting fluid to see if it will run.

Please run down this guide and report back.

Was this
answer
helpful?
Yes
No
+1
Sunday, September 29th, 2019 AT 10:21 AM
Tiny
LISA MARTINEZ
  • MEMBER
  • 23 POSTS
I am getting good fuel pressure, reading a code 12 and 22.
Was this
answer
helpful?
Yes
No
Wednesday, October 16th, 2019 AT 3:59 PM
Tiny
KEN L
  • MASTER CERTIFIED MECHANIC
  • 55,488 POSTS
Code 22 is the TPS sensor out which can cause the issue. Here is how you replace it. Check out the diagrams (below). Please let us know what you find.
Was this
answer
helpful?
Yes
No
Saturday, October 19th, 2019 AT 10:18 AM
Tiny
LISA MARTINEZ
  • MEMBER
  • 23 POSTS
Nope it's good. I have a question, if ignition went out it would tell the PCM cannot start. How to clear codes and how does it know that it has a new one or bypass?
Was this
answer
helpful?
Yes
No
Saturday, October 19th, 2019 AT 11:04 AM
Tiny
KEN L
  • MASTER CERTIFIED MECHANIC
  • 55,488 POSTS
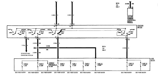
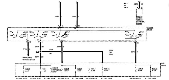
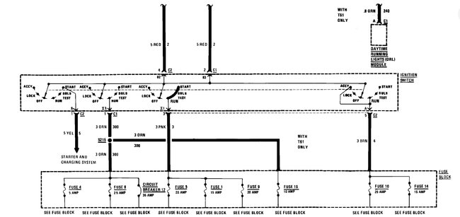
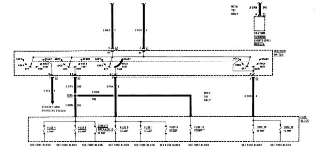
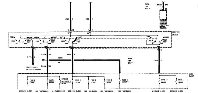
Yes if the switch went out the PCM will not get power. To be sure here is a guide and the ignition switch wiring so you can test through it. To clear the codes disconnect the battery.

https://www.2carpros.com/articles/how-to-use-a-test-light-circuit-tester

Check out the diagrams (below). Please let us know what happens.
Was this
answer
helpful?
Yes
No
Sunday, October 20th, 2019 AT 11:10 AM

Please login or register to post a reply.