Locks, trunk release, odd lights, not working properly

Tiny
CHRISAKADQ
  • MEMBER
  • 1994 CADILLAC DEVILLE
  • 4.9L
  • V8
  • AUTOMATIC
  • 165,000 MILES
Okay, here we go. I found some LED headlights for cheap, put those in, looked so awesome, I decided to do all interrupt lights. Well that blew a fuse and messed everything up. I went back to all old lights. I replaced 3 fuses, 2 circuit breakers, and 2 relays. The key fob never worked, so I bought a used one, and programmed it locks work great now with fob. My issue is the door locks, will not lock if the door is open, the driver's door will not lock with fob, but will unlock with fob and the trunk release does not work. Now I replaced trunk release today, because the old one did not work, I hooked it up to 12v battery, and nothing. I got it all hooked up, with the trunk open, I got the trunk on fob, it worked. I saw the release move. And that is the one and only time it worked. I have went through all relays, fuses, etc. Now I am stuck. Oh yes when programming fob, I assumed the wire to ground was the black wire going into lock module in trunk. But I believe I got that back on right. I put a new male non insulated on it.
Sunday, March 22nd, 2020 AT 2:57 AM

24 Replies

Tiny
ASEMASTER6371
  • MECHANIC
  • 52,796 POSTS
Good morning,

1. The door locks will not work with the door open. That is normal.

2. Is this with only the FOB or with the switches itself?

3. Did you hold the FOB button for at least 2 seconds trying to release the trunk? Also, it could be the receiver causing the issue as well.

Roy

File In Section: 9 - Accessories

Bulletin No: 43-90-24

Date: January, 1995

Subject:
Automatic Door Lock at Key Off and/or Remote Keyless Entry (RKE) System Functions Operating Incorrectly (Replace RKE Module)

Models:
1993-95 Cadillac Eldorado, Seville
1994-95 Cadillac Concours, DeVille

Condition
Owners may comment that some Remote Keyless Entry (RKE) system functions may not operate correctly.

Three conditions may occur:

1. Automatic doors lock when ignition switch is turned to the "OFF" position.

2. Trunk lid latch unlocks when it should not.

3. RKE transmitter does not activate the door locks, illuminated entry or trunk lid latch.

ImageOpen In New TabZoom/Print

Vehicles Affected

CAUSE

Condition # 1
The fuel pump currently installed on the vehicles listed above may generate electrical transients which interfere with proper operation of the Remote Keyless Entry (RKE) module. The RKE module may respond to cause one or more of the conditions stated above.

Conditions # 2 and # 3
Outside noise interference near the frequency of the RKE transmitter (key fob) to receiver (RKE module) signal may cause these conditions. Software in the RKE receiver interpreted the noise as data, allowing the possibility of condition # 2 and/or # 3 to occur. An update to the software eliminated the unwanted conditions.

CORRECTION
To repair the above conditions, replace the RKE module with the following:

RKE module (Domestic*) - P/N 16215349 (With Date Code 05 or later) RKE module (Export) P/N 16215399 (*Includes Canada)

The RKE module date code is the left-most two digits of the number on the module connector.

Follow the module replacement procedure provided in Section 9K of the 1994 Service Manual. Refer to ON-VEHICLE SERVICE paragraph.

Note:
In 1995 model year, initial production of new RKE module, P/N 16215349, did not have the updated software described above. For those vehicles, replace RKE module, P/N 16215349, with service part RKE module, P/N 16215349, having Date Code 05 or later. The VIN breakpoints for vehicles with the new RKE module but old software in the module are as follows:

1995 Concours, DeVille - 221304 to 261820 1995 Eldorado - 604176 to 612222 1995 Seville 806148 to 818910

Parts Information

Parts are currently available from GMSPO.
Was this
answer
helpful?
Yes
No
Sunday, March 22nd, 2020 AT 5:41 AM
Tiny
CHRISAKADQ
  • MEMBER
  • 13 POSTS
Hi Roy, if you get duplicate replies, I apologize. It's the door locks on all doors that don't lock or unlock the lock or It did work before. The rke module does click when fob is depressed. Yes I did depress key fob, for longer than 2 seconds. Plus when I press trunk button in car, that does not work either.
Was this
answer
helpful?
Yes
No
Sunday, March 22nd, 2020 AT 9:29 AM
Tiny
ASEMASTER6371
  • MECHANIC
  • 52,796 POSTS
It does sound like the module may be receiving the signal but not sending a signal to the BCM.

Do you have a OBD1 scan tool that can monitor the live data at the BCM?

Roy
Was this
answer
helpful?
Yes
No
Sunday, March 22nd, 2020 AT 9:33 AM
Tiny
CHRISAKADQ
  • MEMBER
  • 13 POSTS
No I don't, I bought the obd2. Then found out it was my car was 2 years too old for it. So I bought an adapter, the obd2 still didn't work. So I can't do that on the built in code reader. What about a ground wire somewhere, or the battery. That's what I have been reading on others problems.
Was this
answer
helpful?
Yes
No
Sunday, March 22nd, 2020 AT 10:22 AM
Tiny
ASEMASTER6371
  • MECHANIC
  • 52,796 POSTS
The only ground wire is the one you already replaced.

Looks to be the module from what you have posted.

Roy
Was this
answer
helpful?
Yes
No
Sunday, March 22nd, 2020 AT 10:25 AM
Tiny
CHRISAKADQ
  • MEMBER
  • 13 POSTS
Okay, I didn't replace it. Here's what happened: I had a hard time getting the wire out. I didn't know that there was a special tool. So I got frustrated and ended up yanking it out of the connector. Then I couldn't get it back in. I think I must have, because I had no problems. That was about a year ago. So 2 months ago is when I put LED's in and messed up electrical in car. That's when the locks got messed up. Since I was messing with electrical anyways. Is when I did intense research on fob, and got that working. I did end up putting a new male non insulated connector on that black wire. But that's all I did was mess with the connector end. Sorry for any confusion. Typing this out is getting me confused. I do have the tool now to get connector out. The Chilton's manual has nothing in it about this either.
Was this
answer
helpful?
Yes
No
Sunday, March 22nd, 2020 AT 2:15 PM
Tiny
CHRISAKADQ
  • MEMBER
  • 13 POSTS
So which wire is providing the trunk release power? I am assuming it's the black wire with white stripe, that goes in solinoid of trunk release.
Was this
answer
helpful?
Yes
No
Sunday, March 22nd, 2020 AT 2:23 PM
Tiny
ASEMASTER6371
  • MECHANIC
  • 52,796 POSTS
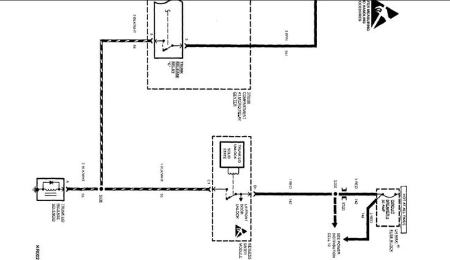
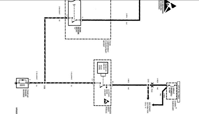
Correct, as per the diagram, the black/white would be the trigger wire.

The antennae receives the signal and sends it to the module. Then the module sends the command out to the release.

Roy
Was this
answer
helpful?
Yes
No
Sunday, March 22nd, 2020 AT 2:41 PM
Tiny
CHRISAKADQ
  • MEMBER
  • 13 POSTS
Okay, thanks a lot for your help Roy. I just got back from dinking with it. Found a mess. I did find the ground was severed. So I put that back together. And guess what, the trunk light works now. Locks and trunk release, do not work. I did a lot of work on that car myself, the water pump, radiator, heater core. All in like a month. Now electrical, I still don't know how to read and the settings on voltage meter. So I did shock myself a couple times. I noticed a lot of wires had been repaired. Just with electric tape. So I am going to check and redo with shrink tube. Now I did find a couple things. Now the 3 wires going to front of latch. I put the test light to each one. The light did not go on for the red one. The other thing is when I ground the test light and then touch any metal on car the light goes on, bright. Does that mean that red wire is touching metal in car somewhere. Now on the other side I found 2 more boxes, both with relays. One is the antenna, I don't know what the other is. Is there a trunk release relay under glove box? Thanks For putting up with me Roy. Much appreciated.
Was this
answer
helpful?
Yes
No
Sunday, March 22nd, 2020 AT 5:45 PM
Tiny
ASEMASTER6371
  • MECHANIC
  • 52,796 POSTS
Okay, can you post some pictures of what you see?

Solder and shrink wrap is the best way of repairing the harness. Butt connectors are not a good repair although they are quick. Outside environment gets into the connection and corrosion is the result.

https://www.2carpros.com/articles/how-to-check-wiring

Roy
Was this
answer
helpful?
Yes
No
Monday, March 23rd, 2020 AT 5:09 AM
Tiny
CHRISAKADQ
  • MEMBER
  • 13 POSTS
I am getting ready to tackle it. I live in an apartment, so I have to use extension cord for heat gun and solder. So what about test light, is that normal? And the red wire, that didn't light up on latch?
Was this
answer
helpful?
Yes
No
Monday, March 23rd, 2020 AT 10:46 AM
Tiny
ASEMASTER6371
  • MECHANIC
  • 52,796 POSTS
Let us get the wiring secure and connected well.

When you put the black lead on a ground and you touch a ground, the light should not light up at all. It should only light up when it sees power.

https://www.2carpros.com/articles/how-to-use-a-test-light-circuit-tester

Roy
Was this
answer
helpful?
Yes
No
Monday, March 23rd, 2020 AT 11:19 AM
Tiny
CHRISAKADQ
  • MEMBER
  • 13 POSTS
Okay, the thick brown one going to 2 thick brown, shocked me. There is 1 brown going to 3 brown. I will solder and shrink tube.
Was this
answer
helpful?
Yes
No
Monday, March 23rd, 2020 AT 12:33 PM
Tiny
ASEMASTER6371
  • MECHANIC
  • 52,796 POSTS
Wow, somebody did a really poor wire repair.

Yes, solder and shrink wrap all those wires back together again.

Roy
Was this
answer
helpful?
Yes
No
Monday, March 23rd, 2020 AT 12:36 PM
Tiny
CHRISAKADQ
  • MEMBER
  • 13 POSTS
This connector looks pretty solid. Plus it looks hard to get undone. Why are wires still have power. I disconnected battery?
Was this
answer
helpful?
Yes
No
Monday, March 23rd, 2020 AT 12:53 PM
Tiny
ASEMASTER6371
  • MECHANIC
  • 52,796 POSTS
No, it is exposed to outside environment. You need to redo it completely and solder and seal it up.

Roy
Was this
answer
helpful?
Yes
No
Monday, March 23rd, 2020 AT 1:09 PM
Tiny
CHRISAKADQ
  • MEMBER
  • 13 POSTS
I keep getting shocked, the battery is disconnected on both terminals. Why is that?
Was this
answer
helpful?
Yes
No
Monday, March 23rd, 2020 AT 1:30 PM
Tiny
ASEMASTER6371
  • MECHANIC
  • 52,796 POSTS
Disconnect the module. The capacitors inside are little batteries and they keep voltage active.

Also, you could use gloves as well.

Roy
Was this
answer
helpful?
Yes
No
Monday, March 23rd, 2020 AT 1:34 PM
Tiny
CHRISAKADQ
  • MEMBER
  • 13 POSTS
I had gloves on. It took me 4 hours to do 3 wires. I do not solder well at all, I probably made more of a mess. But it is what it is. So where is the trunk release relay? I am going to follow the red wire today. The one that had no power. Looks like that one is coming from fuse box.
Was this
answer
helpful?
Yes
No
Tuesday, March 24th, 2020 AT 10:12 AM
Tiny
ASEMASTER6371
  • MECHANIC
  • 52,796 POSTS
In the rear fuse/relay block in the trunk.

I attached a picture that identifies the location.

Roy
Was this
answer
helpful?
Yes
No
Tuesday, March 24th, 2020 AT 10:16 AM

Please login or register to post a reply.