HOME
ASK A QUESTION
REPAIR GUIDES
BECOME A MEMBER
LOG IN
Login with Facebook
OR
Remember me
NOT A MEMBER?
FORGOT PASSWORD?
CONTACT US
PRIVACY POLICY
TERMS AND CONDITIONS
☰
Home
Jeep
Cherokee
Engine
Starter
1996 Jeep Cherokee Starter
WMUISICK
MEMBER
1996 JEEP CHEROKEE
6 CYL
2WD
AUTOMATIC
180,000 MILES
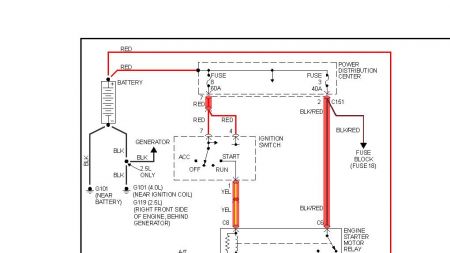
The electrica are onb. I have Lights. Turn egnition. Nothing. Just a click. Have chercked both fuse boxes.
Monday, June 30th, 2008 AT 10:24 AM
1 Reply
RASMATAZ
MECHANIC
75,992 POSTS
Test the battery/connections -could be fuses/ignition switch/starter relay/park and neutral switch or starter itself -
Was this
answer
helpful?
Yes
No
Monday, June 30th, 2008 AT 10:36 AM
Please
login
or
register
to post a reply.
Related Starter Content
1996 Jeep Cherokee
I Think My Starter Is Bad. 1st How Much Does A Starter Run. 2nd Were Is It Located Under The Hood. I Start The Jeep Get To My Location And...
Asked by
justin_bur2000
·
2 ANSWERS
1996
JEEP CHEROKEE
GUIDE
Starter
An engine starter is constructed as a high torque, high amperage 12 volt motor fitted with an electrical solenoid and Bendix gear which is used to rotate an engine between...
Starter
I Have A 99 Jeep Cherpkee And It Keeps Burning Up Starters, What Could The Problem Be.
Asked by
jtb102382
·
3 ANSWERS
15 IMAGES
1999
JEEP CHEROKEE
1989 Jeep Cherokee Starter Motor
Engine Mechanical Problem 1989 Jeep Cherokee 6 Cyl Two Wheel Drive Automatic 200k Miles Starter Motor Will Not Engage Flywheel. Makes...
Asked by
P. Heinze
·
1 ANSWER
1989
JEEP CHEROKEE
Starter
Just Bought A New Starter And When We Put It In, It Immediately Just Clicked. Then After A Few Cranks, It Started Up. Now, When I Try To...
Asked by
jswells
·
7 ANSWERS
1990
JEEP CHEROKEE
Can A Bad Starter Drain The Battery?
2005 Jeep Larado, Ran Tests On Battery, Alt, And Starter. Only Thing Comes Up Is A Bad Starter. Or Is There Something Else Draining My...
Asked by
luck7915
·
3 ANSWERS
2005
JEEP CHEROKEE
VIEW MORE
Ask a Car Question. It's Free!
Starter Replacement
Starter Motor Replacement
Starter Motor Replacement