About 5 to 8 times per year it will not start without a jump?

Tiny
ALICIA ZEE
  • MEMBER
  • 1999 TOYOTA TACOMA
  • 2.4L
  • 4 CYL
  • 2WD
  • AUTOMATIC
  • 260,000 MILES
For two years my truck started up strong about 360 days a year, but then, about 5-8 x per year it won't start without a jump. It then just makes a short 'click' sound when turning the key (so, not like that other, longer sound when the start motor is failing). This does not seem to have to do with weather or whether or not it's been sitting or driven. Ie: it recently started right up after not driving for a week, but randomly will not start after driving around all day. This happens about once every 2 months. I then jump start it (I now carry a portable jump-start battery) and it will start fine for another 6-8 weeks. I've cleaned and tightened battery terminals/cables, and taken it to several mechanics, and their testers read that the battery is strong. It, of course, then behaves perfectly, and they can't find any issue. That is, until yesterday, when the tester gave a 'failed diodes' reading. I assumed alternator, but because this is a $500 repair, last night I ran some tests I found online, with the following results.

1) V-meter test 1;
Battery reading with engine off: 12.94 / with engine running: 12.72-12.81.

2) V-meter test 2 (15 minute interval):
Battery reading with engine off: 12.80 / with engine running: 14.05 / with engine running + lights, ac, fan, radio, etc, all on: 13.78.-13.89.

3) V-meter test 3 (15 minute interval):
Battery reading with engine off: 12.80 / with engine running: 12.72-12.82.

4) Disconnect negative battery cable with engine running: Engine continues to run.

I'm now delving into the scary world of possible wiring or fuse issues. Any (excuse the pun.) Jump-start on where to begin, or other thoughts, would be hugely appreciated!

Thanks, Alicia.

PS: I've also checked belts, and all felt snug and didn't appear to be slipping.
Thursday, October 5th, 2023 AT 8:44 AM

2 Replies

Tiny
KEN L
  • MASTER CERTIFIED MECHANIC
  • 55,065 POSTS
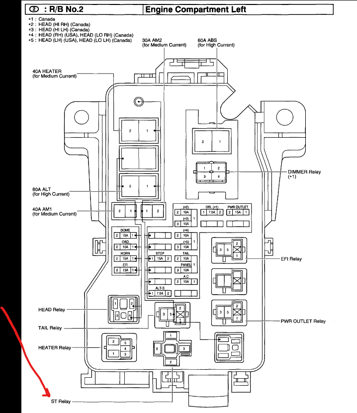
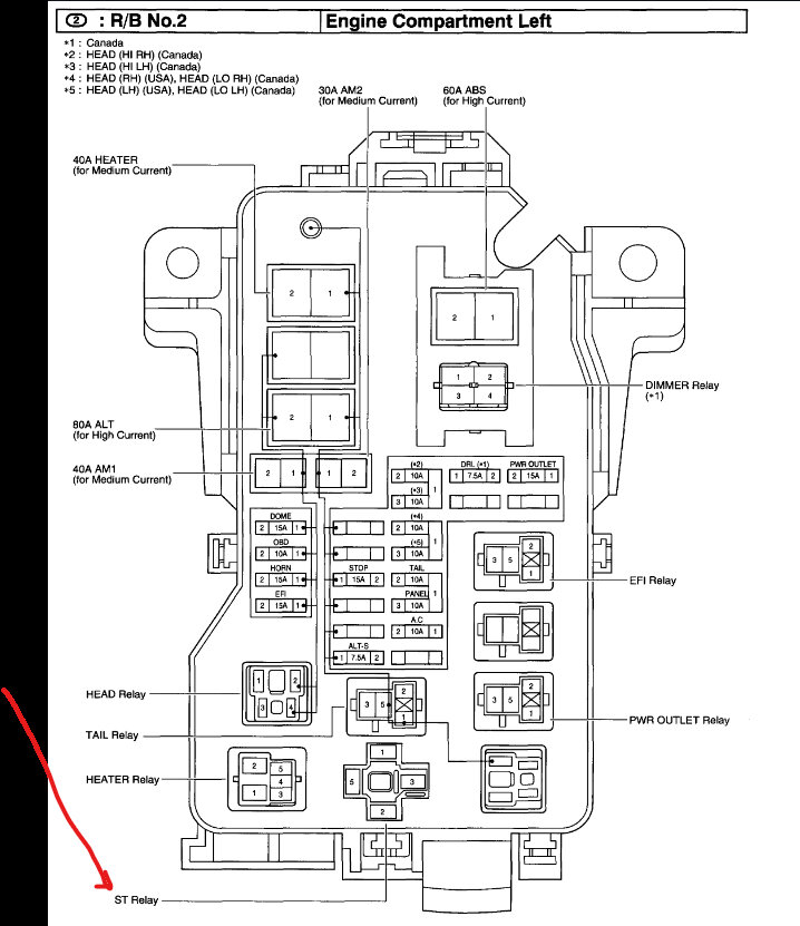
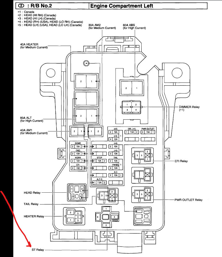
Yep, it sounds like you have two related problems, first the alternator is no good and needs to be replaced, here are the instructions for doing so, next I would swap out the starter control relay and if that doesn't work the starter motor itself. I have included the location of the relay and how to change the starter motor out as well. This guide can help confirm the starter failure which you must do when the starter is not working by testing for power at the trigger wire.

https://www.2carpros.com/articles/starter-not-working-repair

Check out the images (below). Please let us know what happens.

Was this
answer
helpful?
Yes
No
Thursday, October 5th, 2023 AT 10:37 AM
Tiny
KEN L
  • MASTER CERTIFIED MECHANIC
  • 55,065 POSTS
Anything?
Was this
answer
helpful?
Yes
No
Tuesday, May 7th, 2024 AT 4:58 PM

Please login or register to post a reply.